Einfach und bequem Aliplast Fenster und Türen-Systeme zu günstigen Preisen online konfigurieren und bestellen bei fensterblick.de
Alu-Fenster Aliplast Superial (Standard, i und i+)
Stabile Lösung mit innovativer Wärmedämmung
- 3-Kammersystem aus hochwertigem Aluminium
- 3 Systemvarianten: ST, i und i+
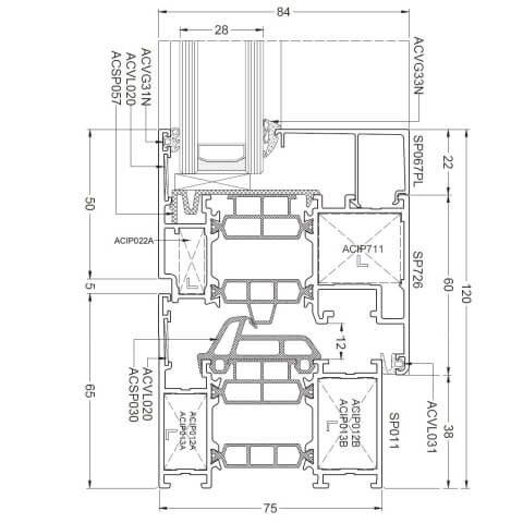
- Rahmeneinbautiefe: 75 mm
- Flügelbautiefe: 84 mm
- Maximale Glasstärke bis 61 mm
- Thermische Trennung für ausgezeichnete Wärmedämmung
ab 142,21 €
inkl. 19% MwSt. zzgl. Versand
Produktbeschreibung
Ausgezeichnete Wärmedämmung und Vielfalt auf allen Ebenen
Die Aliplast Serie Superial besteht aus einem 3-Kammerprofil mit thermsicher Trennung und kennzeichnet sich durch eine erhöhte Wärmedämmleistung. Das Aluminiumsystem Superial ist in den Varianten Standard, SU und OUT erhältlich. Zusätzlich kann die Wärmeisolierung durch die Ausführung i und i+ verbessert werden. Ein SP i+ Fenster hat spezielle Wärmedämmeinlagen, die zwischen den Isolierstegen und um die Scheiben herum eingebaut werden. Diese erhöhen die Wärmedämmungsparameter. Superial i+ Fenster können sowohl in öffentlichen Gebäuden als auch in Ein- oder Mehrfamilienhäuser eingesetzt werden. Für einen verdeckten, von außen unsichtbarem Fensterflügel, dient die Variante SP SU. Diese Version erlaubt Fenster in einer Alu- oder Glasfassade so einzubauen, dass sie „versteckt“ sind. Das Aluprofil SP OUT ist für Kippfenster und nach außen öffnende Fenster entwickelt worden. Das Besondere an dieser Variante ist, dass die Innenfläche des Rahmens und des Fensters flächenbündig ist und somit der gesamte Innenbereich frei zur Nutzung steht. Die Farbgestaltung der Aliplast Serie Superial können Sie dank der fast endlosen Farbpalette aus RAL Farben, strukturelle Farben, Holzfarben Aliplast Wood Colour Effect, Anode oder Doppelfarbe an Ihren persönlichen Wünschen und Vorstellungen anpassen.
Vorteile vom Aliplast Superial Fenster:
Profil:
3-Kammerprofil aus Aluminium thermischer Trennung; optional mit Wärmedämmeinlagen und Isolierstegen in den Varianten i und i+
Verglasung:
2-fache bis 3-fache Isolierverglasung bis zu einer Stärke von 61 mm; optional Spezialgläser einsetzbar
Dichtungen:
Dichtungen mit hoher Widerstandsfähigkeit gegen Feuchte und Witterungseinflüsse
Beschläge:
Hochwertige Markenbeschläge für eine dauerhafte Funktionalität und hohen Einbruchschutz
Alu-Fenster Aliplast Superial - Unterschied thermische Varianten Superial ST, i und i+
Aluminiumsystem Aliplast Superial Standard - Profilansichten:
Aluminiumsystem Aliplast Superial i+ - Profilansichten:
Breite Auswahl an Farben für mehr Farbspielraum
Die präsentierten Farben und Maserungen können von der Realität abweichen. (Klicken Sie auf Ihre Wunschfarbe)
Technische Querschnitte und Detailzeichnungen
Bei der Planung Ihres Bauvorhabens ist Präzision von entscheidender Bedeutung. Unsere ausführlichen Beschreibungen und technischen Zeichnungen des Aliplast Superial Profils bieten Ihnen Einblicke in die genauen Abmessungen und Dimensionen der Elemente. Wir stellen eine umfangreiche Sammlung von Plänen und Detailzeichnungen zur Verfügung, die Ihnen bei der Montage und dem Vergleich der technischen Eigenschaften des Aliplast Superial Profils helfen. Ebenso können die Unterschiede der thermischen Varianten Standard, i und i+ ermittelt werden. Wenn Sie beispielsweise Rollläden in Erwägung ziehen und begrenzten seitlichen Raum haben, könnte eine Rahmenverbreiterung erforderlich sein, um den Gurtwickler zu integrieren. Die genauen Maße und verschiedene Kopplungsvarianten sind in den entsprechenden Querschnitten detailliert dargestellt. Bei Bedarf wenden Sie sich an unsere fachlichen Berater für die Zusendung der Querschnitte und Profilschnitte.
Aliplast Fenster und Türen nach Maß
Weitere Aluminium-Produkte von Aliplast:
Aliplast Fenster | Aliplast Superial | Aliplast Econoline | Aliplast Genesis 75 | Aliplast Star 90 | Aliplast Superial 800 Tür | Aliplast Econoline Tür
Zusammenfassung: Produktinformationen
Aluminiumfenster Aliplast Superial
Das hochwertige Aluminiumprofil Aliplast Superial besteht aus drei Kammern mit thermischer Trennung. Die Variante i+ besitzt spezielle Wärmedämmeinlagen. So werden herausragende Wärmedämmwerte erreicht. Darüber hinaus offeriert das Alusystem vielfältige Gestaltungsmöglichkeiten.
- Marke: Aliplast
- Profil: Superial
- Material: Aluminium
- Farbe: Weiß (weitere RAL Farben möglich)
- Verfügbarkeit: Lieferbar
- Zustand: Neu
- Preis: Auf Anfrage
- Online-Shop: fensterblick.de








