Einfach und bequem Salamander Fenster bluEvolution 82 online konfigurieren und bestellen bei fensterblick.de
Kunststofffenster - Salamander bluEvolution 82
Energieeffizienz zu starken Preisen
- 6-Kammersystem mit 82mm Bautiefe
- 3 Dichtungsebenen aus EPDM
- 2-fach / 3-fach Verglasung
- Scheibenpakete bis 53mm
- Sicherheitsbeschlag mit Pilzkopfverriegelung
ab 40,52 €
inkl. 19% MwSt. zzgl. Versand
Produktbeschreibung
Salamander Brügmann bluEvolution 82 – Klassisches Design trifft hervorragende Energieeffizienz
Setzten Sie auf ein wahres Qualitätsprodukt mit Kunststofffenstern von Brügmann bluEvolution 82! Das hochwertige Profil ist für den Passivbau geeignet, besteht aus 6 Kammern und ist mit einem System aus drei Dichtungsebenen (MD) ausgestattet. Das Kunststoffprofil wird in der Designvariante Classic-Line (CL) angeboten. Bei Wahl einer 3-fach-Verglasung mit warmer Kante sparen Sie zusätzlich wertvolle Energie und damit bares Geld. Für Sicherheit und Stabilität sorgen eine robuste Stahlarmierungen sowie Markenbeschläge mit Pilzkopfverriegelung. So wird beispielsweise das Aufhebeln des Fensterflügels verhindert. Nutzen Sie eine große Vielfalt an Farben und Dekoren für eine individuelle Gestaltung und die ganz persönliche Note. Auch die Maße können Sie frei wählen und Ihren Anforderungen entsprechend anpassen. Bestellen Sie gleich online Ihre Salamander-Fenster der Brügmann bluEvolution 82-Reihe!
Vorteile vom Kunststofffenster Salamander bluEvolution 82:
Profil:
Hochwertiges 6-Kammerprofil mit 82 mm Einbautiefe für eine hervorragende Wärmeisolation und Statik. Große Verstärkungskammer mit Stahlarmierung.
Verglasung:
Die Verglasung kann aus einer Vielzahl von Spezialgläsern mit einer Glasstärke von bis zu 53mm ausgewählt werden. Große Auswahl von Wärmeschutz-, Schallschutz-, Sichtschutz- und Einbruchschutzverglasungen.
Dichtungen:
Die Kunststoffprofile verfügen über 3 Dichtungsebenen mit einer Mitteldichtung (MD) aus EPDM.
Beschlag:
Sicherheitsbeschläge mit Pilzkopfverriegelung. Für eine erhöhte Lebensdauer arbeiten die Beschläge in der sog. trockenen Kammer.
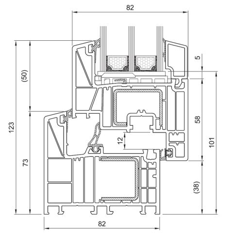
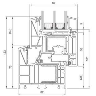
Kunststofffenster Salamander Brügmann bluEvolution 82 - Profilansichten
Große Farbauswahl für die Fensterprofile
Fenster Brügmann bluEvolution 82 nach Maß
Energieeinsparung mit optimaler Wärmedämmung
Die Salamander Fenster Brügmann bluEvolution 82 stehen für eine ausgezeichnete Wärmeisolation, welches durch das hochwertige 6 Kammerprofil sowie den 3 Dichtungsebenen mit einer Mitteldichtung (MD) aus EPDM erreicht wird. Durch die breite Bautiefe von 82mm können Verglasungen mit einer maximalen Glasstärke von bis zu 53mm eingesetzt werden. Bei einer Konfiguration mit einer emissionsarmen 3-fach Verglasung in Verbindung mit der Warmen Kante können Wärmedurchgangsparameter wie bei Passivhausfenstern erreicht werden. Durch den warmen Distanzrahmen wird die Isolierung der Scheiben verbessert und das Risiko von Wärmedampfkondensation verringert.
Weitere Informationen zu Fensterverglasungen
Hochwertige Fensterbeschläge für mehr Sicherheit
Durch die große Einbautiefe der Fenster der Serie bluEvolution 82 sowie der soliden Stahlverstärkung des Profils können große Konstruktionen unter der Einhaltung von hohen Sicherheitsstandards ausgeführt werden. Eine wichtige Funktion bei der Sicherheit besitzt der Fensterbeschlag. Die Fenster bluEvolution 82 werden mit den bewährten Marken-Beschlägen wie MACO Multi Matic oder Siegenia Titan ausgestattet. Die Sicherheits-Pilzkopfverriegelungen erschweren das Aufhebeln des Flügels, sorgen für eine leichte Funktion und regulieren zudem den Anpressdruck. Auf Wunsch können die Fenster mit verschiedenen Sicherheitsklassen wie RC1 oder RC2 versehen werden. In Verbindung mit Verbundsicherheitsglas können die Fenster optimal an die Begebenheit vor Ort angepasst werden.
Weitere Informationen zu Fensterbeschlägen
Fensterdesign - Einzigartiger Charme und Funktionalität
Neben den hervorragenden Lösungen im Bereich Energieeinsparung und Sicherheit bieten die hochwertigen Salamander Profile bluEvolution 82 aus Kunststoff zugleich interessante Designoptionen. Die Kunststofffenster können einseitig, beidseitig oder in der Duo-Color-Formel mit Dekorfolien versehen werden. Für die Kernfarbe stehen Weiß, Braun und karamellfarben zur Auswahl. Eine Innovation stellt die Kernfarbe Anthrazit für das Profil dar. Für eine hohe Qualität und präzise Fertigung der Fenster stehen die V-Super- und V-Perfect-Technologien zur Auswahl. Dadurch werden die Verbindungsstellen der Profile nahezu unsichtbar.
bluEvolution 82 Alu - Die Perfekte Symbiose aus Form und Vielseitigkeit
Langlebigkeit, Pflegekomfort und energieeinsparend - noch nie war es so einfach die Stärken von Aluminium und Kunststoff zu vereinen. Die Aluminium-Vorsatzschale bietet perfekten Schutz vor Witterungseinflüssen und besticht durch eine nahezu unbegrenzte Farbvielfalt. Während für die Innenseite Dekorfolien gewählt werden können, stehen für die Aluvorsatzschale eine große Auswahl an RAL-Farben zur Verfügung. Die Aluschalen vergrößern neben der Ästhetik auch die Energieeffizienzparameter. Verleihen Sie Ihren Fenstern nicht nur einen edlen Aluminium-Look, sondern schaffen Sie auch ein hohes Maß an Sicherheit, Langlebigkeit und Stabilität.
Technische Querschnitte und Detailzeichnungen
Für das eigene Hausprojekt ist es sehr wichtig, dass Sie jede Feinheit Ihres Bauprojektes exakt planen können. Dafür stellen wir Ihnen umfangreiches Material zur Verfügung, bestehend aus Detailzeichnungen und Profilschnitten. Anhand derer können Sie die 6 Kammern des bluEvolution 82 Kunststofffensters begutachten, die genauen Abmessungen herausfinden sowie verschiedene Verglasungsbreiten gegeneinander abwägen. Gerade bei den modernen breiten Glasfronten wird die maximale Belastungsbreite der Fenster häufig überschritten, sodass mehrere Einzelfenster miteinander gekoppelt werden müssen oder auch ein Fenster mit der Balkontür. So kann die notwendige Stabilität und damit eine verlässliche Statik erzeugt werden. Die technischen Zeichnungen beinhalten ebenfalls die Maße für freche Eckkopplungen – für einen atemberaubenden Rundumblick.
Weiter zu Detailzeichnungen - BluEvolution 82
Fenster Brügmann bluEvolution 82 nach Maß
Einfach und bequem Salamander Fenster bluEvolution 82 online konfigurieren und bestellen bei fensterblick.de
Nachhaltigkeit - Das ideale, nachhaltigere Fenstermaterial PVC
Die Fensterprofile von Salamander sind aus langlebigem und nachhaltigem PVC gefertigt und können mit innovativen realMaterial-Oberflächen versehen werden. Damit bieten wir Ihnen die Möglichkeit, Ihre Fenster mit einem geringen CO2-Abdruck individuell zu gestalten und perfekt auf Ihr zu Hause abzustimmen - sowohl innen als auch außen. Die Produktion erfolgt unter Berücksichtigung von strengen ökologischen Gesichtspunkten und einem stetig wachsenden Anteil an erneuerbaren Energien, einschließlich der Verwendung eines eigenen Wasserkraftwerks! Bei fensterblick.de mit langjähriger Erfahrung können Sie sich immer darauf verlassen, dass unsere Produkte nicht nur qualitativ hochwertig sind, sondern schon ab der Produktion einen umweltfreundlichen Ansatz verfolgen. Wir bei Fensterblick behalten die Sicht auf das Wesentliche und Sie freuen sich auf hochqualitative Fenster für kristallklare Aussichten!
Weitere Kunststoff-Produkte von Salamander:
Salamander Fenster | Salamander bluEvolution 92 | Salamander evolutionDrive 82 | Salamander greenEvolution flex | Salamander Streamline 76 | Salamander bluEvolution 82 Greta
Weitere Fenstersysteme von Salamander:
Salamander Fenster | greenEvolution Fenster | Salamander Streamline 76 | Salamander bluEvolution 92 | Salamander greenEvolution 76 | Salamander greenEvolution 76 free | Salamander greenEvolution 76 box | Salamander greenEvolution 76 curve | Salamander bluEvolution 82 Aluschale
Zusammenfassung: Produktinformationen
Kunststofffenster bluEvolution 82
Das Salamander bluEvolution Fenster 82 aus hochwertigem Kunststoff besteht aus einem 6-Kammerprofil und verfügt über 3 Dichtungsebenen. In Verbindung mit einer 3-fach Verglasung mit warmer Kante ist es auch für Häuser in Passivbauweise geeignet.
- Marke: Salamander
- Profil: bluEvolution 82
- Material: Kunststofffenster
- Breite: ab 360 mm
- Höhe: ab 395 mm
- Farbe: Weiß (weitere Farben möglich)
- Verfügbarkeit: Lieferbar
- Zustand: Neu
- Preis: Auf Anfrage
- Online-Shop: fensterblick.de






