Cortizo Fensterladen Tamiz – moderner Charakter
Widerstandsfähiger Sonnenschutz
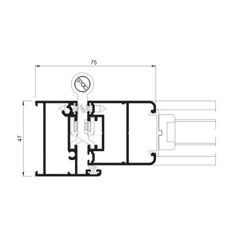
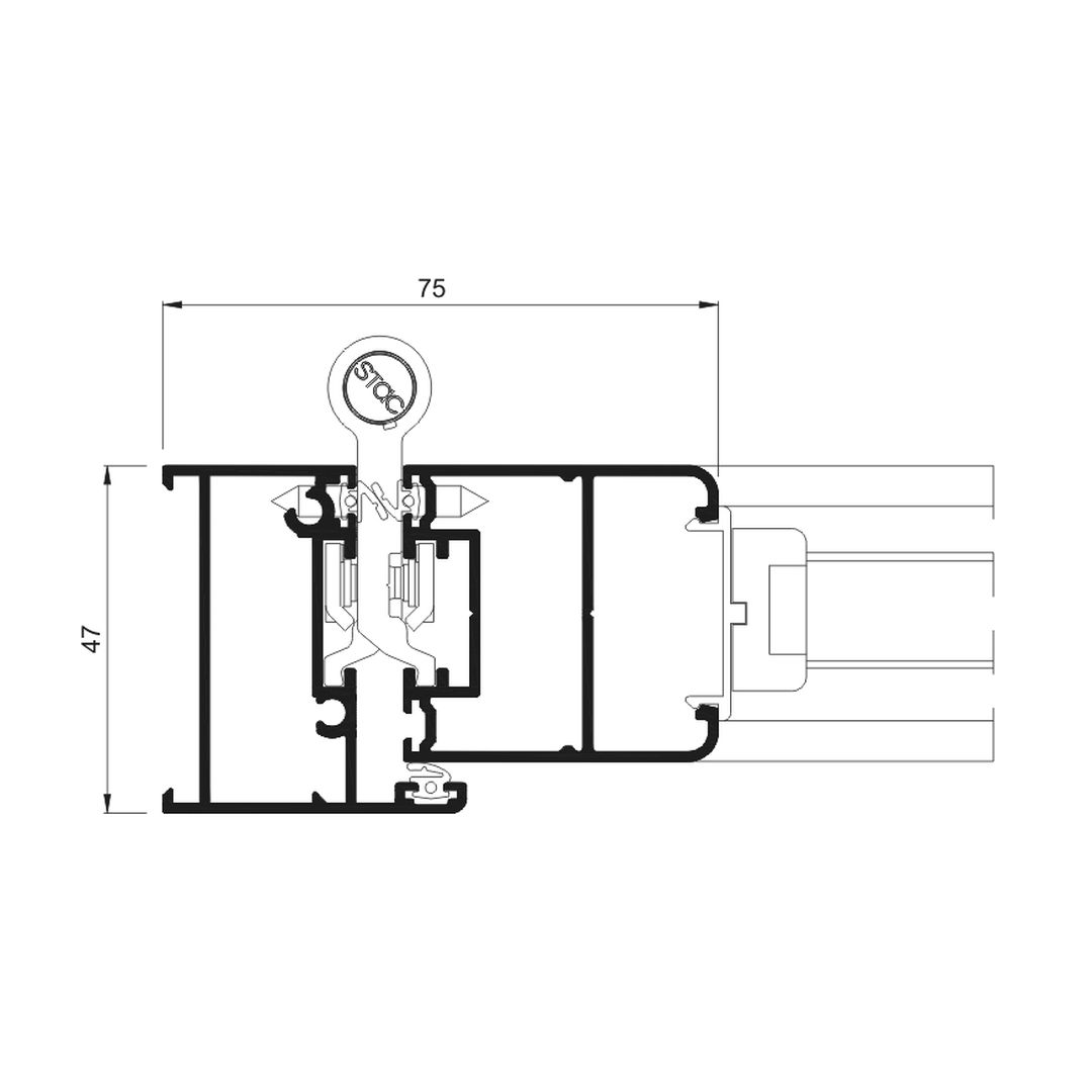
- Hochwertiges Aluminiumprofil
- Zargenquerschnitt - 47mm
- Flügelquerschnitt - 40mm
- Länge max. (L) - 1600mm
- Höhe max. (H) - 2500mm
- Fensterladentypen: Standard, klappbar oder verschiebbar
Fensterläden aus Aluminium können aktuell nicht geliefert werden.
Produktbeschreibung
Atemberaubende Fernwirkung mit Stil – der Fensterladen Tamiz
Der formschöne Fensterladen verbindet traditionelles Flair mit moderner Technik und widerstandsfähigem Material. Das Profil besteht aus stabilem Aluminium mit einer Dicke von 1,3 mm bei Fenstern und 1,5 mm bei Türen. Zusätzlich kann durch das Schließen des Fensterladens der Wärmeverlust verringert werden, so sparen Sie langfristig kostbare Energie.
Insbesondere die Schließmechanismen sind neuartig. Sie haben die Wahl zwischen dem klassischen Klappsystem, einer Falttürmechanik oder einer Schiebetür. Darüber hinaus verfügt der Tamiz Fensterladen über feste oder orientierbare Lamellen, um den Lichteinfall flexibel dosieren zu können. Auf Wunsch ist auch ein Paneel in opaker Sandwichbauweise möglich oder Sie wählen eine Verglasung. Lassen Sie sich gerne dazu von unserem Experten-Team beraten.
Vorteile Cortizo Fensterladen Tamiz
Design:
Großzügige Auswahl an RAL-Lackfarben, Holzdekor-Lacken oder auch Eloxalfarben.
Lamellen:
Erhältlich mit feststehenden oder orientbaren Lamellen; auf Wunsch opakes Sandwich-Paneel oder Verglasung möglich.
Nutzungsvorteile:
Schmale und stabile Konstruktion; wirkungsvoller Sonnenschutz sowie zusätzliche Wärme- und Schalldämmung
Bedienungskomfort:
Je nach Fenstergröße und individuellen Anforderungen kann der Fensterladen traditionell aufgeklappt werden oder Sie entscheiden sich für ein modernes Falt- oder Schiebesystem.





