Einfach und bequem Fenster Aluprof MB-86 online konfigurieren und bestellen bei fensterblick.de
Alufenster - Aluprof MB-86 ST, SI und Aero
Schlank und stilvoll mit hoher Wärmedämmung
- 3-Kammersystem mit hoher thermischer Trennung
- Rahmenbautiefe von 77 mm
- Flügelbautiefe von 86 mm
- Mitteldichtung aus mehreren Komponenten
- Maximale Glasstärke bis 67,5 mm
ab 182,55 €
inkl. 19% MwSt. zzgl. Versand
Produktbeschreibung
MB-86 Aluminiumfenster – Energieeffizienz und Design gehen Hand in Hand
Eine herausragende Wärmedämmleistung ist das Markenzeichen der Aluprof MB-86-Serie. Das 3-Kammer-System hat breite Isolierstege mit neuer Form, die eine zusätzliche Kammer in der Isolierzone des Profils ermöglichen. Die Dichtheit des Fensters wird durch eine zentrale Zweikomponentendichtung gewährleistet, die als Abdichtung und thermische Isolierung des Raums zwischen Flügel und Zarge dient. Das Aluminiumsystem MB-86 ist in den Varianten ST, SI und Aero erhältlich. Das Profil MB-86 ST stellt die Standardvariante des Alu-Systems dar. Für eine zusätzliche Wärmedämmung wird beim Profil MB-86 SI ein zusätzlicher Isoliersteg in den mittleren Profilkammern eingesetzt. In der AERO-Version werden die Profile für eine herausragende Wärmeisolation mit Aerogel gefüllt, einem vollkommenen thermischen Isolationsmaterial. Designfans sind besonders überzeugt von den schlanken aber dennoch sehr stabilen Rahmenprofilen, die auch große und schwere Konstruktionen ermöglichen. Hier können Sie zudem zwischen den Varianten Standard, Prestige und Style bei der Glasleistenauswahl entscheiden und beispielsweise verdeckt liegende Beschläge auswählen. Der Farbgestaltung sind dank einer Palette aus 200 RAL-Farben und neu auch Holzdekorfarben von Decoral nahezu keine Grenzen gesetzt. Eine dauerhafte Funktionalität gewährleisten hochwertige MACO Multi Matic Beschläge mit einer Fehlbediensperre sowie einem Flügelheber bei Dreh-Kipp-Ausführung. Sicheres Lüften garantiert die Mirkoventilation bei Querlage des Griffs.
Weiter zu Detailzeichnungen - MB-86 SI
Weiter zu Alu-Fenster-System - MB-86 SI
Vorteile vom Aluminium Fenster MB-86:
Profil:
3-Kammersystem mit Isolierstegen aus mit Glasfasern verstärktem Polyamid für ausgezeichnete Wärmedämmung. Rahmenbautiefe von 77 mm; Flügelbautiefe von 86 mm.
Verglasung:
Starke Isolierverglasung in 2-fach bis 4-fach Verglasung. Optionale Ausstattung mit Funktionsgläser: Wärmeschutz-, Schallschutz-, Sichtschutz- und Einbruchschutzverglasungen.
Dichtungen:
Zuverlässiges Dichtungssystem mit Zentraldichtung aus Zweikomponenten EPDM sowie Scheiben- und Anschlagsdichtungen aus synthetischem EPDM.
Beschläge:
Hochwertige MACO MULTI MATIC Beschläge mit Einbruchsicherungspilzzapfen für optimale Sicherheit, sowie einer Fehlbediensperre für mehr Komfort.
Alu-Fenster Aluprof MB-86 - Unterschied thermische Varianten MB-86 ST, SI und Aero
Aluminiumsystem Aluprof MB-86 ST - Profilansichten:
Aluminiumsystem Aluprof MB-86 SI - Profilansichten:
Aluminiumsystem Aluprof MB-86 Aero - Profilansichten:
Alu-Fenster Farbkonfigurator für mehr Farbspielraum
Die präsentierten Farben und Maserungen können von der Realität abweichen. (Klicken Sie auf Ihre Wunschfarbe)
Fenster Aluprof MB-86 nach Maß
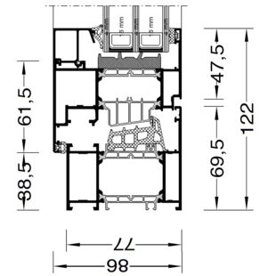
Technische Querschnitte und Detailzeichnungen
Aluminiumfenster gelten als besonders langlebig und widerstandsfähig, weswegen sie immer häufiger zum Einsatz kommen. Dank moderner Technik und isolierenden Elementen ist auch die Wärmedämmung konkurrenzfähig und glänzt mit Spitzenwerten. Das liegt vor allem an hochwertigen Bestandteilen und dem raffinierten Profilaufbau wie bei den Profilen MB-86. Diese lassen sich detailgetreu in den Profilschnitten begutachten. Hier finden Sie die genauen Maße, die einzelnen Dichtungsebenen, die max. Dicke der Scheibenpakete sowie praktische Zusätze wie Wasserschenkel oder Anschlussprofile. So können Sie Ihr Bauvorhaben nicht nur präzise planen, sondern darüber hinaus für eine reibungslose Montage sorgen. Die detaillierten Ausführungen ermöglichen Ihnen eine optimale Vorbereitung.
Weiter zu Detailzeichnungen - MB-86 SI
Aluminiumsysteme Aluprof MB-86 auf einem Blick:
Kostenlose Lieferung
Ab einer Bestellung von 10 Fenstern deutschlandweit!
Weitere Aluminium-Produkte von Aluprof:
Aluprof Fenster | Aluprof Haustüren | Aluprof Rollläden | Aluprof MB-45 | Aluprof MB-70 | Aluprof MB-79N | Aluprof MB-86 | Aluprof MB-86N
Zusammenfassung: Produktinformationen
Aluminiumfenster MB-86
Das Aluminium Fenster MB-86 besitzt ein 3-Kammerprofilsystem mit einer Mitteldichtung aus mehreren Komponenten. Für eine optimale Wärmedämmung ist das Profil von Aluprof MB-86 mit einer hohen thermischen Trennung versehen.
- Marke: Aluprof
- Profil: MB-86
- Material: Aluminium
- Breite: ab 300 mm
- Höhe: ab 300 mm
- Farbe: Weiß (weitere RAL Farben möglich)
- Verfügbarkeit: Lieferbar
- Zustand: Neu
- Preis: Auf Anfrage
- Online-Shop: fensterblick.de





