Einfach und bequem Fenster Aluplast IDEAL 4000 Monoblock online konfigurieren und bestellen bei fensterblick.de
Kunststofffenster - Aluplast IDEAL 4000 Monoblock
Aluplast Monobloc-Profil in verschiedenen Tiefen von 70mm bis 160mm
- 5-Kammersystem im Rahmen und Flügel
- Monoblock: 70mm, 100mm, 120mm, 140mm, 160mm
- Anschlagsdichtungssystem mit 2 Dichtungsebenen
- Bis zu 41mm Verglasung
- Zahlreiche Dekorfolien & Aluminiumvorsatzschalen
- Designvielfalt: Classic-Line und Round-Line
ab 83,79 €
inkl. 19% MwSt. zzgl. Versand
Produktbeschreibung
Aluplast IDEAL 4000 Monoblock von 70mm bis 160mm Rahmenprofil
Monoblockrahmen sind für den Bau von Fenstern bestimmt, die in die Wärmedämmschicht eingebaut werden. Die große Auswahl an Breiten der Monoblock-Rahmen ermöglicht eine entsprechende Auswahl in Abhängigkeit von der Dicke der Dämmung. Eine spezielle Ablage (Schwelle) an der Außenseite des Rahmens verdeckt die Isolierung ästhetisch über den gesamten Umfang des Fensters, wodurch die Bildung von Wärmebrücken vermieden wird. Der Innenfalz des Monoblock-Rahmens gewährleistet eine ästhetische Installation von innen, ohne dass ein Verputzen erforderlich ist. Das System wurde in Hinblick auf den französischen markt entwickelt. Ideal 4000 Monoblock Fenster sind auch in Kombination mit einem Aufsatzrollladen möglich.
Aluplast Ideal 4000 Monoblock besitzt ein 5-Kammer-Profil mit 2 Anschlagdichtungen (AD) und lässt eine Verglasung bis 41mm zu. Optional können Sie auch Schall-, Sicht-, Wärme- und Einbruchschutzverglasungen integrieren, wobei hinsichtlich der Schallschutzverglasung eine Widerstandsfähigkeit von bis zu 45db möglich ist. Aufgrund der hervorragenden Verarbeitung ist das Aluplast IDEAL 4000 Monoblock System extrem wetterfest. Hinsichtlich der Sicherheit ist mit diesem Fenstersystem ein Grundschutz mit Sicherheitspilzköpfen und Sicherheitsschließblechen gewährleistet. Dennoch haben Sie bei uns immer die Möglichkeit weitere Sicherheitsmerkmale wie z.B. zusätzliche Pilzkopfverriegelungen bis zur Sicherheitsklasse RC2 zu konfigurieren. Probieren Sie unseren Konfigurator gleich mit Ihrem neuen Aluplast IDEAL 4000 Monoblock aus und profitieren Sie von großer Gestaltungsvielfalt, transparenten Preisen und einer professionellen Beratung.
Vorteile vom Kunststofffenster Aluplast IDEAL 4000 Monoblock:
Profil:
5-Kammerprofil mit variabler Monoblock-Tiefe von 70mm bis 160mm für eine hervorragende Wärmedämmung und Sicherheit. Große Verstärkungskammer mit Stahlarmierung für gute Statikwerte.
Verglasung:
Die Verglasung kann aus einer Vielzahl von Spezialgläsern mit einer Glasstärke bis zu 41mm ausgewählt werden. Große Auswahl an Wärme-, Schall-, Sicht-, und Einbruchschutzverglasungen.
Dichtungen:
Das Kunststoffprofil verfügt über 2 Anschlagsdichtungen (AD) aus EPDM, die einen optimalen Schutz bieten.
Beschlag:
Sicherheitsbeschläge von Roto NT, MACO oder Siegenia. Eine große Verstärkungskammer mit Stahlarmierung sorgt zudem für die entsprechende Statik.
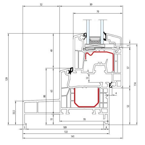
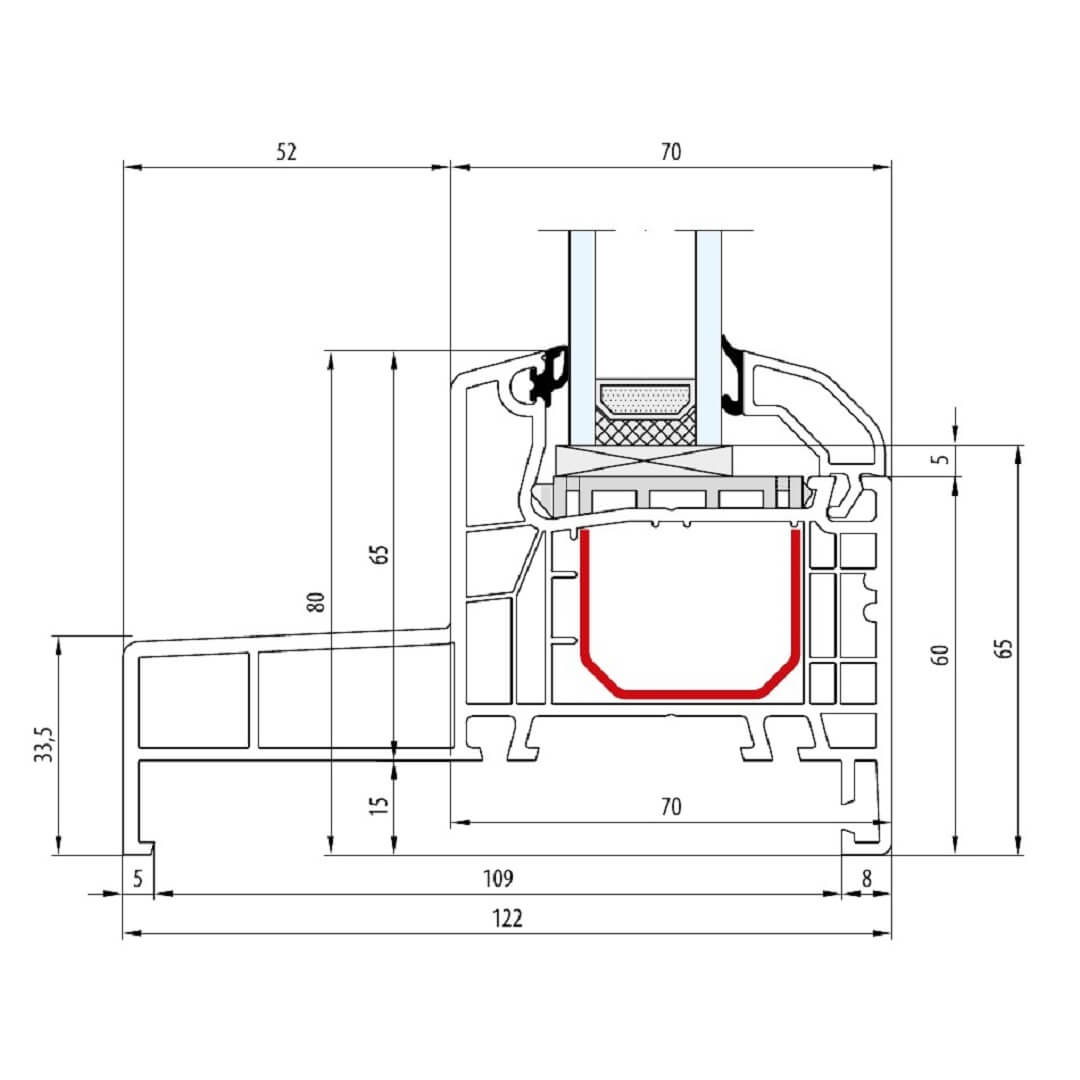
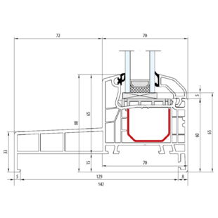
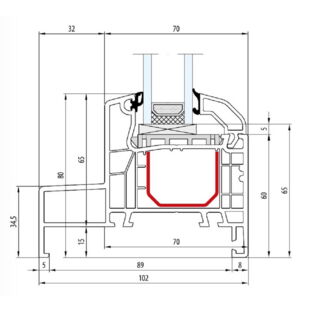
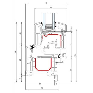
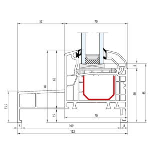
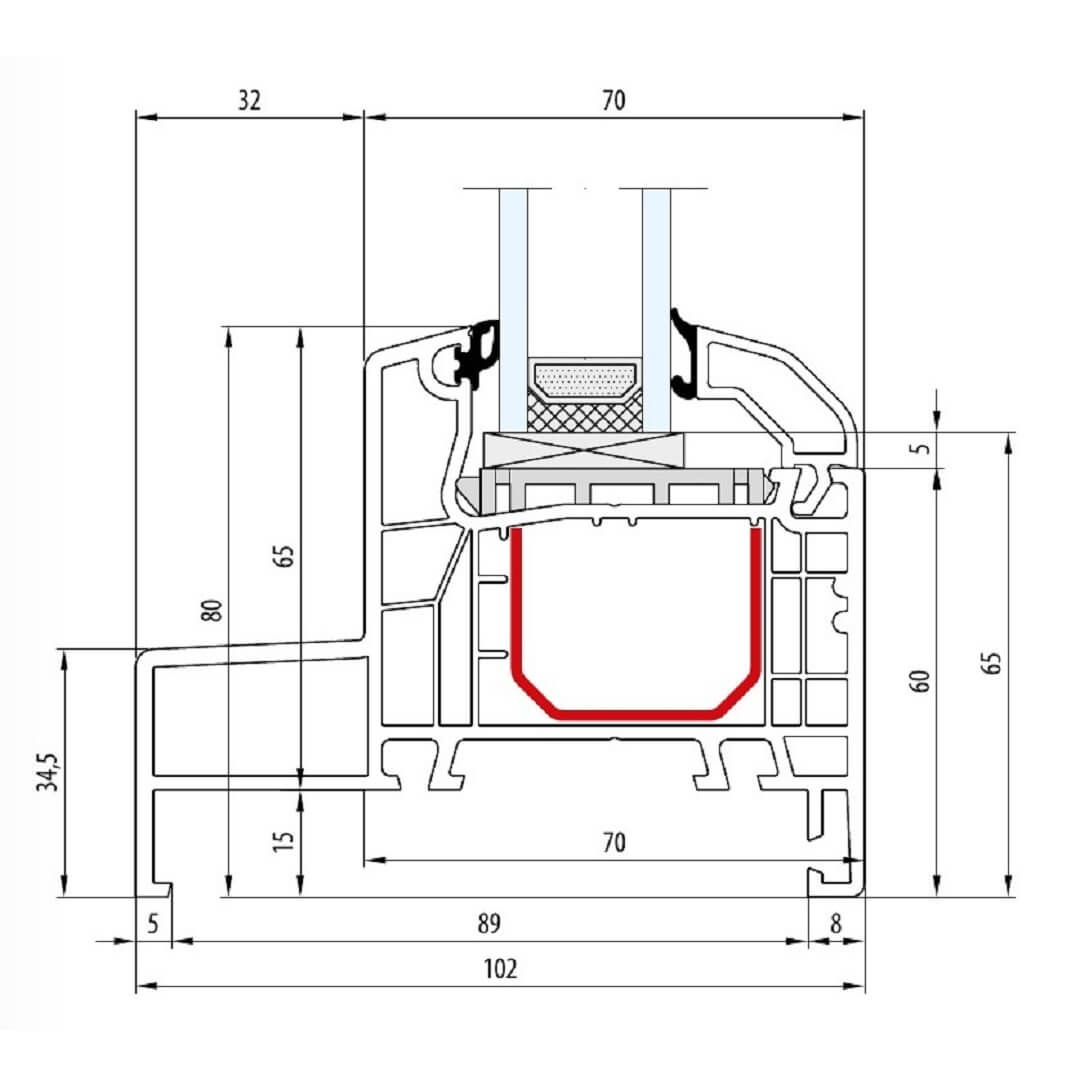
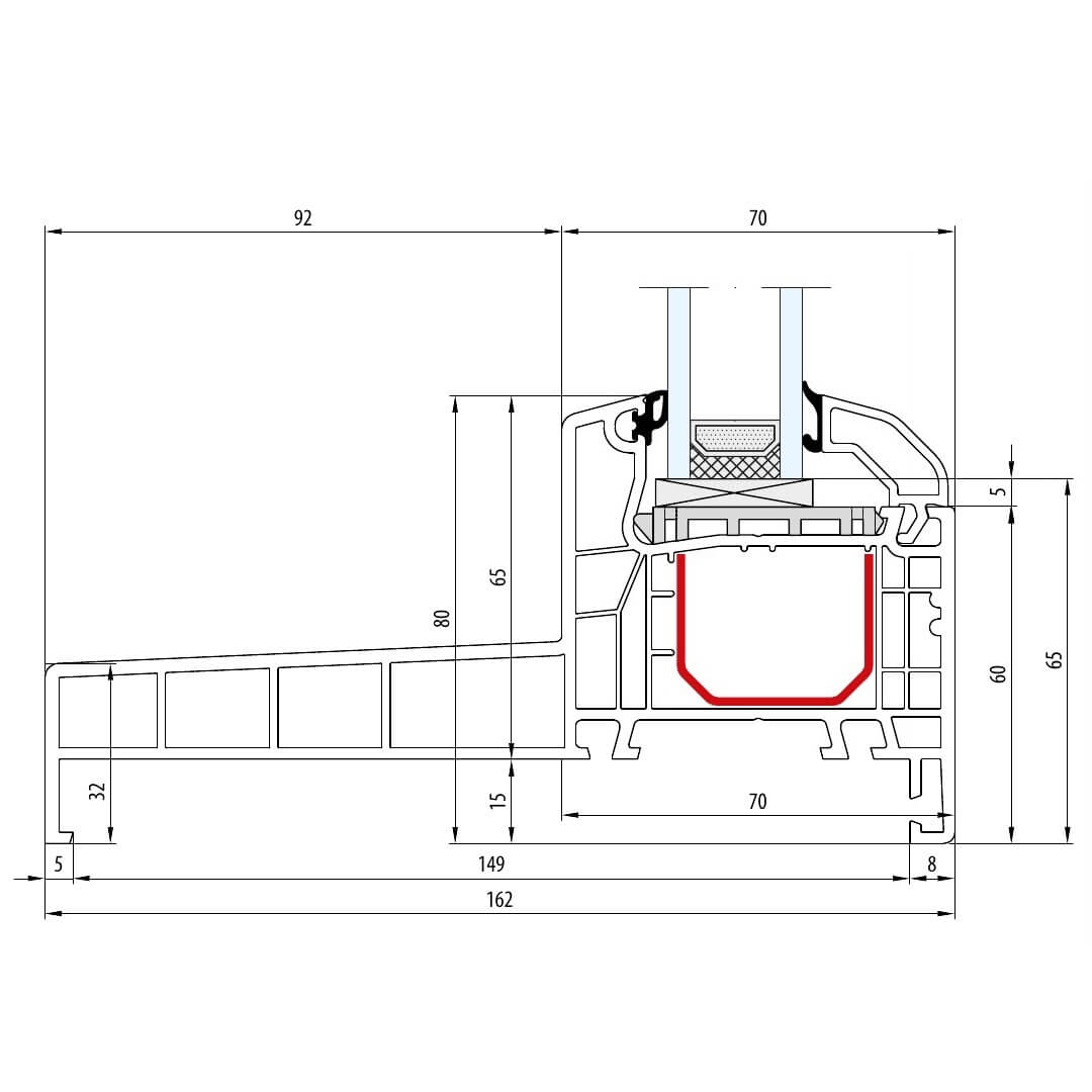
Überblick über die Monoblock Rahmenbautiefen
Große Auswahl an Farben für Aluplast Fensterprofile
Fenster Aluplast IDEAL 4000 Monoblock nach Maß
Technische Querschnitte und Detailzeichnungen
Sie nehmen es auch ganz genau? Dann planen Sie jetzt Ihr Bauvorhaben bis ins kleinste Detail mit den praktischen Profilschnitten und weiteren technischen Zeichnungen vom Profil IDEAL 4000 Monoblock. Hier werden Ihnen nicht nur vielfältige Möglichkeiten gezeigt, sondern Sie können auch die Mechanismen der Profilfunktionalität begutachten sowie Unterschiede zwischen verschiedenen Profilen beurteilen. Zudem werden die möglichen Zusatzprofile wie Bankanschlüsse, Rahmenverbreiterungen oder Kopplungen für das System IDEAL 4000 Monoblock aufgelistet. Danit fügt sich das Fenstersystem ideal in jede Umgebung ein. Dank der vielfältigen Detailzeichnungen können Sie eine exakte Planung vornehmen und so ein optimales Montageergebnis erzielen.
Fenster Aluplast IDEAL 4000 Monoblock nach Maß
Einfach und bequem Fenster Aluplast IDEAL 4000 Monoblock online konfigurieren und bestellen bei fensterblick.de
Weitere Kunststoff-Produkte von Aluplast:
Aluplast Fenster | Aluplast IDEAL 4000 | Aluplast IDEAL 4000 Casement | Aluplast IDEAL 4000 NL | Aluplast IDEAL 6000
Zusammenfassung: Produktinformationen
Kunststofffenster IDEAL 4000 Monoblock
Das IDEAL 4000 Monoblock AD Fenster von Aluplast aus Kunststoff besitzt ein 5-Kammer Profil und 2 Dichtungsebenen. Mit den zusätzlich modernen Beschlägen und Pilzkopfverriegelung werden hohe Parameter in Sicherheit und Energieeinsparung erreicht.
- Marke: Aluplast
- Profil: IDEAL 4000 Monoblock
- Material: Kunststofffenster
- Breite: ab 360 mm
- Höhe: ab 395 mm
- Farbe: Weiß (weitere Farben möglich)
- Verfügbarkeit: Lieferbar
- Zustand: Neu
- Preis: Auf Anfrage
- Online-Shop: fensterblick.de



