Detailzeichnungen System Aluprof SKB Styroterm

Inhaltsverzeichnis:

Aufsatzrollladen SKB Kastenformen Querschnitte

Rollladenkasten SKB RI (Revision innen)

Rollladenkasten SKB mit Kastenhöhe 260mm RI

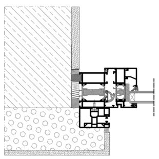
Rollladenkasten SKB 260mm RI

Rollladenkasten SKB mit Kastenhöhe 300mm RI

Rollladenkasten SKB 300mm RI

Rollladenkasten SKB mit Insektenschutz Kastenhöhe 260mm RI

Rollladenkasten SKB 260mm mit Insektenschutz RI

Rollladenkasten SKB mit Insektenschutz Kastenhöhe 300mm RI

Rollladenkasten SKB 300mm mit Insektenschutz RI

Rollladenkasten SKB RA (Revision außen)

Rollladenkasten SKB mit Kastenhöhe 260mm RA

Rollladenkasten SKB 260mm RA

Rollladenkasten SKB mit Kastenhöhe 300mm RA

Rollladenkasten SKB 300mm RA

Rollladenkasten SKB mit Insektenschutz Kastenhöhe 260mm RA

Rollladenkasten SKB 260mm mit Insektenschutz RA

Rollladenkasten SKB mit Insektenschutz Kastenhöhe 300mm RA

Rollladenkasten SKB 300mm mit Insektenschutz RA

Raffstore-Kasten SKB F (Fassadenjalousie)

Raffstorekasten SKB mit Kastenhöhe 260mm F

Raffstorekasten SKB 260mm F

Raffstorekasten SKB mit Kastenhöhe 300mm F

Raffstorekasten SKB 300mm F

Raffstorekasten SKB mit Insektenschutz Kastenhöhe 260mm F

Raffstorekasten SKB 260mm mit Insektenschutz F

Raffstorekasten SKB mit Insektenschutz Kastenhöhe 300mm F

Raffstorekasten SKB 300mm mit Insektenschutz F

Aufsatzrollladen Aluprof SKB Einzelteile

Führungsschienen für Aufsatzrollladen SKB RI (Revision innen)

Aufsatzrollladen Führungsschiene PPA 35mm

Aufsatzrollladen Führungsschiene PPA 35mm

Aufsatzrollladen Führungsschiene PPA 35mm

Aufsatzrollladen Führungsschiene PPA 35mm

Aufsatzrollladen Führungsschiene PP 60mm

Aufsatzrollladen Führungsschiene PP 60mm

Aufsatzrollladen Führungsschiene PP 60mm

Aufsatzrollladen Führungsschiene PP 60mm

Aufsatzrollladen Führungsschiene PPD 60mm

Aufsatzrollladen Führungsschiene PPD 60mm

Aufsatzrollladen Führungsschiene PPD 60mm

Aufsatzrollladen Führungsschiene PPD 60mm zweiseitig

Aufsatzrollladen Führungsschiene PPD-P 60mm

Aufsatzrollladen Führungsschiene PPD-P 60mm zweiseitig

Aufsatzrollladen Führungsschiene PPD-P 60mm

Aufsatzrollladen Führungsschiene PPD-P 60mm

Aufsatzrollladen Führungsschiene PPDA 60mm

Aufsatzrollladen Führungsschiene PPDA 60mm

Aufsatzrollladen Führungsschiene PPDA 60mm

Aufsatzrollladen Führungsschiene PPDA 60mm

Aufsatzrollladen Führungsschiene PPDA-P 60mm

Aufsatzrollladen Führungsschiene PPDA-P 60mm

Aufsatzrollladen Führungsschiene PPDA-P 60mm

Aufsatzrollladen Führungsschiene PPDA-P 60mm

Aufsatzrollladen Führungsschiene PPDMW 60mm

Aufsatzrollladen Führungsschiene PPDMW 60mm

Aufsatzrollladen Führungsschiene PPDMW 60mm

Aufsatzrollladen Führungsschiene PPDMW 60mm

Aufsatzrollladen Führungsschiene PPDMW-P 60mm

Aufsatzrollladen Führungsschiene PPDMW-P 60mm

Aufsatzrollladen Führungsschiene PPDMW-P 60mm

Aufsatzrollladen Führungsschiene PPDMW-P 60mm

Führungsschienen für Aufsatzrollladen SKB RA (Revision außen)

Aufsatzrollladen Führungsschiene APPRA 45mm

Aufsatzrollladen Führungsschiene APPRA 45mm

Aufsatzrollladen Führungsschiene APPDRA 79mm

Aufsatzrollladen Führungsschiene APPDRA 79mm

Aufsatzrollladen Führungsschiene PPRA 12mm

Aufsatzrollladen Führungsschiene PPRA 12mm

Aufsatzrollladen Führungsschiene PPRA 17mm

Aufsatzrollladen Führungsschiene PPRA 17mm

Aufsatzrollladen Führungsschiene PPMRA 12mm

Aufsatzrollladen Führungsschiene PPMRA 12mm

Aufsatzrollladen Führungsschiene PPMRA 17mm

Aufsatzrollladen Führungsschiene PPMRA 17mm

Führungsschienen für Aufsatzrollladen SKB F (Fassadenjalousie)

Raffstorekasten Führungsschiene APPF/B 33mm

Raffstorekasten Führungsschiene APPF/B 33mm

Raffstorekasten Führungsschiene PPF

Raffstorekasten Führungsschiene PPF

Raffstorekasten Führungsschiene PPZ 32 MZN

Raffstorekasten Führungsschiene PPZ 32 MZN

Rollladenpanzer Lamellen (Profile)

Lamelle PA37 Alu technische Zeichnung

Rollladenprofil PA 37mm (Alu)

Lamelle PA39 Alu technische Zeichnung

Rollladenprofil PA 39mm (Alu)

Lamelle PA40 Alu technische Zeichnung

Rollladenprofil PA 40mm (Alu)

Lamelle PA43 Alu technische Zeichnung

Rollladenprofil PA 43mm (Alu)

Lamelle PA45 Alu technische Zeichnung

Rollladenprofil PA 45mm (Alu)

Lamelle PA52 Alu technische Zeichnung

Rollladenprofil PA 52mm (Alu)

Lamelle PA55 Alu technische Zeichnung

Rollladenprofil PA 55mm (Alu)

Lamelle PT37 PVC technische Zeichnung

Rollladenprofil PT 37mm (PVC)

Lamelle PT52 PVC technische Zeichnung

Rollladenprofil PT 52mm (PVC)

Aufsatzrollladen Endleisten (Abschlussleisten)

Rollladen Endleiste 40mm für Aluminium-Panzer Detail

Rollladenpanzer Endleiste LDG 40mm

Aufsatzrollladen Endleiste LDG-E

Aufsatzrollladen Endleiste LDG-E

Aufsatzrollladen Endleiste LDG

Aufsatzrollladen Endleiste LDG

Aufsatzrollladen Endleiste LDG 52mm

Aufsatzrollladen Endleiste LDG 52mm

Aufsatzrollladen Endleiste LDG 52mm OPT

Aufsatzrollladen Endleiste LDG 52mm OPT

Aufsatzrollladen Endleiste LDG 55mm

Aufsatzrollladen Endleiste LDG 55mm

Aufsatzrollladen Endleiste LDG/S

Aufsatzrollladen Endleiste LDG/S

Aufsatzrollladen mit Insektenschutz Abschlussleiste LDSM MKT

Aufsatzrollladen mit Insektenschutz Abschlussleiste LDSM MKT

Aufsatzrollladen Montagearten

Aufsatzrollladen SKB RI (Revision Innen) - Einbaubeispiel 1:

Vorbaurollladen SKB RI Einbaubeispiel 1

Vorbaurollladen SKB Einbaubeispiel 1

Vorbaurollladen SKB RI Einbaubeispiel 1 Führungsschiene

Vorbaurollladen SKB Einbaubeispiel 1 Führungsschiene

Vorbaurollladen SKB RI Einbaubeispiel 1 Führungsschiene schmal

Vorbaurollladen SKB Einbaubeispiel 1 Führungsschiene schmal

Aufsatzrollladen SKB RA (Revision außen) - Einbaubeispiel 2:

Vorbaurollladen SKB RA Einbaubeispiel 2

Vorbaurollladen SKB Einbaubeispiel 2

Vorbaurollladen SKB RA Einbaubeispiel 2 Führungsschiene

Vorbaurollladen SKB Einbaubeispiel 2 Führungsschiene

Vorbaurollladen SKB RA Einbaubeispiel 2 Führungsschiene zweiseitig

Vorbaurollladen SKB Einbaubeispiel 2 Führungsschiene zweiseitig

Aufsatzrollladen SKB F (Fassadenjalousie) - Einbaubeispiel 3:

Vorbaurollladen SKB F Einbaubeispiel 3

Vorbaurollladen SKB Einbaubeispiel 3

Vorbaurollladen SKB F Einbaubeispiel 3 Führungsschiene

Vorbaurollladen SKB Einbaubeispiel 3 Führungsschiene

Aufsatzrollladen SKB RI (Revision innen) mit Insektenschutz - Beispiel 4:

Vorbaurollladen SKB RI Einbaubeispiel 4 mit Insektenschutz

Vorbaurollladen SKB Einbaubeispiel 4 mit Insektenschutz

Vorbaurollladen SKB RI Einbaubeispiel 4 mit Insektenschutz Führungsschiene

Vorbaurollladen SKB Einbaubeispiel 4 mit Insektenschutz Führungsschiene

Vorbaurollladen SKB RI Einbaubeispiel 4 mit Insektenschutz Führungsschiene zweiseitig

Vorbaurollladen SKB Einbaubeispiel 4 mit Insektenschutz Führungsschiene zweiseitig

Aufsatzrollladen SKB RA (Revision außen) mit Insektenschutz - Beispiel 5:

Vorbaurollladen SKB RA Einbaubeispiel 5 mit Insektenschutz

Vorbaurollladen SKB Einbaubeispiel 5 mit Insektenschutz

Vorbaurollladen SKB RA Einbaubeispiel 5 mit Insektenschutz Führungsschiene

Vorbaurollladen SKB Einbaubeispiel 5 mit Insektenschutz Führungsschiene

Vorbaurollladen SKB RA Einbaubeispiel 5 mit Insektenschutz Führungsschiene zweiseitig

Vorbaurollladen SKB Einbaubeispiel 5 mit Insektenschutz Führungsschiene zweiseitig

Aufsatzrollladen SKB F (Fassadenjalousie) mit Insektenschutz - Beispiel 6:

Vorbaurollladen SKB F Einbaubeispiel 6 mit Insektenschutz

Vorbaurollladen SKB Einbaubeispiel 6 mit Insektenschutz

Vorbaurollladen SKB F Einbaubeispiel 6 mit Insektenschutz Führungsschiene

Vorbaurollladen SKB Einbaubeispiel 6 mit Insektenschutz Führungsschiene

Technische Daten - Aufsatzrollladen Aluprof SKB Styroterm
Weiter zur Produktseite Aufsatzrollladen Aluprof SKB Styroterm

Das könnte Sie auch interessieren:

Aufsatzrollladen SKT Opoterm

Detailzeichnungen Aufsatzrollladen Aluprof SKT Opoterm 210

SKT Opoterm - Praktisches Aufsatzrollladen-System mit hervorragender Wärmedämmung.

Detailzeichnungen Aluprof SKT Opoterm

Aufsatzrollladen Drutex RN

Detailzeichnungen Aufsatzrollladen Drutex RN 215mm

Drutex Aufsatzrollladen RN, die ideale Lösung für alle Jahreszeiten – Energieersparnis, Sicherheit, Privatsphäre.

Detailzeichnungen Drutex RN