Detailzeichnungen Aufsatzrollladen PCC

Inhaltsverzeichnis:

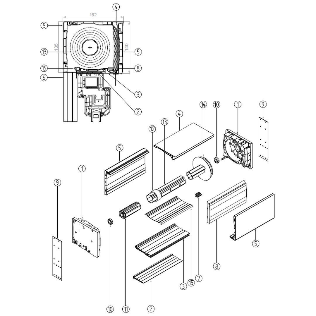
Aufsatzrollladen PCC Explosionszeichnung

Aufsatzrollladen PCC Explosionszeichnung

Explosionszeichnung PCC

  1. Blendklappe
  2. Adapterprofil
  3. Anschlussprofil
  4. Oberprofil des Kastens
  5. Innen- und Außenblende des Kastens
  6. Doppelführungsschiene
  7. Gurtführung
  8. Wärmedämmeinlage
  9. Stahl-Seitenhalterung
  10. Kugellager für PVC
  11. Walzenkapsel für PVC mit Schaft
  1. Adapterring
  2. Achtkant-Stahlwelle
  3. Gurtscheibe für Kasten
  4. Kastenarmierung Stahl

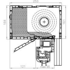
Aufsatzrollladen PCC Kastenformen mit Revisionsklappen

Aufsatzrollladen PCC mit Kastenhöhe 135mm mit Revision

Aufsatzrollladen PCC 135mm mit Revision

Aufsatzrollladen PCC mit Kastenhöhe 160mm mit Revision

Aufsatzrollladen PCC 160mm mit Revision

Aufsatzrollladen PCC mit Kastenhöhe 200mm mit Revision

Aufsatzrollladen PCC 200mm mit Revision

Aufsatzrollladen PCC Konsole und Montageanker

Aufsatzrollladen PTL Stahlkonsole KNS-160 KNS-200

Aufsatzrollladen Stahlkonsole KNS-160 / KNS-200

Aufsatzrollladen PTL Stahlkonsole KNS-WSP-160 mit Armierung

Aufsatzrollladen Stahlkonsole KNS-WSP-160 mit Armierung

Aufsatzrollladen PTL Stahlkonsole KNSK-WSP-200 mit Verbinder

Aufsatzrollladen Stahlkonsole KNSK-WSP-200 mit Verbinder

Aufsatzrollladen PTL Stahlkonsole SKM Montageanker

Aufsatzrollladen Stahlkonsole SKM Montageanker

Aufsatzrollladen PCC Einzelteile

Adapterprofile für Aufsatzrollladen PCC

Aufsatzrollladen Adapterprofil RN 1-70 B universal

Aufsatzrollladen Adapterprofil RN 1-70 B universal

Aufsatzrollladen Adapterprofil RN 1-70 universal

Aufsatzrollladen Adapterprofil RN 1-70 universal

Aufsatzrollladen Adapterprofil RN 1 universal

Aufsatzrollladen Adapterprofil RN 1 universal

Aufsatzrollladen Adapterprofil RN 5

Aufsatzrollladen Adapterprofil RN 5

Aufsatzrollladen Adapterprofil RN 10

Aufsatzrollladen Adapterprofil RN 10

Aufsatzrollladen Adapterprofil RN 14

Aufsatzrollladen Adapterprofil RN 14

Führungsschienen für Aufsatzrollladen PCC

Aufsatzrollladen Führungsschiene RK 16mm einzeln

Aufsatzrollladen Führungsschiene RK 16mm einzeln

Aufsatzrollladen Führungsschiene RK 18 mm doppelt

Aufsatzrollladen Führungsschiene RK 18mm doppelt

Aufsatzrollladen Führungsschiene DP PVC 20mm Distanzstück

Aufsatzrollladen Führungsschiene DP PVC 20mm Distanzstück

Aufsatzrollladen Führungsschiene RK 18 mm Maxi einzeln

Aufsatzrollladen Führungsschiene RK 18mm Maxi einzeln

Aufsatzrollladen Führungsschiene RK 18 mm Maxi doppelt

Aufsatzrollladen Führungsschiene RK 18mm Maxi doppelt

Rollladenpanzer Lamellen (Profile)

Lamelle PA39 Alu technische Zeichnung

Rollladenprofil PA 39mm (Alu)

Lamelle PA45 Alu technische Zeichnung

Rollladenprofil PA 45mm (Alu)

Lamelle PA52 Alu technische Zeichnung

Rollladenprofil PA 52mm (Alu)

Aufsatzrollladen Endleisten (Abschlussleisten)

Rollladen Endleiste 35mm Mini für Aluminium-Panzer Detail

Rollladenpanzer Endleiste LD 35mm Mini

Rollladen Endleiste 37mm für Aluminium-Panzer Detail

Rollladenpanzer Endleiste LD 37mm

Aufsatzrollladen PCC Antriebsbohrungen

Aufsatzrollladen PCC Antriebsbohrungen Gurtausgang

Aufsatzrollladen Gurtausgang Kasten 135mm Typ A

Aufsatzrollladen Gurtausgang Kasten 135mm Typ A

Aufsatzrollladen Gurtausgang Kasten 160mm Typ A

Aufsatzrollladen Gurtausgang Kasten 160mm Typ A

Aufsatzrollladen Gurtausgang Kasten 200mm Typ A

Aufsatzrollladen Gurtausgang Kasten 200mm Typ A

Aufsatzrollladen PCC Antriebsbohrungen Kurbelausgang

Aufsatzrollladen Kurbelgetriebe Kasten 135mm

Aufsatzrollladen Kurbelgetriebe Kasten 135mm

Aufsatzrollladen Kurbelgetriebe Kasten 160mm

Aufsatzrollladen Kurbelgetriebe Kasten 160mm

Aufsatzrollladen Kurbelgetriebe Kasten 200mm

Aufsatzrollladen Kurbelgetriebe Kasten 200mm

Aufsatzrollladen PCC Antriebsbohrungen mit Nothandkurbel

Aufsatzrollladen Motor Kasten 160mm mit Nothandkurbel

Aufsatzrollladen Motor Kasten 160mm mit Nothandkurbel

Aufsatzrollladen Motor Kasten 200mm mit Nothandkurbel

Aufsatzrollladen Motor Kasten 200mm mit Nothandkurbel

Aufsatzrollladen PCC Montagearten

Aufsatzrollladen Führungsschienen PCC - Einbaubeispiel:

Aufsatzrollladen Führungsschiene RK 16mm einzeln Montage

Aufsatzrollladen Führungsschiene RK 16mm einzeln Montage

Aufsatzrollladen Führungsschiene RK 18mm doppelt Montage

Aufsatzrollladen Führungsschiene RK 18mm doppelt Montage

Drutex Fensterlieferung

Kostenlose Lieferung

Ab einer Bestellung von 10 Fenstern deutschlandweit!

Jetzt Angebot für Aufsatzrollladen anfordern

Das könnte Sie auch interessieren:

Aufsatzrollladen PTL

Detailzeichnungen Aufsatzrollladen PTL 160mm

Der Aufsatzrollladen PTL steht für ein optimales Preis-Leistungsverhältnis.

Detailzeichnungen Aufsatzrollladen PTL

Aufsatzrollladen PMX

Detailzeichnungen Aufsatzrollladen PMX 160mm

Der Aufsatzrollladen PMX wurde für Renovierungs- und Monoblockfenster entwickelt.

Detailzeichnungen Aufsatzrollladen PMX