Detailzeichnungen Vorbaurollladen Aluprof SP-E

Inhaltsverzeichnis:

Vorbaurollladen SP-E Kastenformen Querschnitte

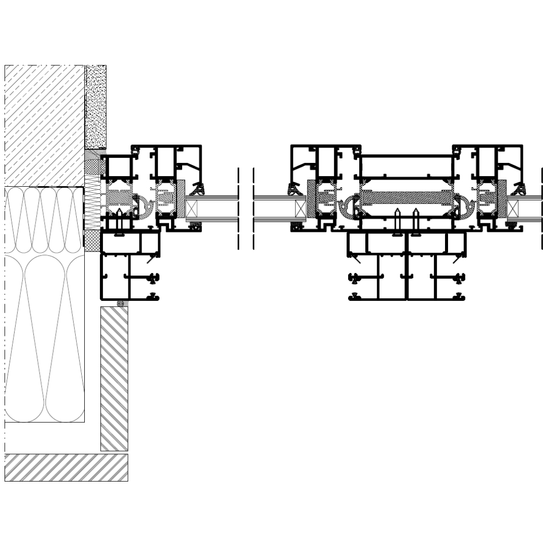
Vorbaurollladen SP-E mit Kastenhöhe 137mm

Vorbaurollladen SP-E 137mm

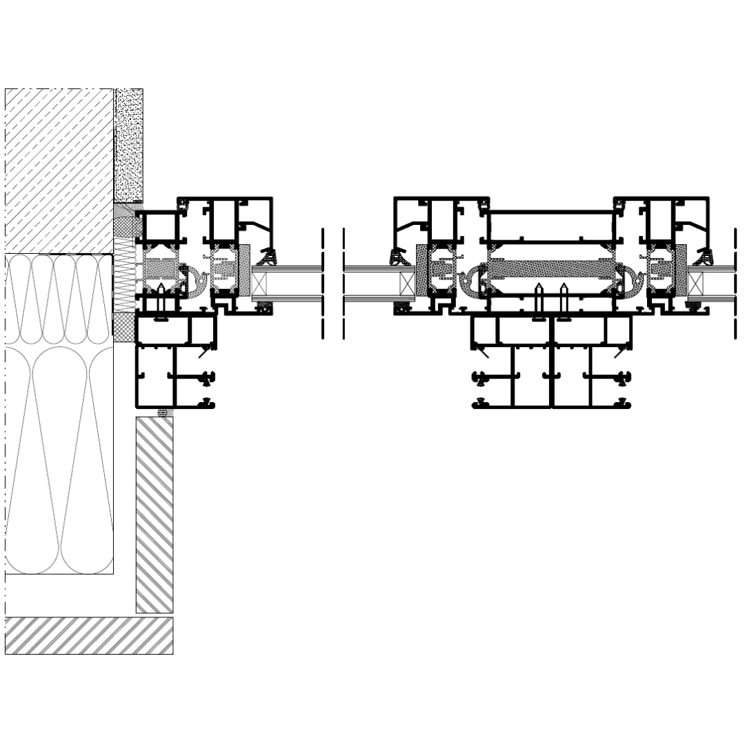
Vorbaurollladen SP-E mit Kastenhöhe 150mm

Vorbaurollladen SP-E 150mm

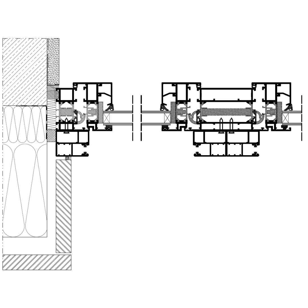
Vorbaurollladen SP-E mit Kastenhöhe 165mm

Vorbaurollladen SP-E 165mm

Vorbaurollladen SP-E mit Kastenhöhe 180mm

Vorbaurollladen SP-E 180mm

Vorbaurollladen SP-E mit Kastenhöhe 205mm

Vorbaurollladen SP-E 205mm

Vorbaurollladen Aluprof SP-E Einzelteile

Führungsschienen für Vorbaurollladen SP-E

Vorbaurollladen Führungsschiene PP 45mm

Vorbaurollladen Führungsschiene PP 45mm

Vorbaurollladen Führungsschiene PP 53mm

Vorbaurollladen Führungsschiene PP 53mm

Vorbaurollladen Führungsschiene PK 53mm mit Winkel

Vorbaurollladen Führungsschiene PK 53mm mit Winkel

Vorbaurollladen Führungsschiene PK 53mm mit Winkel 120mm

Vorbaurollladen Führungsschiene PK 53mm mit Winkel 120mm

Vorbaurollladen Führungsschiene 53mm ODS mit Absatz

Vorbaurollladen Führungsschiene 53mm ODS mit Absatz

Vorbaurollladen Führungsschiene PP 53mm mit Absatz 20mm

Vorbaurollladen Führungsschiene PP 53mm ODS mit Absatz 20mm

Vorbaurollladen Führungsschiene mit Insektenschutz 53mm PPDO

Vorbaurollladen Führungsschiene mit Insektenschutzgitter PPDO 53mm

Vorbaurollladen Führungsschiene mit Insektenschutz 53mm mit Absatz PPMO

Vorbaurollladen Führungsschiene mit Insektenschutzgitter PPMO mit Absatz 53mm

Vorbaurollladen Führungsschiene 66mm PP

Vorbaurollladen Führungsschiene PP 66mm

Vorbaurollladen Führungsschiene 68mm PP

Vorbaurollladen Führungsschiene PP 68mm

Vorbaurollladen Führungsschiene 79mm PPD doppelt

Vorbaurollladen Führungsschiene PPD 79mm doppelt

Vorbaurollladen Führungsschiene 79mm PPD ODS doppelt mit Absatz

Vorbaurollladen Führungsschiene PPD 79mm doppelt mit Absatz ODS

Vorbaurollladen Führungsschiene 66mm PPW verstärkt

Vorbaurollladen Führungsschiene PPW 66mm verstärkt

Vorbaurollladen Führungsschiene 80mm PPW verstärkt

Vorbaurollladen Führungsschiene PPW 80mm verstärkt

Vorbaurollladen Führungsschiene Schnappplatte PZO

Vorbaurollladen Führungsschiene Schnappplatte PZO

Rollladenpanzer Lamellen (Profile)

Lamelle PA37 Alu technische Zeichnung

Rollladenprofil PA 37mm (Alu)

Lamelle PA39 Alu technische Zeichnung

Rollladenprofil PA 39mm (Alu)

Lamelle PA40 Alu technische Zeichnung

Rollladenprofil PA 40mm (Alu)

Lamelle PA43 Alu technische Zeichnung

Rollladenprofil PA 43mm (Alu)

Lamelle PA45 Alu technische Zeichnung

Rollladenprofil PA 45mm (Alu)

Lamelle PA52 Alu technische Zeichnung

Rollladenprofil PA 52mm (Alu)

Lamelle PA55 Alu technische Zeichnung

Rollladenprofil PA 55mm (Alu)

Lamelle PT37 PVC technische Zeichnung

Rollladenprofil PT 37mm (PVC)

Lamelle PT52 PVC technische Zeichnung

Rollladenprofil PT 52mm (PVC)

Vorbaurollladen Endleisten (Abschlussleisten)

Rollladen Endleiste 40mm für Aluminium-Panzer Detail

Rollladenpanzer Endleiste LDG 40mm

Vorbaurollladen Endleiste LDG-E

Vorbaurollladen Endleiste LDG-E

Vorbaurollladen Endleiste LDG

Vorbaurollladen Endleiste LDG

Vorbaurollladen Endleiste LDG 52mm

Vorbaurollladen Endleiste LDG 52mm

Vorbaurollladen Endleiste LDG 52mm OPT

Vorbaurollladen Endleiste LDG 52mm OPT

Vorbaurollladen Endleiste LDG 55mm

Vorbaurollladen Endleiste LDG 55mm

Vorbaurollladen Endleiste LDG/S

Vorbaurollladen Endleiste LDG/S

Vorbaurollladen mit Insektenschutz Abschlussleiste LDSM MKT

Vorbaurollladen mit Insektenschutz Abschlussleiste LDSM MKT

Vorbaurollladen Montagearten

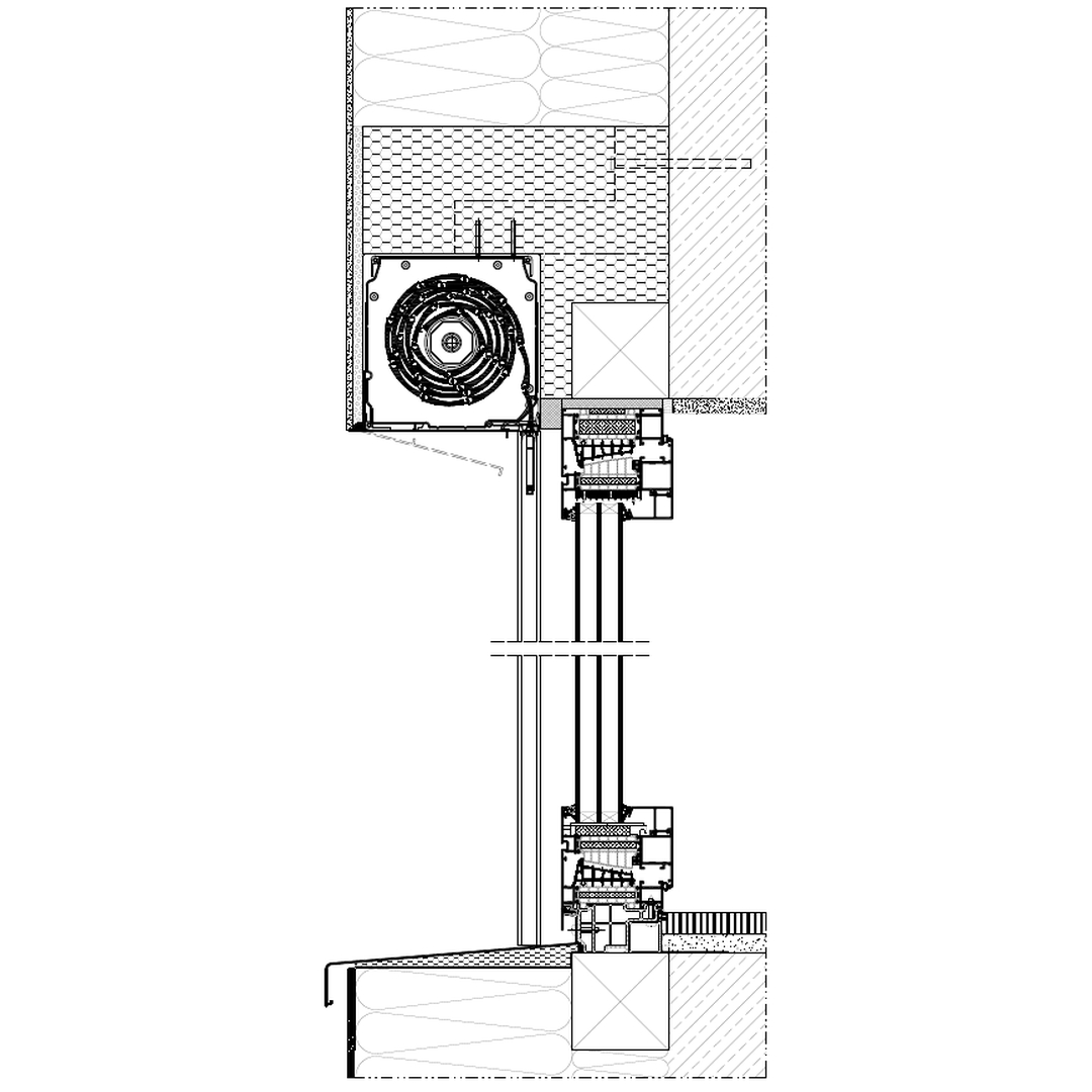
Vorbaurollladen SP-E - Einbaubeispiel 1:

Vorbaurollladen SP-E Einbaubeispiel 1

Vorbaurollladen SP-E Einbaubeispiel 1

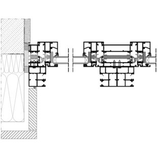
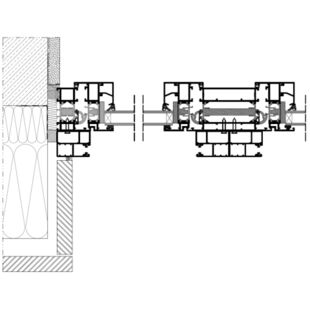
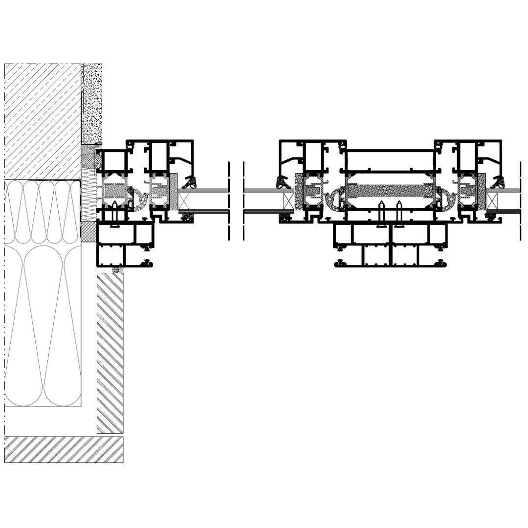
Vorbaurollladen SP-E Einbaubeispiel 1 Führungsschiene

Vorbaurollladen SP-E Einbaubeispiel 1 Führungsschiene

Vorbaurollladen SP-E - Einbaubeispiel 2:

Vorbaurollladen SP-E Einbaubeispiel 2

Vorbaurollladen SP-E Einbaubeispiel 2

Vorbaurollladen SP-E Einbaubeispiel 2 Führungsschiene

Vorbaurollladen SP-E Einbaubeispiel 2 Führungsschiene

Vorbaurollladen SP-E Einbaubeispiel 2 Führungsschiene zweiseititg

Vorbaurollladen SP-E Einbaubeispiel 2 Führungsschiene zweiseitig

Vorbaurollladen SP-E MKT Einbaubeispiel 2

Vorbaurollladen SP-E MKT Einbaubeispiel 2

Vorbaurollladen SP-E MKT Einbaubeispiel 2 Führungsschiene

Vorbaurollladen SP-E MKT Einbaubeispiel 2 Führungsschiene

Vorbaurollladen SP-E MKT Einbaubeispiel 2 Führungsschiene zweiseitig

Vorbaurollladen SP-E MKT Einbaubeispiel 2 Führungsschiene zweiseitig

Vorbaurollladen SP-E - Einbaubeispiel 3:

Vorbaurollladen SP-E Einbaubeispiel 3

Vorbaurollladen SP-E Einbaubeispiel 3

Vorbaurollladen SP-E Einbaubeispiel 3 Führungsschiene

Vorbaurollladen SP-E Einbaubeispiel 3 Führungsschiene

Vorbaurollladen SP-E Einbaubeispiel 3 Führungsschiene zweiseitig

Vorbaurollladen SP-E Einbaubeispiel 3 Führungsschiene zweiseitig

Vorbaurollladen SP-E MKT Einbaubeispiel 3

Vorbaurollladen SP-E MKT Einbaubeispiel 3

Vorbaurollladen SP-E MKT Einbaubeispiel 3 Führungsschiene

Vorbaurollladen SP-E MKT Einbaubeispiel 3 Führungsschiene

Vorbaurollladen SP-E MKT Einbaubeispiel 3 Führungsschiene zweiseitig

Vorbaurollladen SP-E MKT Einbaubeispiel 3 Führungsschiene zweiseitig

Vorbaurollladen SP-E - Einbaubeispiel 4:

Vorbaurollladen SP-E Einbaubeispiel 4

Vorbaurollladen SP-E Einbaubeispiel 4

Vorbaurollladen SP-E Einbaubeispiel 4 Führungsschiene

Vorbaurollladen SP-E Einbaubeispiel 4 Führungsschiene

Vorbaurollladen SP-E Einbaubeispiel 4 Führungsschiene zweiseitig

Vorbaurollladen SP-E Einbaubeispiel 4 Führungsschiene zweiseitig

Vorbaurollladen SP-E MKT Einbaubeispiel 4

Vorbaurollladen SP-E MKT Einbaubeispiel 4

Vorbaurollladen SP-E MKT Einbaubeispiel 4 Führungsschiene

Vorbaurollladen SP-E MKT Einbaubeispiel 4 Führungsschiene

Vorbaurollladen SP-E MKT Einbaubeispiel 4 Führungsschiene zweiseitig

Vorbaurollladen SK MKT Einbaubeispiel 4 Führungsschiene zweiseitig

Vorbaurollladen SP-E - Einbaubeispiel 5:

Vorbaurollladen SP-E Einbaubeispiel 5

Vorbaurollladen SP-E Einbaubeispiel 5

Vorbaurollladen SP-E Einbaubeispiel 5 Führungsschiene

Vorbaurollladen SP-E Einbaubeispiel 5 Führungsschiene

Vorbaurollladen SP-E Einbaubeispiel 5 Führungsschiene zweiseitig

Vorbaurollladen SP-E Einbaubeispiel 5 Führungsschiene zweiseitig

Vorbaurollladen SP-E MKT Einbaubeispiel 5

Vorbaurollladen SP-E MKT Einbaubeispiel 5

Vorbaurollladen SP-E MKT Einbaubeispiel 5 Führungsschiene

Vorbaurollladen SP-E MKT Einbaubeispiel 5 Führungsschiene

Vorbaurollladen SP-E MKT Einbaubeispiel 5 Führungsschiene zweiseitig

Vorbaurollladen SP-E MKT Einbaubeispiel 5 Führungsschiene zweiseitig

Technische Daten - Vorbaurollladen Aluprof SP-E
Weiter zur Produktseite Vorbaurollladen Aluprof SP-E

Drutex Fensterlieferung

Kostenlose Lieferung

Ab einer Bestellung von 10 Fenstern deutschlandweit!

Jetzt Angebot für Vorbaurollladen anfordern

Das könnte Sie auch interessieren:

Vorbaurollladen SKO-P

Detailzeichnungen Vorbaurollladen Aluprof SKO-P

Vorbaurollladen Rundkasten Aluprof SKO-P mit starken Eigenschaften und allzeit nachrüstbar.

Detailzeichnungen Aluprof SKO-P

Vorbaurollladen SK

Detailzeichnungen Vorbaurollladen Aluprof SK

Der Vorbaurollladen Aluprof SK besitzt ein Kasten mit abgeschrägten 45° Winkel für eine kantige Optik.

Detailzeichnungen Aluprof SK