Einfach und bequem Schiebetür Salamander evolutionDrive Plus+ online konfigurieren und bestellen bei fensterblick.de
Salamander evolutionDrive Plus+ Schiebetüren aus PVC
Platzsparend, raumöffnend – ein Zugewinn an Wohnraum
- Mehrkammerprofilsystem
- Geschlossene Dichtung im Rahmen
- Ansprechende Optik
- Platzsparender Schiebekomfort
- Modernes Raumwunder
- Großflächige Schiebetüren für Terrasse und Balkon
Produktbeschreibung
Salamander evolutionDrive Plus+ Bedienkomfort und Panoramablick im Einklang
Das neue Schiebefenstersystem evolutionDrive Plus+ von Salamander bietet Platzersparnis, Lüftungskomfort und raumöffnende Wirkung durch großzügige Glasflächen. Das Unternehmen legt besonderen Wert auf Erlebbarkeit, Design, Komfort und Nachhaltigkeit, um das bestmögliche Ergebnis für seine Kunden und die Zukunft des Fensters zu erreichen. Groß dimensionierte Schiebetüren und -fenster liegen im Trend der modernen Architektur und schaffen ein großzügiges und helles Ambiente im Wohnraum. Selbst in kleinen Wohnsituationen sind sie die platzsparende Verbindung nach draußen und schaffen einen wertvollen Zugewinn an Wohnraum. Salamander-Schiebeelemente überzeugen durch optimale Dichtheit, auch bei Wind, Wetter und Hagel. Die richtigen Elemente können das Einbruchsrisiko um bis zu 80 % verringern und Lärmbelästigung um bis zu 75 % reduzieren. Da Standort, Gebäude und Bewohner sehr individuell sind, ist die optimale Konfiguration der Türen und Fenster unerlässlich.
Weiter zu Detailzeichnungen - Salamander evolutionDrive Plus
Große Farbauswahl für die Fensterprofile
Schiebetüren Salamander evolutionDrive Plus+ nach Maß
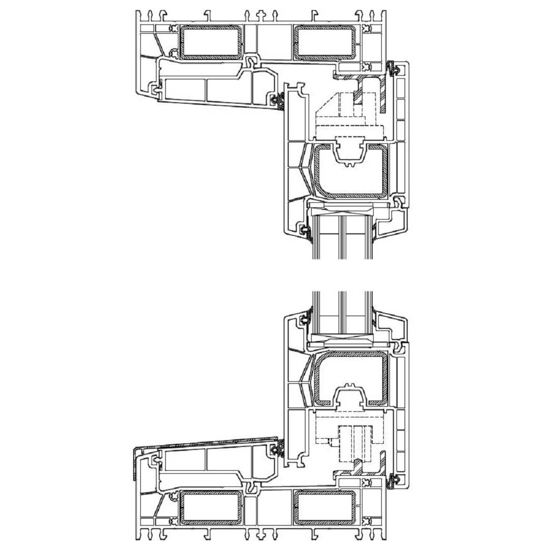
Technische Querschnitte und Detailzeichnungen
Weitere Informationen zu Detailzeichnungen - evolutionDrive Plus
Weitere Kunststoff-Produkte von Salamander:
Salamander Fenster | Salamander greenEvolution | Salamander Streamline 76 | evolutionDrive Jetline | evolutionDrive HST 82 | Salamander Greta HST
Zusammenfassung: Produktinformationen
Schiebetür evolutionDrive Plus+
Das evolutionDrive Plus+ Profil von Salamander aus Kunststoff überzeugt durch seinen platzsparenden Schiebe- und Lüftungskomfort sowie seine raumöffnende Wirkung durch großzügige Glasflächen.
- Marke: Salamander
- Profil: evolutionDrive Plus+
- Material: Kunststofffenster
- Breite: ab 1600 mm
- Höhe: ab 800 mm
- Farbe: Weiß (weitere Farben möglich)
- Verfügbarkeit: Lieferbar
- Zustand: Neu
- Preis: Auf Anfrage
- Online-Shop: fensterblick.de


