Einfach und bequem Schiebefenster & -tür Salamander evolutionDrive SF online konfigurieren und bestellen bei fensterblick.de
Salamander evolutionDrive SF Schiebefenster / Schiebetür aus PVC
Wo Flexibilität verständlich wird.
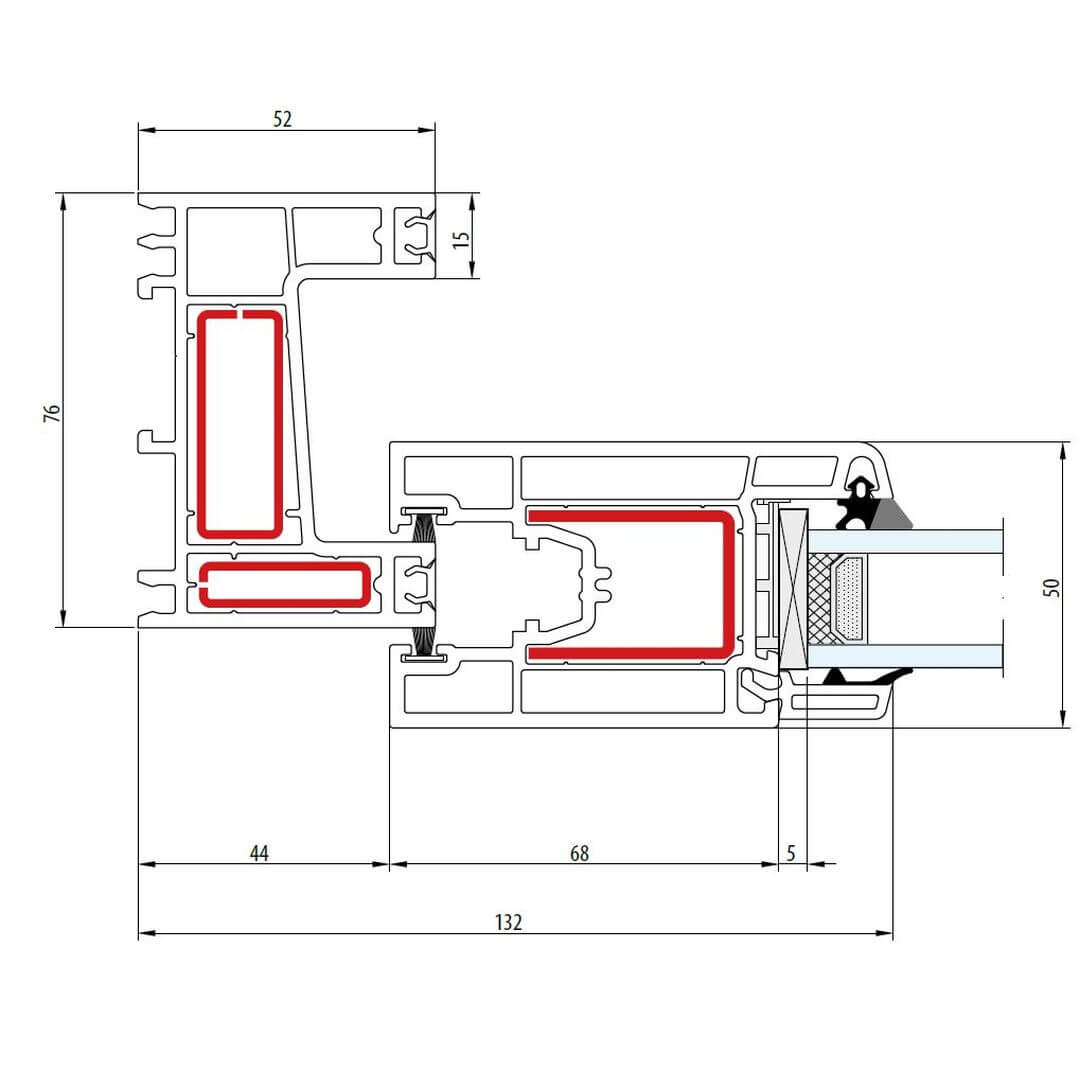
- Bautiefe Rahmen 76mm
- Bautiefe 50mm
- 2- und 3-läufiges Schiebefenster
- Scheibenpakete bis 28mm
- Größe: 1,70 x 2,40m
- Leichtgängiges Schieben
- Variabler Einsatz als Schiebefenster- oder Schiebetürkonstruktion
Produktbeschreibung
Salamander evolutionDrive SF Profil- maximale Flexibilität für verschiedenste Anforderungen und Einsatzbereiche
Erleben Sie das innovative Konzept von Salamander evolutionDrive SF Profilen: es überzeugt mit seiner Vielseitigkeit als Schiebefenster- oder Schiebetürkonstruktion und bietet Ihnen somit maximale Flexibilität. Mit einer Rahmenbautiefe von 76mm präsentiert sich dieses moderne Profil in einem zeitgemäßen Baustil und ist kompatibel mit allen Anschlussprofilen und Verglasungstechniken der Salamander Streamline-Serie. Das schmale Profil ermöglicht großflächige Gläser bei geringer Ansichtsbreite und schafft so einen optimalen Lichteinfall für jegliche Vorhaben. Salamanders umfangreiches Dekorsortiment bietet Ihnen unendliche Gestaltungsmöglichkeiten, um Ihre individuellen Bedürfnissen zu erfüllen. Entdecken Sie das evolutionDrive SF Profil als Schiebefenster oder Schiebetür und geben Sie Ihrer Kreativität mit unseren Konfigurator freien Lauf!
Weiter zu Detailzeichnungen - evolutionDrive SF
Große Farbauswahl für die Fensterprofile
Schiebefenster Salamander evolutionDrive SF nach Maß
Salamander evolutionDrive SF - private oder gewerbliche Nutzung?
Gewerbliche Nutzung
Das Schiebefenster bzw. die Schiebetür sind ideale Lösungen für gewerbliche Einsatzbereiche wie Hotels, Verkaufsräume, Schulen und viele weitere Bereiche. Die einfache Bedienung und Funktion machen den Einsatz sehr bequem. Besonders praktisch ist das Stoßlüften, da selbst bei Zugluft keine unkontrollierten Bewegungen der Fensterflügel entstehen die dann zum Aufschlagen des Fensterflügels auf den Rahmen führen.
Private Nutzung
Schiebefenster und Schiebetüren sind auch für private Einsatzbereiche eine optimale Lösung. Sie ermöglichen eine optimale Raumnutzung, da kein Platzverlust durch in den Innenraum stehende Fensterflügel entsteht. Zudem besteht keine Verletzungsgefahr durch Fensterflügel, die in den Raum hineinragen. Die Öffnung der Schiebefenster und Schiebetüren ist leichtgängig und der hohe Lichteinfall sorgt für eine angenehme Wohnatmosphäre. Die Innenräume wirken heller und großzügiger und Möbel können flexibler positioniert werden, da kein Schwenken des Fensterflügels erforderlich ist.
Schiebetür Salamander evolutionDrive SF nach Maß
Einfach und bequem Schiebefenster & -tür Salamander evolutionDrive SF online konfigurieren und bestellen bei fensterblick.de
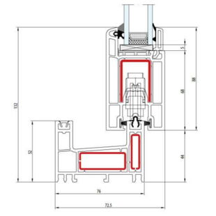
Technische Querschnitte und Detailzeichnungen
Entdecken Sie alle Vorzüge des SALAMANDER evolutionDrive SF-Systems dank der detailgetreuen Profilschnitte! Hier sind Maße, Aufbau, Modellvarianten und Verglasungspakete angegeben, um Ihnen eine präzise Planung Ihrer neuen Fenster oder Türen zu ermöglichen. Das verschafft Ihnen nicht nur Sicherheit, sondern erleichtert auch maßgeblich die spätere Montage, da jedes Fenster genau auf Ihre Anforderungen zugeschnitten ist. Darüber hinaus finden Sie diverse Möglichkeiten der Rahmenverbreiterung, um auch spezielle Maueröffnungen optimal mit Ihrem Wunschprofil ausstatten zu können – beispielsweise bei Altbauten mit Mauerversatz oder wenn Sie mehr Platz benötigen, um den Gurtwickler des Rolllandens unterzubringen. Die technischen Zeichnungen helfen Ihnen dabei, die exakten Maße zu bestimmen. So können Sie wirklich bis ins letzte Detail planen und Ihre Vorstellungen akkurat verwirklichen.
Weitere Informationen zu Detailzeichnungen - evolutionDrive SF
Weitere Kunststoff-Produkte von Salamander:
Salamander Fenster | Salamander greenEvolution | Salamander Streamline 76 | evolutionDrive Jetline | evolutionDrive HST 82 | Salamander Greta HST
Zusammenfassung: Produktinformationen
Schiebefenster/-tür evolutionDrive SF
Das evolutionDrive SF Profil von Salamander aus Kunststoff ist ein 2- 3-läufiges Schiebefensterprofil. Das Profil überzeugt mit seiner Flexibiltät da es als Schiebefenster oder Schiebtür konfiguriert werden kann.
- Marke: Salamander
- Profil: evolutionDrive SF
- Material: Kunststofffenster
- Breite: ab 1600 mm
- Höhe: ab 800 mm
- Farbe: Weiß (weitere Farben möglich)
- Verfügbarkeit: Lieferbar
- Zustand: Neu
- Preis: Auf Anfrage
- Online-Shop: fensterblick.de



