Detailzeichnungen Alu Hebeschiebetür MB-77 HST

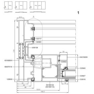
Hebeschiebetürprofil Aluprof MB-77 Querschnitte

Hebeschiebetür Rahmenprofil Aluprof MB-77

Aluplast MB-77 HS Tür Rahmen mit Schiebeflügel Detailzeichnung

MB-77 HS Tür Rahmen mit Schiebeflügel

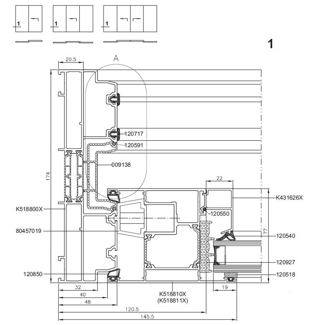
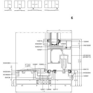
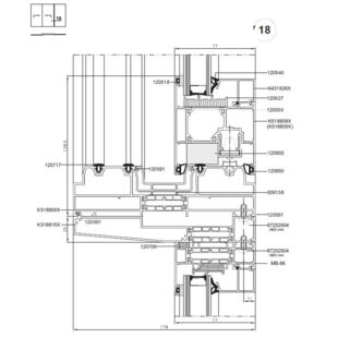
Aluprof MB-77 Tür Rahmen mit Schiebeflügel oben

MB-77 Tür Rahmen mit Schiebeflügel oben

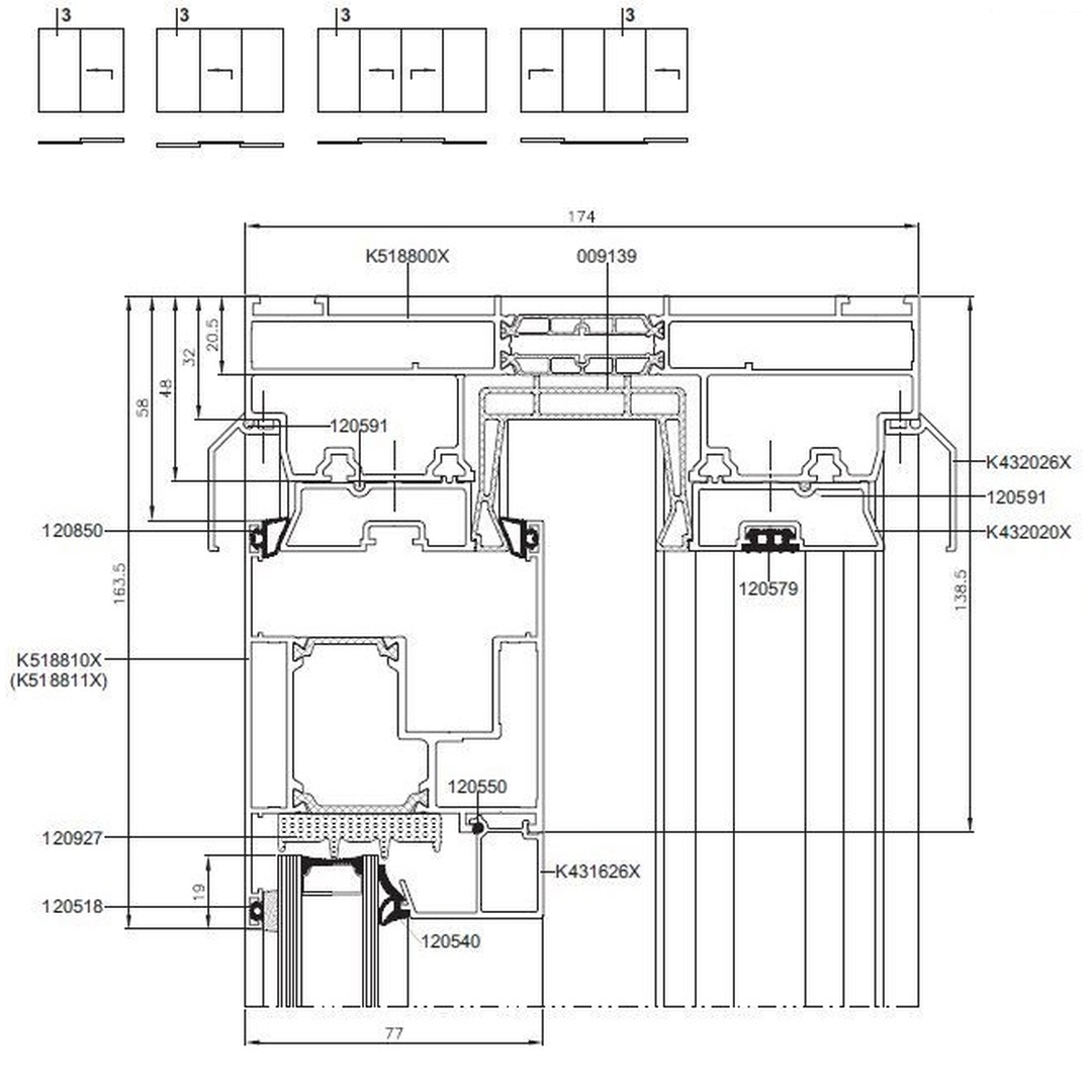
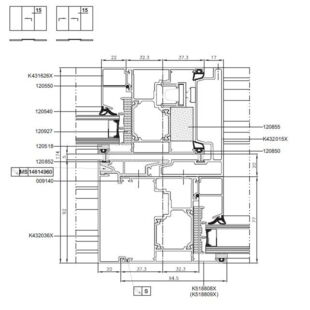
Aluprof MB-77 HS Tür Rahmen mit Fest Flügel Detailzeichnung

MB-77 Tür Rahmen mit festem Flügel

Aluprof MB-77 HS Tür Rahmen mit Fest Flügel oben Detail

MB-77 Tür Rahmen mit festem Flügel oben

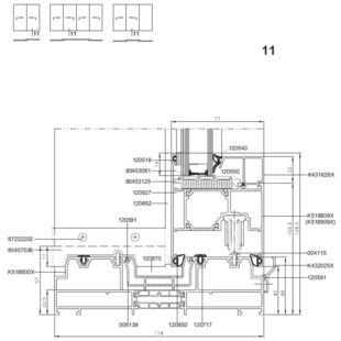
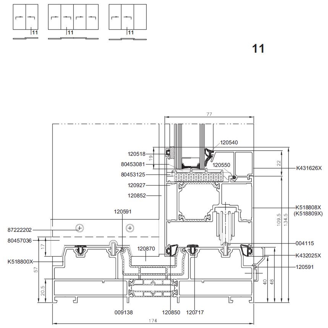
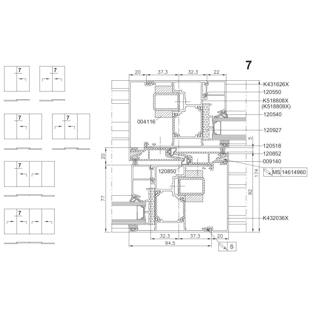
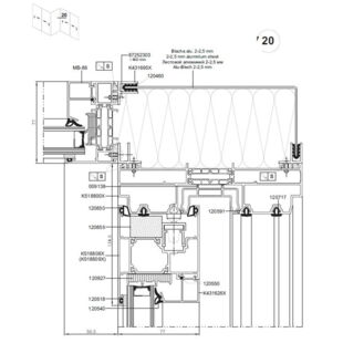
Hebeschiebetür Schwelle Aluprof MB-77 HS

Aluprof MB-77 HS Tür Schwelle mit Fest Flügel Detailzeichnung

MB-77 Tür Schwelle mit festem Flügel

Aluprof MB-77 HS Tür Schwelle mit Schiebeflügel dicher Lauf Detail

MB-77 Tür Schwelle und Schiebeflügel

Aluprof MB-77 HS Tür Schwelle mit zwei Schiebeflügeln

MB-77 HS Tür Schwelle und zwei Schiebeflügel

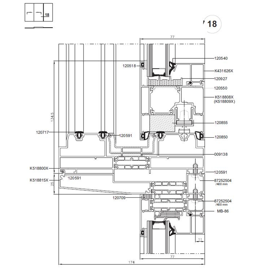
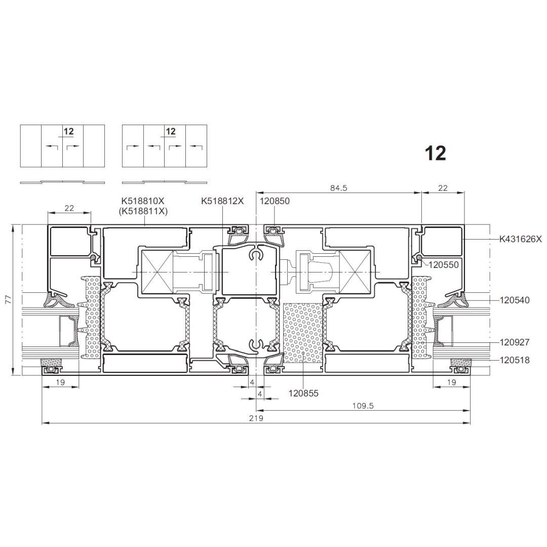
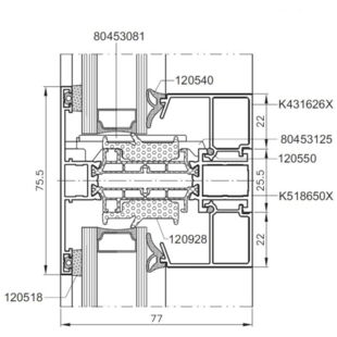
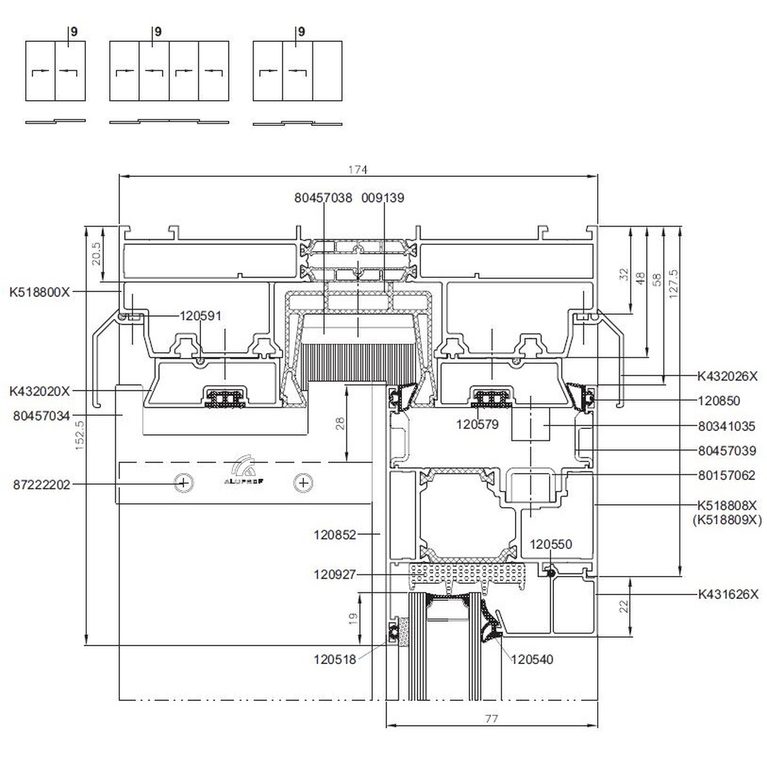
Hebeschiebetür Flügelprofil Aluprof MB-77

Aluprof MB-77 HS Tür Schiebeflügel

MB-77 Tür Schiebeflügel

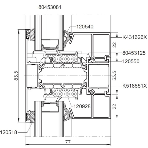
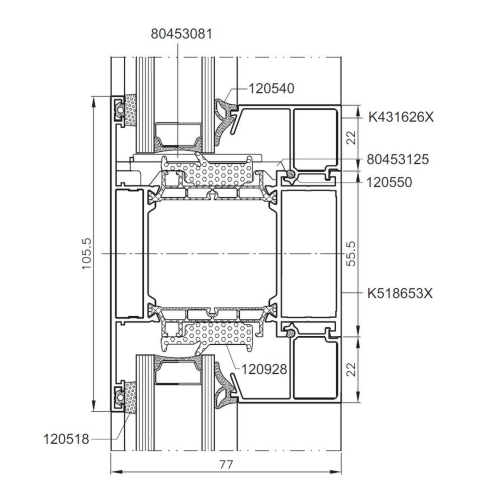
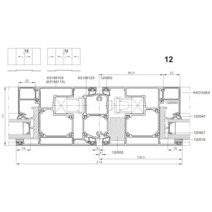
Aluprof MB-77 HS Tür 2flg Treffpunkt der Schiebeflügel Detail

MB-77 Tür 2flg Schiebeflügel Treffpunkt

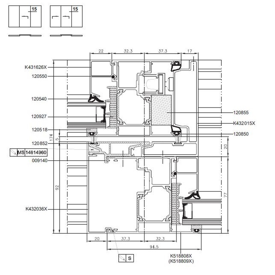
Aluprof MB-77 HS Tür 1flg Schiebeflügel und Fest Flügel Detail

MB-77 Tür 1flg Schiebeflügel und fester Flügel

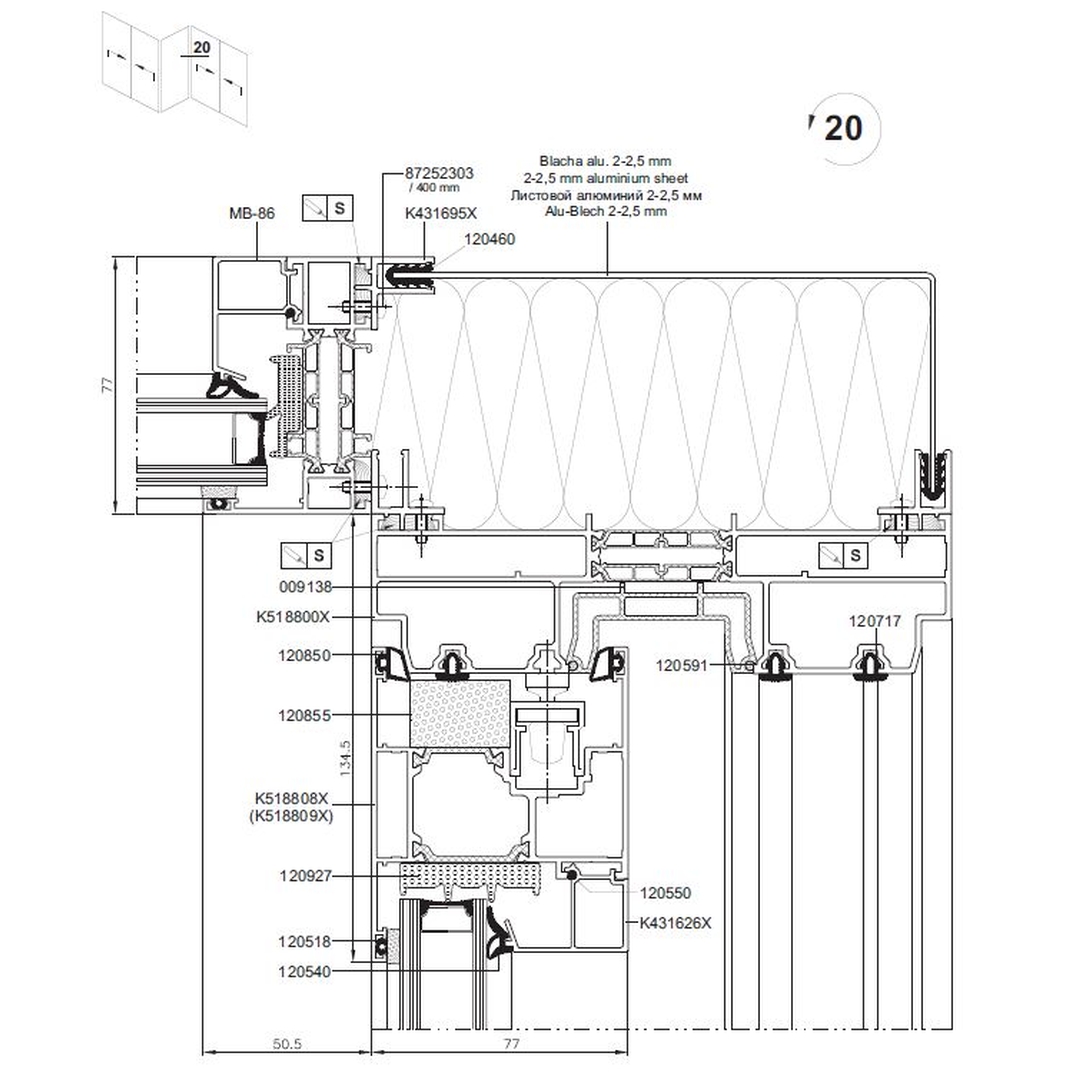
Aluminium Hebeschiebetür Aluprof MB-77 Kopplungen

Aluprof MB-77 HS Tür Kopplung mit Fenster Detailansicht

MB-77 HS Tür Kopplung mit Fenster

Aluplast MB-77 HS Tür Eckverbinder 90° mit Fenster Detail

MB-77 HS Tür Eckkopplung 90° mit Fenster

Aluminium Hebeschiebetür MB-77 Sprossenarten

Innenliegende SZR Sprossen / Helima Sprossen

Drutex Iglo SZR Sprosse 8mm

Innenliegende Sprosse 8mm

Drutex Iglo SZR Sprosse 18mm

Innenliegende Sprosse 18mm

Drutex Iglo SZR Sprosse 26mm

Innenliegende Sprosse 26mm

Drutex Iglo SZR Sprosse 45mm

Innenliegende Sprosse 45mm

Glasteilende Sprossen - Kämpfer

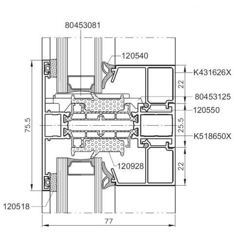
Aluprof MB-77 Kämpfersprosse 75,5 mm Detailzeichnung

MB-77 Glasteilende Sprosse/Kämpfer 75,5 mm

Aluprof MB-77 Kämpfersprosse 83,5 mm Detailzeichnung

MB-77 Glasteilende Sprosse/Kämpfer 83,5 mm

Aluprof MB-77 Kämpfersprosse 94,5 mm Detailzeichnung

MB-77 Glasteilende Sprosse/Kämpfer 94,5 mm

Aluprof MB-77 Kämpfersprosse 105,5 mm Detailzeichnung

MB-77 Glasteilende Sprosse/Kämpfer 105,5 mm

Weiter zur Produktseite Aluminium Hebeschiebetür MB-77 HST

Kostenlose Lieferung

Ab einer Bestellung von 10 Fenstern und Türen deutschlandweit!

Jetzt Hebe-Schiebetüren online konfigurieren

Das könnte Sie auch interessieren:

Aluminiumfenster MB-70

Detailzeichnungen Aluminiumfenster MB-70

Aluminiumfenster MB-70 besitzt den gleichen Aufbau nur ohne die Isolierschichten

Aluminiumfenster MB-86 SI

Detailzeichnungen Aluminiumfenster MB-86 SI

Aluminiumfenster MB-86 SI verfügen über eine sehr gute Wärmedämmung