Hebeschiebetüren Detailzeichnungen

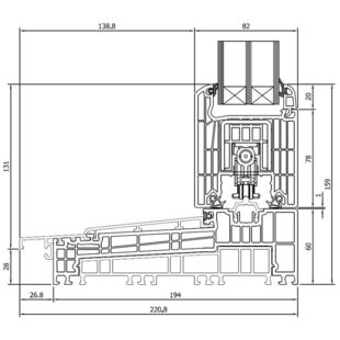
Eine Renovierung oder ein Neubau erfordert eine gute Planung im Voraus, sodass alles millimetergenau passt und keine unnötigen Probleme entstehen. Dafür sind Detailzeichnungen und Querschnitte, welche genaue Information über den Aufbau und die Abmessungen eines Bauelementes geben, hilfreich. Für die bestmögliche Vorbereitung haben wir Ihnen die Detailzeichnungen für die Drutex- und Aluprof-Profilsysteme der Hebeschiebetüren zur Verfügung gestellt. Neben den CAD-Plänen für Hebeschiebetüren finden Sie auch Details zu verschiedenen Zusatzprodukten. Wenn Sie auf die jeweiligen Profile klicken, stehen Ihnen auch Einzelheiten über Zusätze wie Kopplungen oder Aufsatzrollladen bereit.

Hebeschiebetüren Deteilzeichnungen und Querschnitte

Kunststoff Hebeschiebetür-Systeme

Aluminium Hebeschiebetür-Systeme

Detailzeichnungen und Skizzen zum optimalen Planen des Bauvorhabens

Hebeschiebetür-Konfigurator - Typ-Auswahl

Eine gründliche Vorbereitung beugt Probleme und Zeitverluste beim Bauen oder Umbauen vor. Da häufig etwas schiefgeht und man dann spontan planen und improvisieren muss, ist eine gute Planung wichtig. So können Fehler verhindert werden und die Bauarbeiten können so stressfrei wie möglich durchgeführt werden.

Die Hebeschiebetüren von Fensterblick sind maßgeschneidert und an Ihren Wünschen und Bedürfnissen angepasst. Daher ist es besonders ärgerlich, wenn etwas nicht passt. Zudem ist es schwierig im Nachhinein Änderungen vorzunehmen. Mit dem Profilschnitten können Sie schon während des Planens eine genaue Vorstellung bekommen und eventuelle Probleme vorbeugen.

Die vielen Details der Profil- und Zusatz-Detailzeichnungen können Hilfe im Voraus leisten und auf wichtige Kleinigkeiten aufmerksam machen. Qualitätsunterschiede oder bestimmte Mechanismen sind oftmals nur in den Detailzeichnungen sichtbar. In unserem praktischen HS-Konfigurator können Sie dann die Maße und die verschiedenen Ausstattungen, wie beispielsweise die Verglasung, den Typ und die Farbe individuell aussuchen. Gerne beratet Sie auch unser Fachpersonal von fensterblick.de zu Ihrem Anliegen. Kontaktieren Sie uns einfach per E-Mail oder rufen Sie uns an. Ihre Detail-Fragen sind wichtig, um Ihr Projekt erfolgreich abzuschließen!

Kostenlose Lieferung

Ab einer Bestellung von 10 Fenstern und Türen deutschlandweit!

Jetzt Hebe-Schiebetüren online konfigurieren