Detailzeichnungen Kunststoff Hebeschiebetür Iglo HS

Hebeschiebetürprofil Iglo HS Querschnitte

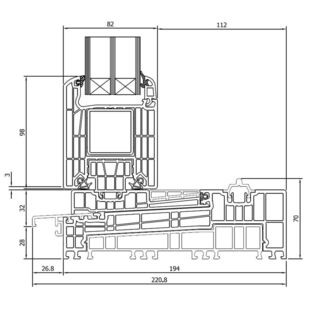
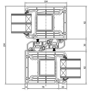
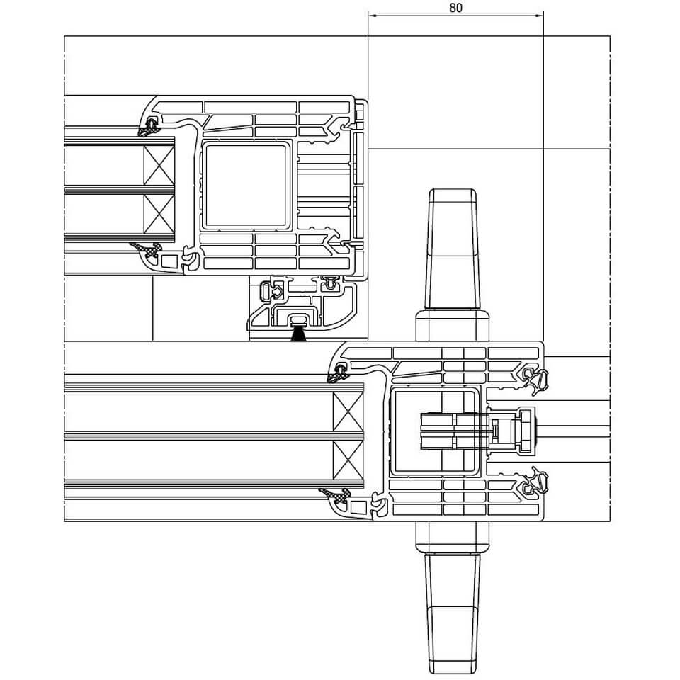
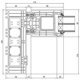
Hebeschiebetür Rahmenprofil Iglo HS

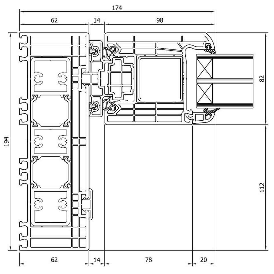
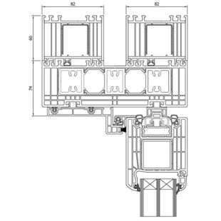
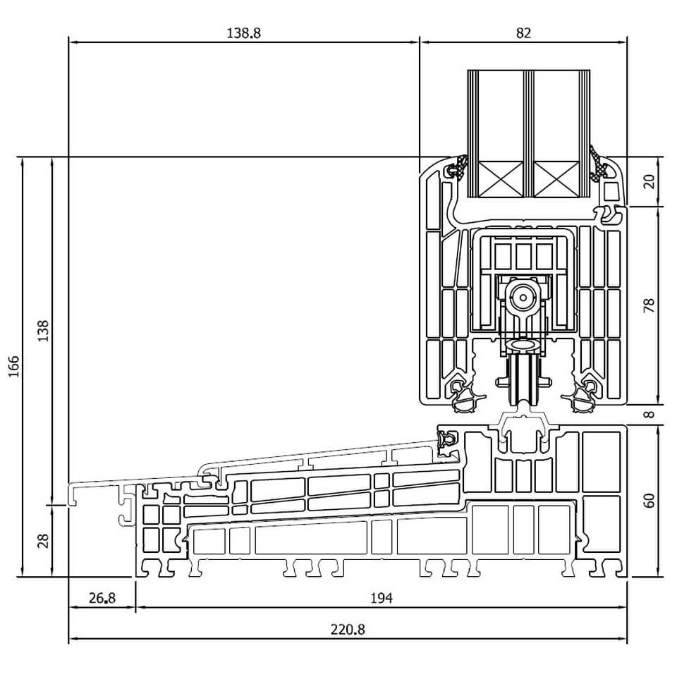
Drutex Iglo HS Tür Rahmen mit Schiebeflügel Detailzeichnung

Iglo HS Tür Rahmen mit Schiebeflügel

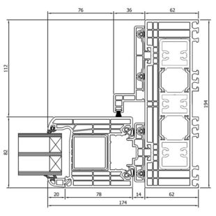
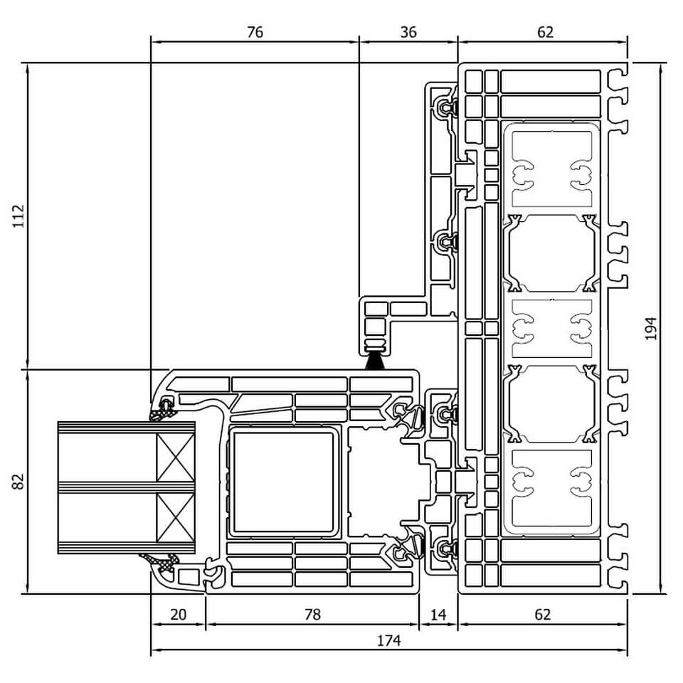
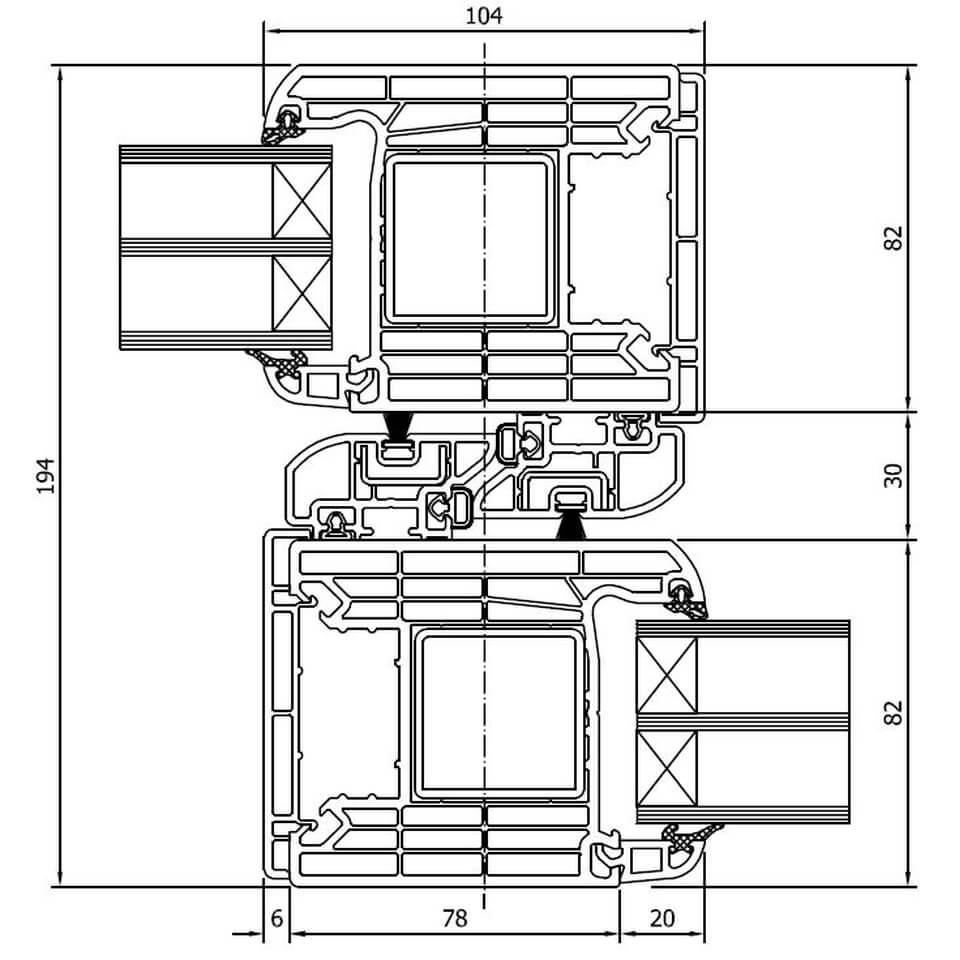
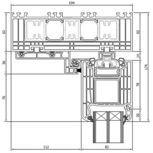
Iglo HS Tür Rahmen mit Schiebeflügel oben dichter Lauf

Iglo HS Tür Rahmen mit Schiebeflügel oben mit dichtem Lauf

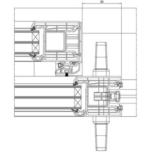
Iglo HS Tür Rahmen mit Schiebeflügel oben weiter Lauf

Iglo HS Tür Rahmen mit Schiebeflügel oben mit weitem Lauf

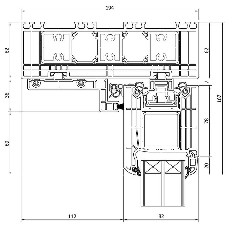
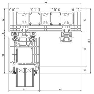
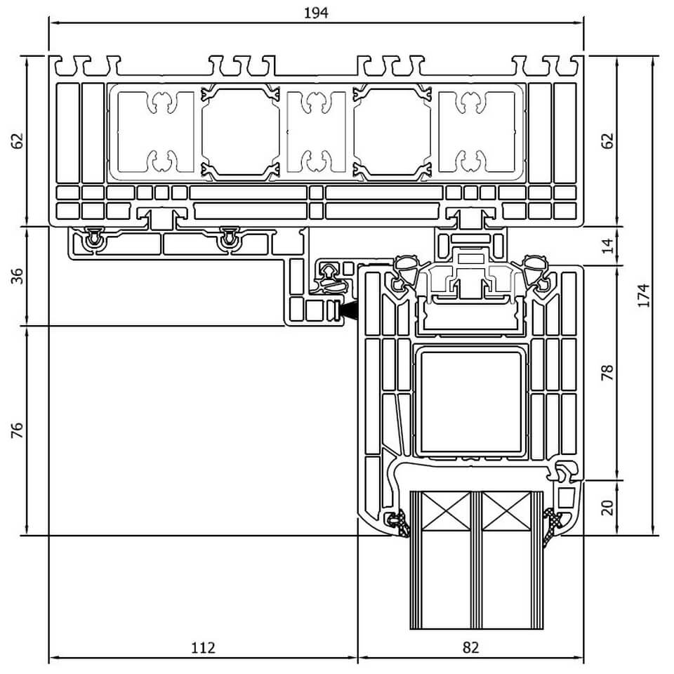
Drutex Iglo HS Tür Rahmen mit Fest Flügel Detailzeichnung

Iglo HS Tür Rahmen mit festem Flügel

Drutex Iglo HS Tür Rahmen mit Fest Flügel oben Detail

Iglo HS Tür Rahmen mit festem Flügel oben

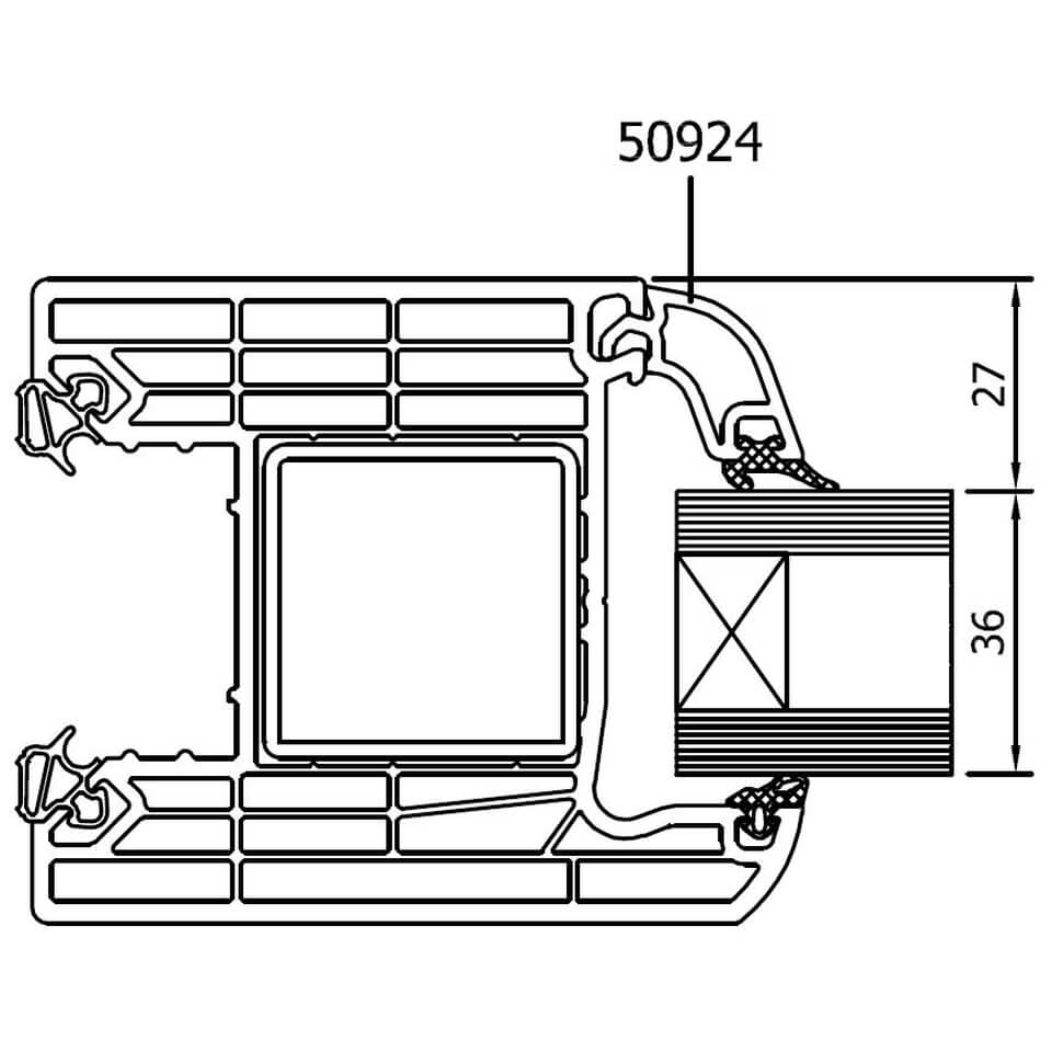
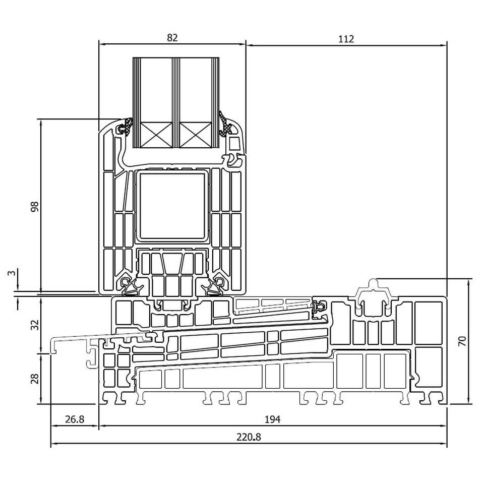
Drutex Iglo HS Tür Oberlicht Rahmenprofil Detailzeichnung

Iglo HS Tür Rahmenprofil für Oberlicht

Hebeschiebetür Schwelle Iglo HS

Drutex Iglo HS Tür Schwelle mit Fest Flügel Detailzeichnung

Iglo HS Tür Schwelle mit festem Flügel

Drutex Iglo HS Tür Schwelle mit Schiebeflügel dicher Lauf Detail

Iglo HS Tür Schwelle und Schiebeflügel mit dichtem Lauf

Drutex Iglo HS Tür Schwelle mit Schiebeflügel weiter Lauf Detail

Iglo HS Tür Schwelle und Schiebeflügel mit weitem Lauf

Hebeschiebetür Flügelprofil Iglo HS

Drutex Iglo HS Tür 1flg Schiebeflügel und Fest Flügel Detail

Iglo HS Tür 1flg Schiebeflügel und fester Flügel

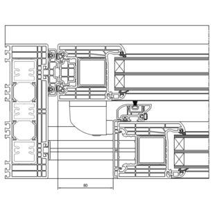
Drutex Iglo HS Tür 2flg Treffpunkt der Schiebeflügel Detail

Iglo HS Tür 2flg Schiebeflügel Treffpunkt

Drutex Iglo HS Tür Schiebeflügel mit Stopper Detail

Iglo HS Tür Stopper Schiebeflügel

Drutex Iglo HS Tür Schiebeflügel mit Stopper und Griff Detail

Iglo HS Tür Stopper Schiebeflügel und Griff

Kunststoff Hebeschiebetür Iglo HS Einzelprofile

Drutex Iglo HS Flügelprofil Detailzeichnung

Iglo HS Flügelprofil

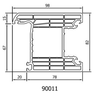
Drutex Iglo HS Rahmenprofil Oben Detailzeichnung

Iglo HS Rahmenprofil Oben

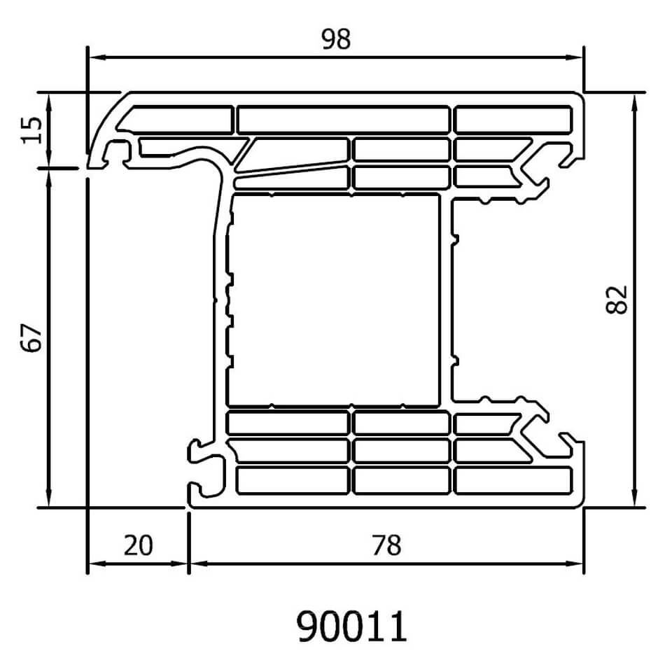
Drutex Iglo HS Schwelle Rahmenprofil Unten Detailzeichnung

Iglo HS Schwelle

Kunststoff Hebeschiebetür Iglo HS Rahmenverbreiterung

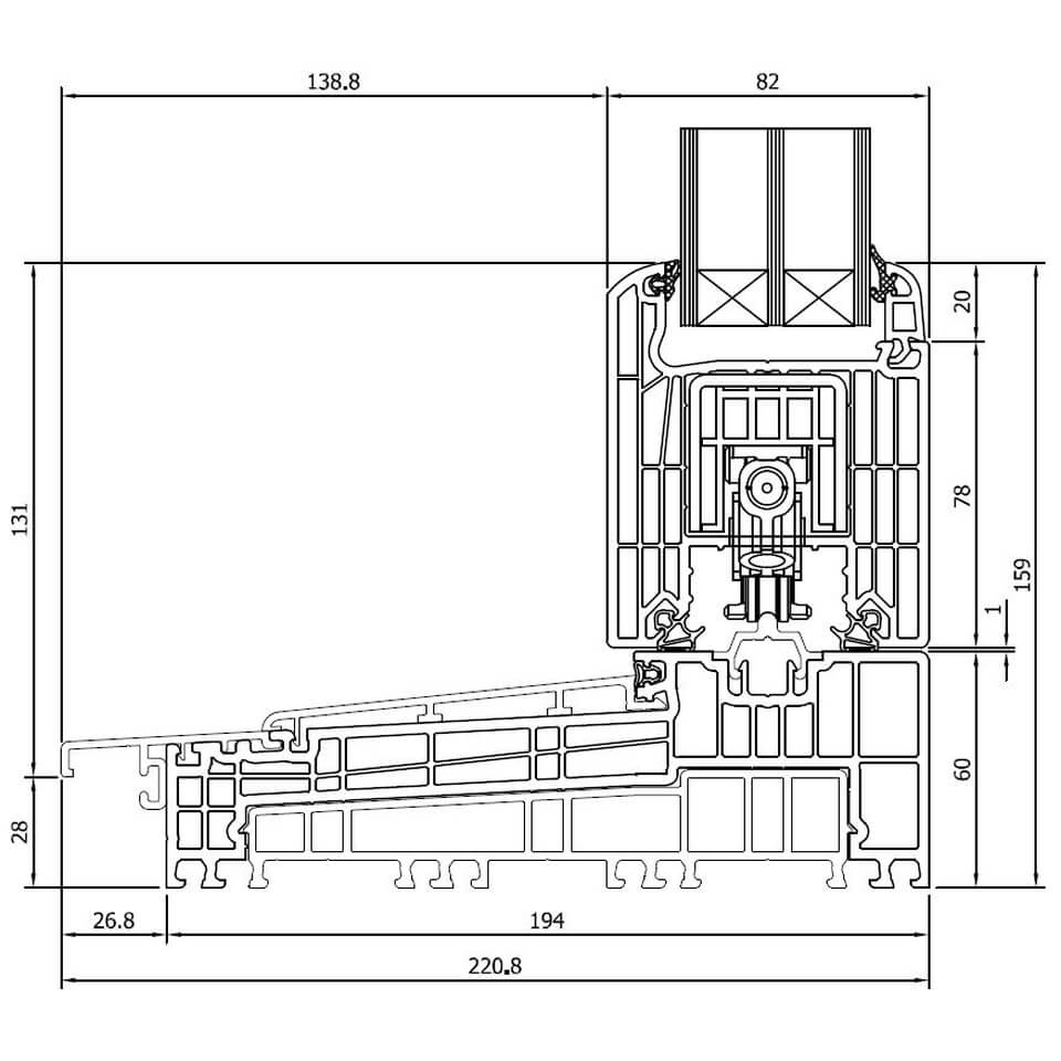
Drutex Iglo HS Tür 60mm Rahmenverbreiterung oben Detail

Iglo HS Tür Rahmenverbreiterung 60mm oben

Drutex Iglo HS Tür 60mm Rahmenverbreiterung Schwelle Detail

Iglo HS Tür Rahmenverbreiterung 60mm Schwelle

Kunststoff Hebeschiebetür Iglo HS Kopplungen

Drutex Iglo HS Tür Kopplung Dreh-Kipp-Fenster Detailansicht

Iglo HS Tür Kopplung mit Dreh-Kipp Fenster

Drutex Iglo HS Tür Eckverbinder 90° Dreh-Kipp-Fenster Detail

Iglo HS Tür Eckkopplung 90° mit Dreh-Kipp Fenster

Drutex Iglo HS Tür Eckverbinder 90° mit HS-Tür Detail

Iglo HS Tür Eckkopplung 90° mit HS-Tür

Kunststoff Hebeschiebetür Iglo HS Sprossenarten

Innenliegende SZR Sprossen / Helima Sprossen

Drutex Iglo SZR Sprosse 8mm

Innenliegende Sprosse 8mm

Drutex Iglo SZR Sprosse 18mm

Innenliegende Sprosse 18mm

Drutex Iglo SZR Sprosse 26mm

Innenliegende Sprosse 26mm

Drutex Iglo SZR Sprosse 45mm

Innenliegende Sprosse 45mm

Glasteilende Sprossen - Kämpfer

Drutex Iglo HS Kämpfersprosse Detailzeichnung

Iglo HS Glasteilende Sprosse/Kämpfer

Kunststoff Hebeschiebetür Iglo HS Verglasungsbeispiele

Drutex Iglo HS Tür 36mm 2-fach Verglasung Detailzeichnung

Iglo HS Tür 2-fach Verglasung 36mm

Drutex Iglo HS Tür 40mm 3-fach Verglasung Detailzeichnung

Iglo HS Tür 3-fach Verglasung 40mm

Drutex Iglo HS Tür 44mm 3-fach Verglasung Detailzeichnung

Iglo HS Tür 3-fach Verglasung 44mm

Drutex Iglo HS Tür 48mm 3-fach Verglasung Detailzeichnung

Iglo HS Tür 3-fach Verglasung 48mm

Drutex Iglo HS Tür 52mm 3-fach Verglasung Detailzeichnung

Iglo HS Tür 3-fach Verglasung 52mm

Aufsatzrollladen Führungsschienen mit Hebeschiebetür Iglo HS

Führungsschiene Beidseitig am IGLO HS Profil

Beidseitige Führungsschiene am Iglo HS Profil

Führungsschiene einseitig am IGLO HS Profil Tür innen

Einseitige Führungsschiene am Iglo HS Profil Tür innen

Führungsschiene einseitig am IGLO HS Profil Tür außen

Einseitige Führungsschiene am Iglo HS Profil Tür außen

Technische Daten - Kunststoff Hebeschiebetür Drutex Iglo HS
Weiter zur Produktseite Kunststoff Hebeschiebetür Iglo HS

Kostenlose Lieferung

Ab einer Bestellung von 10 Fenstern und Türen deutschlandweit!

Jetzt Hebe-Schiebetüren online konfigurieren

Das könnte Sie auch interessieren:

Kunststofffenster Iglo 5

Detailzeichnungen Kunststofffenster Iglo 5

Kunststofffenster Iglo 5 u.a. mit Profilen für Balkontür und PSK-Tür

Kunststofffenster Iglo Energy

Detailzeichnungen Kunststofffenster Iglo Energy

Kunststofffenster Iglo Energy u.a. mit Profilen für Balkontür und PSK-Tür