Detailzeichnungen Kunststofffenster Iglo Energy

Kunststofffensterprofil Iglo Energy Querschnitte

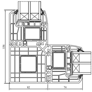
Drutex Iglo Energy Festverglasung 74mm Detailzeichnung

Iglo Energy Festverglasung 74mm

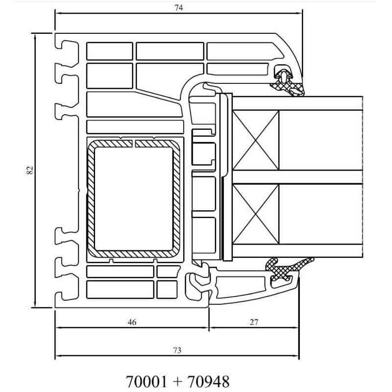
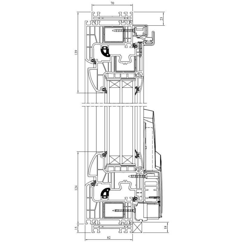
Drutex Iglo Energy Rahmen mit Flügel 70001 70011 70948 Querschnitt

Iglo Energy Rahmen mit Flügel

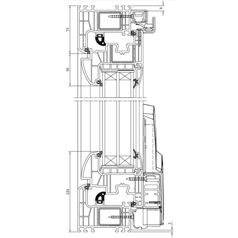
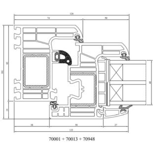
Drutex Iglo Energy Classic Rahmen mit Flügel 70001 70013 70948 Querschnitt

Iglo Energy Classic Rahmen mit Flügel

Drutex Iglo Energy Glasfaser Armierung aus Fiberglas

Iglo Energy Fiberglas Armierung

Drutex Iglo Energy Pfosten mit Flügel 70948 70011 70021

Iglo Energy Pfosten mit Flügel

Drutex Iglo Energy Classic Pfosten mit Flügel 70948 70013 70021

Iglo Energy Classic Pfosten mit Flügel

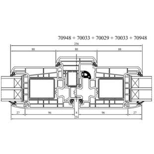
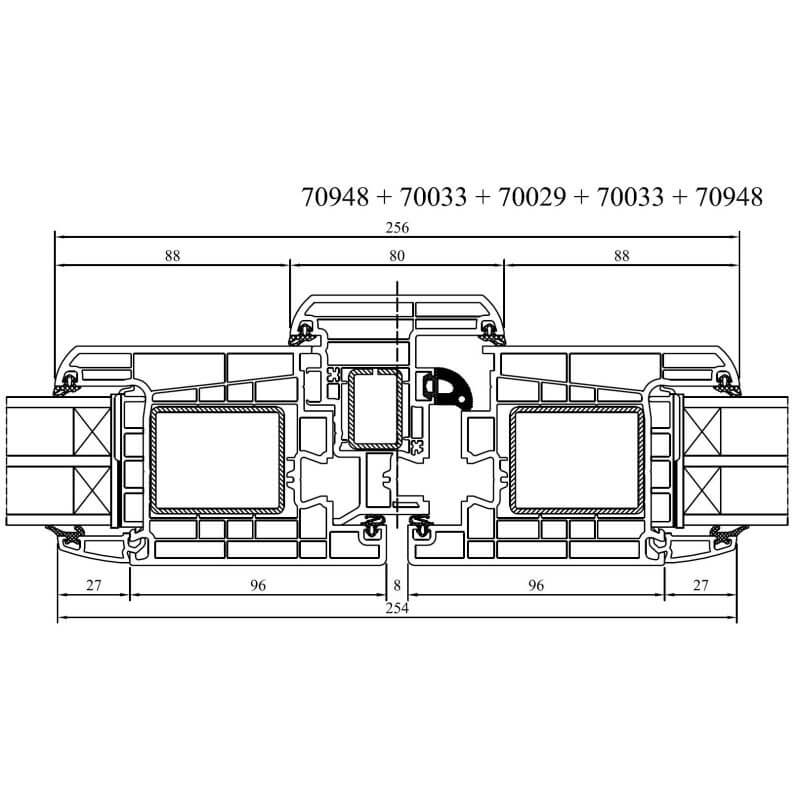
Drutex Iglo Energy Stulpfenster 70948 70011 70029

Iglo Energy Stulpfenster

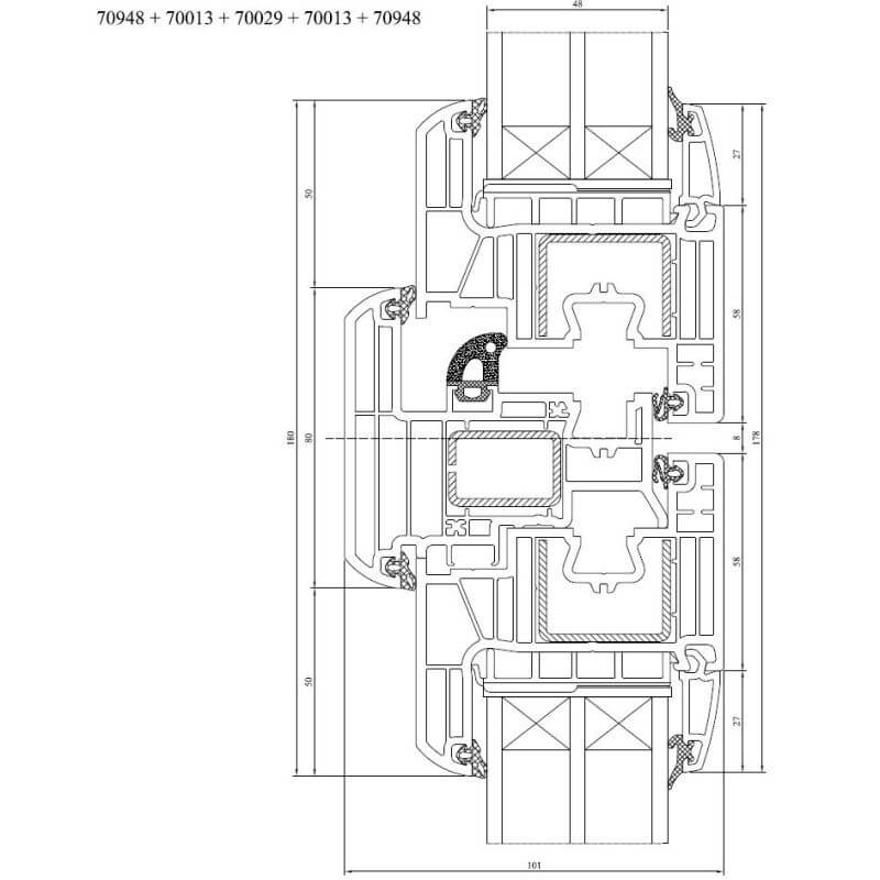
Drutex Iglo Energy Stulpfenster 70948 70013 70029

Iglo Energy Classic Stulpfenster

Drutex Iglo Energy Flügel mit Festverglasung 70948 70021 70011

Iglo Energy Flügel mit Festverglasung

Drutex Iglo Energy Classic Renovationsrahmen 47mm mit Flügel 70004 70011 70948

Iglo Energy Classic Renovationsrahmen 47mm mit Flügel

Drutex Iglo Energy Renovationsrahmen 47mm mit Flügel 70004 70011 70948

Iglo Energy Renovationsrahmen 47mm mit Flügel

Drutex Iglo Energy Festverglasung Renovationsrahmen 47mm 70004 70948

Iglo Energy Renovationsrahmen 47mm Festelement

Kunststofffenster Bankanschlussprofile

Drutex Iglo Energy Fenster mit Bankanschluss 30mm Dichtung 54123

Iglo Energy Bankanschluss mit Dichtung

Drutex Iglo Energy Fenster mit Bankanschluss 30mm mit Dichtung und Zusatz 54113

Iglo Energy Bankanschluss mit Dichtung und Zusatz

Drutex Iglo Energy Fenster mit Bankanschluss 50mm 50114

Iglo Energy Bankanschluss 50mm

Kunststoff Steinbankanschlussprofile

Drutex Steinbankanschluss aus Kunststoff 25mm 120206

Steinbankanschluss 25mm

Drutex Steinbankanschluss aus Kunststoff 30mm 120208

Steinbankanschluss 30mm

Drutex Steinbankanschluss aus Kunststoff 40mm 120209

Steinbankanschluss 40mm

Drutex Steinbankanschluss aus Kunststoff 50mm 120210

Steinbankanschluss 50mm

Kunststoff Anschlussprofile

Drutex Anschlussprofil 15mm 120236

Anschlussprofil 15mm

Drutex Anschlussprofil 20mm L01350200

Anschlussprofil 20mm

Drutex Anschlussprofil 30mm 50117

Anschlussprofil 30mm

Drutex Anschlussprofil 50mm L01100500

Anschlussprofil 50mm

Drutex Iglo Anschlussprofil NL 50115

Niederländisches Anschlussprofil

Kunststofffenster Rahmenverbreiterung

Drutex Iglo Energy Fenster mit Rahmenverbreiterung 15mm Stahlverstärkung 70103

Iglo Energy Rahmenverbreiterung 15mm

Drutex Iglo Energy Fenster mit Rahmenverbreiterung 35mm Stahlverstärkung 70100

Iglo Energy Rahmenverbreiterung 35mm

Drutex Iglo Energy Fenster mit Rahmenverbreiterung 60mm Stahlverstärkung 70101

Iglo Energy Rahmenverbreiterung 60mm

Kunststofffenster Kopplungen

Drutex Energy Fenster mit Kopplung 50124

Iglo Energy Kopplung - 50124

Drutex Iglo Energy Fenster mit Kopplung 50124 mit Stahl

Iglo Energy Kopplung mit Stahl - 50124

Drutex Iglo Energy Fenster mit Kopplung 50124 mit Stahl + Verstärkung außen

Iglo Energy Kopplung mit Stahl+Verstärkung außen - 50124

Drutex Iglo Energy Fenster mit H Kopplung einteilige Koppelleiste 50110

Iglo Energy H-Kopplung

Drutex Iglo Energy Fenster mit statischer Kopplung 50111

Iglo Energy statische Kopplung

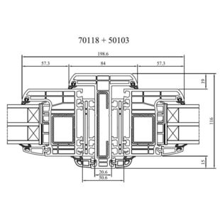
Drutex Iglo Energy Fenster mit statischer Kopplung und Rahmenverbreiterung 70118 50103

Iglo Energy statische Kopplung

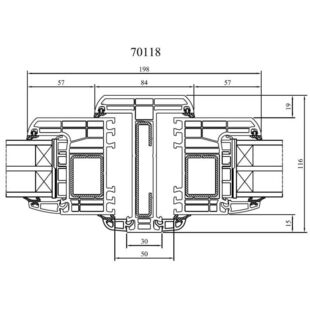
Drutex Iglo Energy Fenster mit Kopplung Dehnungsprofil 70118

Iglo Energy Kopplungsdehnungsprofil

Drutex Iglo Energy Eckverbinder 90° Eckkopplung 70122

Iglo Energy Eckkopplung 90°

Drutex Iglo Energy Eckverbinder 90° Eckkopplung 70122

Iglo Energy Eckkopplung 90°

Drutex Iglo Energy Eckverbinder Variabel 90° Eckkopplung 70121 50120 70121

Iglo Energy Eckkopplung Variabel 90°

Drutex Iglo Energy Eckverbinder Variabel 135° Eckkopplung 70121 50120 70121

Iglo Energy Eckkopplung Variabel 135°

Drutex Iglo Energy Eckverbinder Variabel 180° Eckkopplung 70121 50120 70121

Iglo Energy Eckkopplung Variabel 180°

Kunststofffenster Sprossenarten

Innenliegende SZR Sprossen / Helima Sprossen

Drutex Iglo SZR Sprosse 8mm

Innenliegende Sprosse 8mm

Drutex Iglo SZR Sprosse 18mm

Innenliegende Sprosse 18mm

Drutex Iglo SZR Sprosse 26mm

Innenliegende Sprosse 26mm

Drutex Iglo SZR Sprosse 45mm

Innenliegende Sprosse 45mm

Aufgesetzte / Aufgeklebte Sprossen

Drutex Iglo aufliegende Sprossen 27mm

Aufgesetzte Sprossen 27mm

Drutex Iglo aufliegende Sprossen 45mm

Aufgesetzte Sprossen 45mm

Drutex Iglo aufliegende Sprosse 65mm

Aufgesetzte Sprossen 65mm

Glasteilende Sprossen - Kämpfer

Drutex Iglo Energy Kämpfer 100mm 70948 70021

Iglo Energy Kämpfer 100mm

Verglasungsbeispiele - Glasleisten Iglo Energy

Drutex Iglo Energy 2-fach Verglasung 24mm

Iglo Energy Verglasungsdicke 24mm

Drutex Iglo Energy 3-fach Verglasung 36mm

Iglo Energy Verglasungsdicke 36mm

Drutex Iglo Energy 3-fach Verglasung 44mm

Iglo Energy Verglasungsdicke 44mm

Drutex Iglo Energy 3-fach Verglasung 48mm

Iglo Energy Verglasungsdicke 48mm

Kunststoff Abdeckleisten

Drutex Deckleisten mit Hohlkammerprofil Auswahl

Hohlkammerprofil Deckleiste Auswahl

Drutex Flachleisten mit Dichtlippe Auswahl

Flachleiste mit Dichtlippe Auswahl

Drutex Flachleisten aus Kunststoff Auswahl

Flachleiste aus Kunststoff Auswahl

Drutex Winkelprofile aus Kunststoff Auswahl

Winkelprofil aus Kunststoff Auswahl

Kunststoff Balkontür Iglo Energy Querschnitte

Drutex Iglo Energy Balkontür mit Blendrahmen

Iglo Energy Balkontür mit Blendrahmen

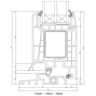
Drutex Iglo Energy Balkontür mit flacher Schwelle 20mm 710281 86349 70011 70948

Iglo Energy Balkontür mit flacher Schwelle

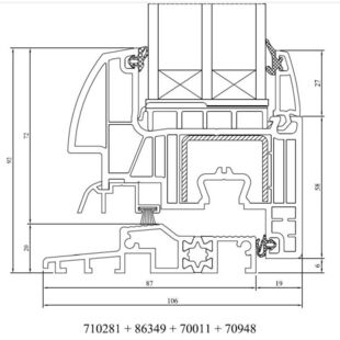
Drutex Iglo Energy Trittschutz 86348

Iglo Energy Trittschutz

Drutex Iglo Energy Classic Balkontür mit Blendrahmen

Iglo Energy Classic Balkontür mit Blendrahmen

Drutex Iglo Energy Classic Balkontür mit flacher Schwelle 20mm 710281 86349 70013 70948

Iglo Energy Classic Balkontür mit flacher Schwelle

Kunststoff Iglo Energy PSK Parallel-Schiebe-Kipp-Tür

Drutex Iglo Energy Parallel-Schiebe-Kipp-Tür PSK-Tür Querschnitt

Iglo Energy Parallel-Schiebe-Kipp-Tür

Drutex Iglo Energy Parallel-Schiebe-Kipp-Tür PSK-Tür Rahmenverbreiterung + 35mm

Iglo Energy Parallel-Schiebe-Kipp-Tür 35mm Rahmenverbreiterung

Drutex Iglo Energy Parallel-Schiebe-Kipp-Tür PSK-Tür Rahmenverbreiterung + 15mm

Iglo Energy Parallel-Schiebe-Kipp-Tür 15mm Rahmenverbreiterung

Aufsatzrollladen mit Drutex Iglo Energy Parallel-Schiebe-Kipp-Tür PSK-Tür Detail

Iglo Energy PSK-Tür mit Aufsatzrollladen

Kunststoff Haustür Iglo Energy

Drutex Iglo Energy Haustürschwelle 20mm nach innen 710281 70033 70948

Iglo Energy Haustürschwelle nach Innen

Drutex Iglo Energy Haustür Rahmen nach innen öffnend 70001 70033 70948

Iglo Energy Haustür Rahmen nach innen

Drutex Iglo Energy Haustür mit Stulp innen öffnend 70948 70033 70029

Iglo Energy Haustür mit Stulp nach innen

Drutex Iglo Energy Haustürschwelle 20mm nach außen öffnend 710281 70034 70948

Iglo Energy Haustürschwelle nach außen

Drutex Iglo Energy Haustür Rahmen nach außen öffnend 70001 70034 70948

Iglo Energy Haustür Rahmen nach außen

Drutex Iglo Energy Haustür mit Stulp nach außen öffnend 70948 70034 70029

Iglo Energy Haustür mit Stulp nach außen

Kunststofffenster mit Aufsatzrollladen

Drutex Aufsatzrollladen 170mm seitliche Revision

Aufsatzrollladen 170mm Revision Seite

Drutex Aufsatzrollladen 170mm untere Revision

Aufsatzrollladen 170mm Revision Unten

Aufsatzrollladen 215mm mit Iglo Energy Fenster Revision von der Seite

Aufsatzrollladen 215mm Revision von der Seite

Aufsatzrollladen 215mm mit Iglo Energy Fenster Revision von Unten

Aufsatzrollladen 215mm Revision von Unten

Aufsatzrollladen 215mm mit Iglo Energy Fenster und Insektenschutz Außen

Aufsatzrollladen 215mm mit Insektenschutzgitter Außen

Aufsatzrollladen 215mm mit Iglo Energy Fenster und Insektenschutz Außen

Aufsatzrollladen 215mm mit Insektenschutzgitter Innen

Einseitige Führungsschiene am Iglo Energy Profil

Einseitige Führungsschiene für Aufsatzrollladen am Iglo Energy Profil

Einseitige Führungsschiene mit Insektenschutz am Iglo Energy Profil

Einseitige Führungsschiene mit Insektenschutz am Iglo Energy Profil

Beidseitige Führungsschiene für Aufsatzrollladen am Iglo Energy Profil

Beidseitige Führungsschiene für Aufsatzrollladen am Iglo Energy Profil

Beidseitige Führungsschiene und Insektenschutz am Iglo Energy Profil

Beidseitige Führungsschiene mit Insektenschutz am Iglo Energy Profil

Kostenlose Lieferung

Ab einer Bestellung von 10 Fenstern deutschlandweit!

Jetzt Angebot für Kunststofffenster anfordern

Das könnte Sie auch interessieren:

Kunststofffenster Iglo 5

Detailzeichnungen Kunststofffenster Iglo 5

Kunststofffenster Iglo 5 besitzen eine Bautiefe (Rahmen) von 70mm.

Kunststofffenster Iglo Light

Detailzeichnungen Kunststofffenster Iglo Light

Kunststofffenster Iglo Light besitzen eine Bautiefe (Rahmen) von 70mm.