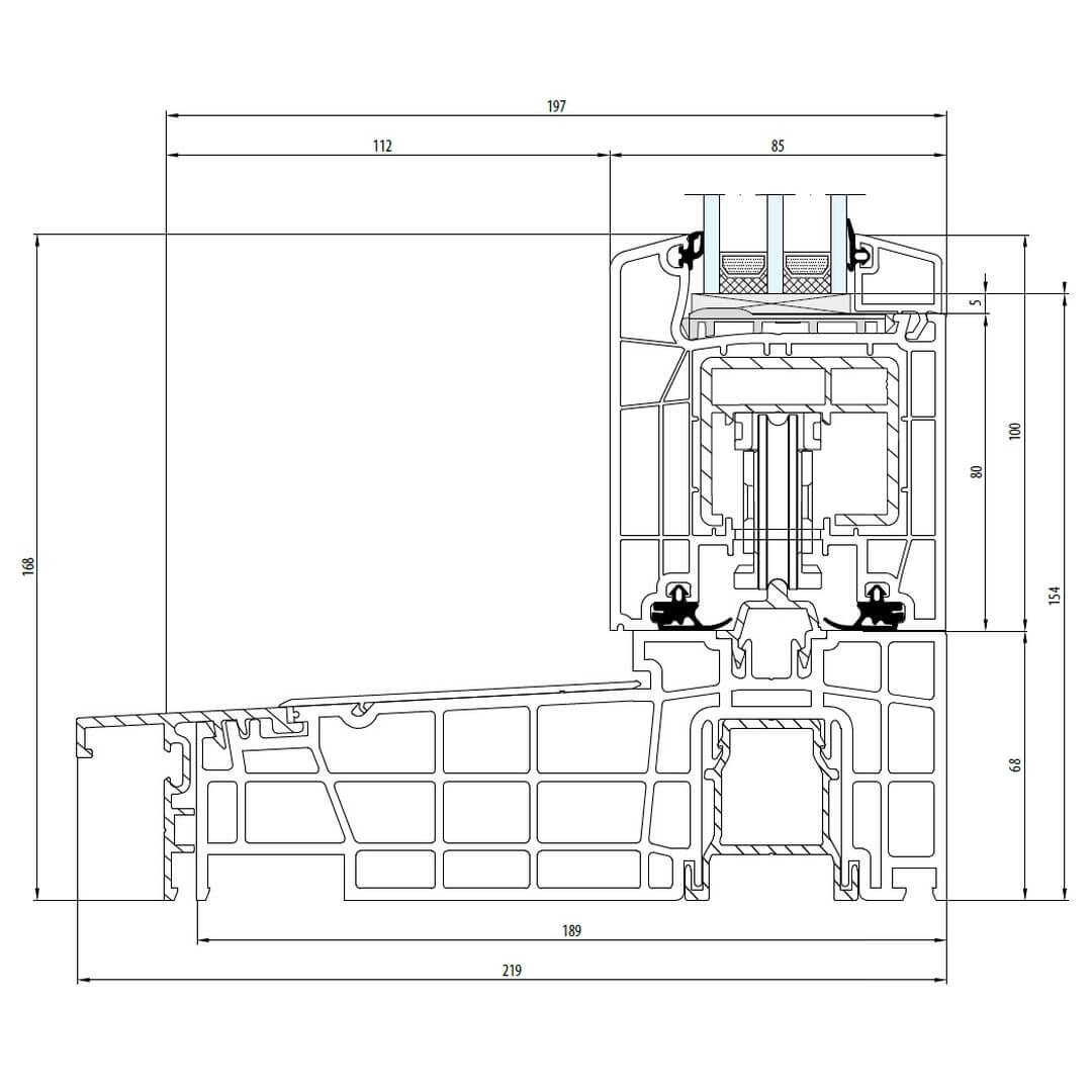
Detailzeichnungen aluplast HST 85

Hebeschiebetürprofil aluplast HST 85 Querschnitte

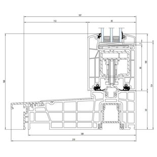
Aluplast HST 85 Schiebeflügel mit Schwelle Thermostep - Vertikal

Aluplast HST 85 Schiebeflügel mit Schwelle Thermostep - Vertikal

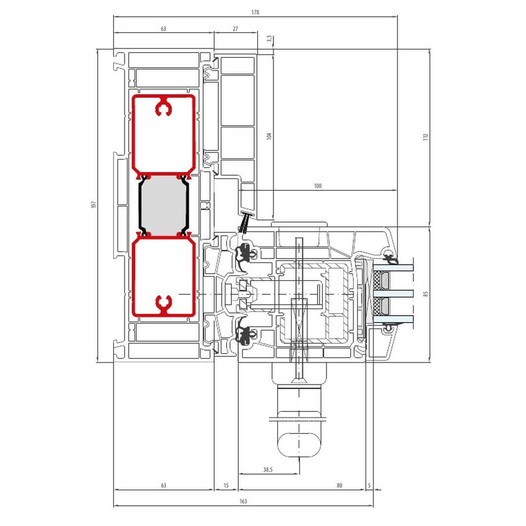
Aluplast HST 85 Flügel Fest - Vertikal

Aluplast HST 85 Flügel Fest - Vertikal

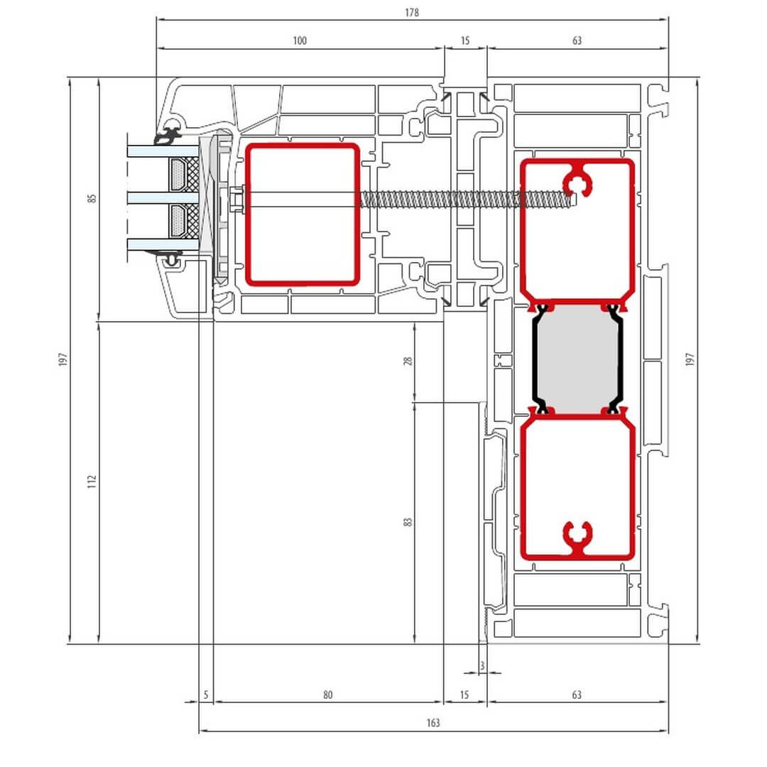
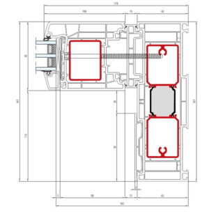
Aluplast HST 85 Flügel mit Schwelle Thermostep und Laufwagen - Vertikal

Aluplast HST 85 Flügel mit Schwelle Thermostep und Laufwagen - Vertikal

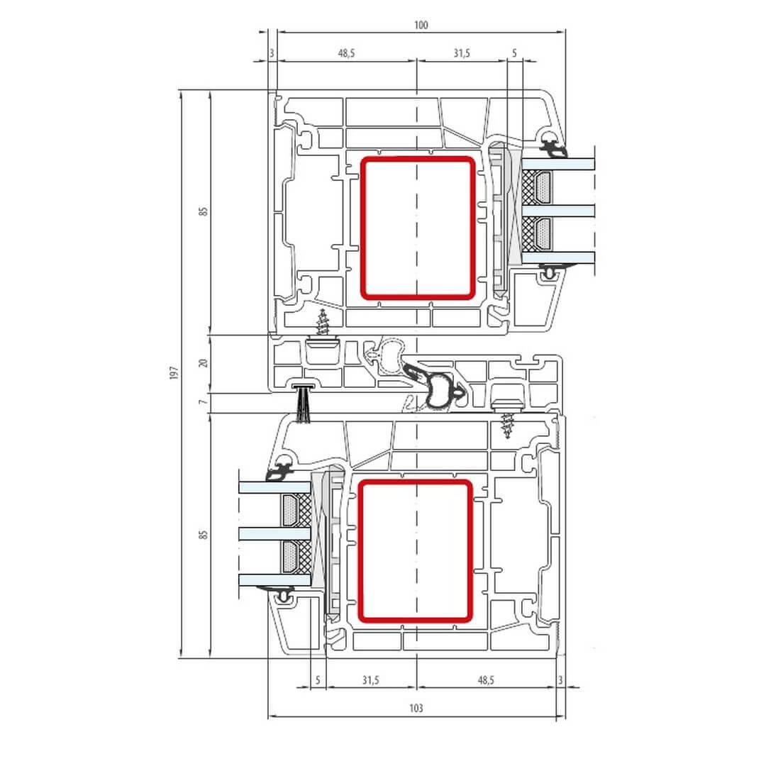
Aluplast HST 85 Schiebeflügel mit Griff - Horizontal

Aluplast HST 85 Schiebeflügel mit Griff - Horizontal

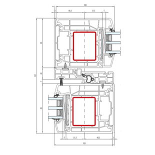
Aluplast HST 85 Flügel Treffpunkt - Horizontal

Aluplast HST 85 Flügel Treffpunkt - Horizontal

Aluplast HST 85 Flügel Fest - Horizontal

Aluplast HST 85 Flügel Fest - Horizontal

Kunststoff Hebeschiebetür aluplast HST 85 Schwellen

Aluplast HST 85 Schwelle Thermostep

Aluplast HST 85 Schwelle Thermostep

Aluplast HST 85 Schwelle Premium

Aluplast HST 85 Schwelle Premium

Aluplast HST 85 Schwelle Flatstep

Aluplast HST 85 Schwelle Flatstep

Zusatzprofile für aluplast HST 85 Querschnitte

Kunststoff Sprossenarten - aluplast HST 85

Innenliegende SZR Sprossen / Helima Sprossen

Drutex Iglo SZR Sprosse 8mm

Innenliegende Sprosse 8mm

Drutex Iglo SZR Sprosse 18mm

Innenliegende Sprosse 18mm

Drutex Iglo SZR Sprosse 26mm

Innenliegende Sprosse 26mm

Drutex Iglo SZR Sprosse 45mm

Innenliegende Sprosse 45mm

Aufgesetzte / Aufgeklebte Sprossen

Aluplast 160376 - aufgesetzte Sprossen - 26mm

160376 - aufgesetzte Sprossen - 26mm

Aluplast 160378 - aufgesetzte Sprossen - 46mm

160378 - aufgesetzte Sprossen - 46mm

Aluplast 160479 - aufgesetzte Sprossen - 66mm

160479 - aufgesetzte Sprossen - 66mm

Glasteilende Sprossen - Kämpfer

Aluplast IDEAL 7000 Pfosten 104mm - 170x44

aluplst HST 85 Kämpfer-Sprosse 104mm - 170x44

Kunststoff Rahmenverbreiterung - aluplast HST 85 (2x 70mm)

Aluplast 140227 - Rahmenverbreiterung - 2mm

140227 - Rahmenverbreiterung - 2mm

Aluplast 140209 - Rahmenverbreiterung - 15mm

140209 - Rahmenverbreiterung - 15mm

Aluplast 140205 - Rahmenverbreiterung - 35mm

140205 - Rahmenverbreiterung - 35mm

Aluplast 140207 - Rahmenverbreiterung - 60mm

140207 - Rahmenverbreiterung - 60mm

Aluplast 140208 - Rahmenverbreiterung - 100mm

140208 - Rahmenverbreiterung - 100mm

Kunststoff Kopplungen - aluplast HST 85

Aluplast 120116 - Federkopplung

120116 - Federkopplung

Aluplast 120224 - H - Kopplung - universal

120224 - H - Kopplung - universal

Kunststoff Abdeckleisten - aluplast HST 85

Aluplast Flachleisten aus Kunststoff Auswahl 65025100, 6465050, 65025080, 65025070, 65025050, 65025040, 65025030

65025100, 6465050, 65025080, 65025070, 65025050, 65025040, 65025030 - Flachleiste aus Kunststoff Auswahl

Aluplast Flachleisten mit Dichtlippe 120120, 120283

120120, 120283 - Flachleiste mit Dichtlippe Auswahl

Aluplast Deckleisten mit Hohlkammerprofil Auswahl

Hohlkammerprofil Deckleiste Auswahl

Winkelprofile aus Kunststoff 73100060, 73080050, 73060040, 73020020

73100060, 73080050, 73060040, 73020020 - Winkelprofil aus Kunststoff

Aluplast Winkelprofile aus Kunststoff 120292, 120291

120292, 120291 - Winkelprofil aus Kunststoff

Aluplast Hohlkammer Winkelprofil aus Kunststoff 120299, 120297, 120289, 120284

120299, 120297, 120289, 120284 - Hohlkammer Winkelprofil aus Kunststoff

Aluplast Fenster und Türen nach Maß

Einfach und bequem Aluplast Fenster und Türen online konfigurieren und bestellen bei fensterblick.de

Das könnte Sie auch interessieren:

Schiebetür aluplast Smart-Slide

Detailzeichnungen Schiebetür aluplast Smart-Slide Schiebeflügel mit Laufwaagen

Schiebetüren Smart-Slide besitzen eine Bautiefe (Rahmen) von 140mm.

Detailzeichnungen aluplast Smart-Slide

Hebeschiebetür aluplast HST 70

Detailzeichnungen Hebeschiebetür aluplast HST 70 Schiebeflügel mit Laufwaagen

Hebeschiebetüren HST 70 besitzen eine Bautiefe (Rahmen) von 167mm.

Detailzeichnungen aluplast HST 70