Detailzeichnungen aluplast Smart-Slide

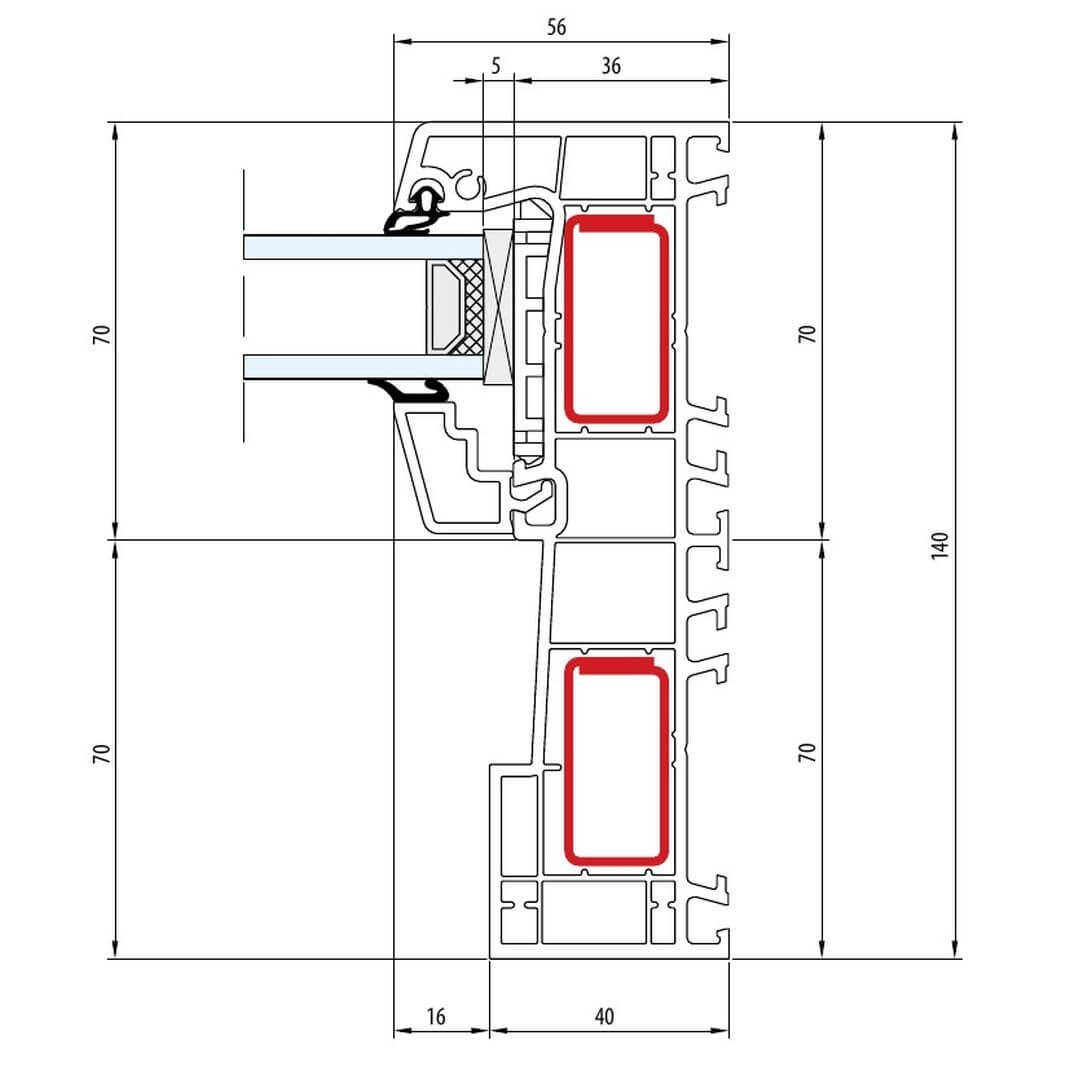
Schiebetürprofil aluplast Smart-Slide Querschnitte

Aluplast Smart-Slide Schiebeflügel - Vertikal

Aluplast Smart-Slide Schiebeflügel - Vertikal

Aluplast Smart-Slide Flügel Fest - Vertikal

Aluplast Smart-Slide Flügel Fest - Vertikal

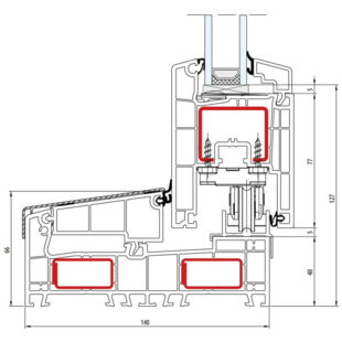
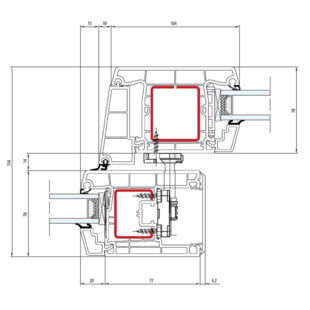
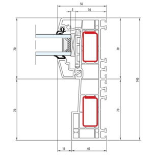
Aluplast Smart-Slide Flügel mit Laufwagen - Vertikal

Aluplast Smart-Slide Flügel mit Laufwagen - Vertikal

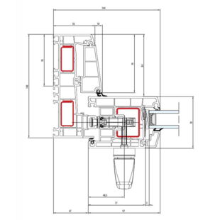
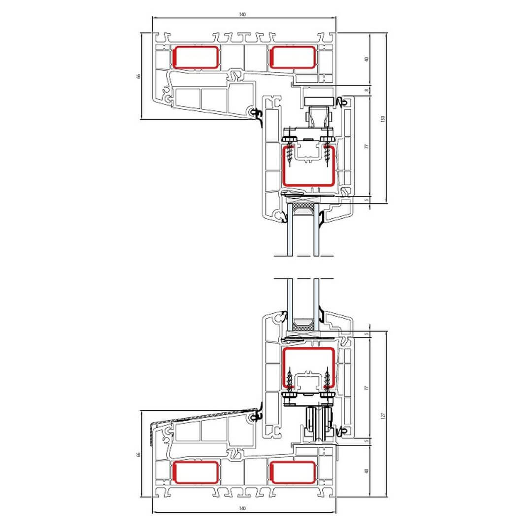
Aluplast Smart-Slide Schiebeflügel mit Griff - Horizontal

Aluplast Smart-Slide Schiebeflügel mit Griff - Horizontal

Aluplast Smart-Slide Flügel Fest - Horizontal

Aluplast Smart-Slide Flügel Fest - Horizontal

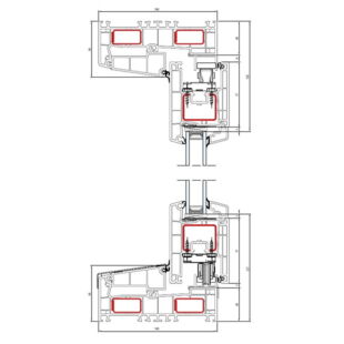
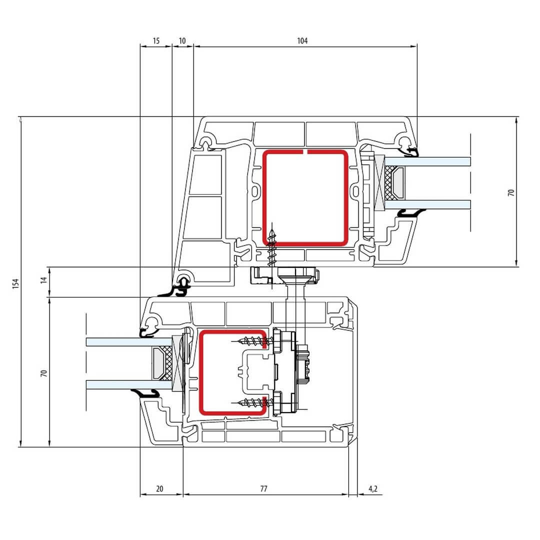
Aluplast Smart-Slide Flügel Treffpunkt - Horizontal

Aluplast Smart-Slide Flügel Treffpunkt - Horizontal

Zusatzprofile für aluplast Smart-Slide Querschnitte

Kunststoff Sprossenarten - aluplast Smart-Slide

Innenliegende SZR Sprossen / Helima Sprossen

Drutex Iglo SZR Sprosse 8mm

Innenliegende Sprosse 8mm

Drutex Iglo SZR Sprosse 18mm

Innenliegende Sprosse 18mm

Drutex Iglo SZR Sprosse 26mm

Innenliegende Sprosse 26mm

Drutex Iglo SZR Sprosse 45mm

Innenliegende Sprosse 45mm

Aufgesetzte / Aufgeklebte Sprossen

Aluplast 160376 - aufgesetzte Sprossen - 26mm

160376 - aufgesetzte Sprossen - 26mm

Aluplast 160378 - aufgesetzte Sprossen - 46mm

160378 - aufgesetzte Sprossen - 46mm

Aluplast 160479 - aufgesetzte Sprossen - 66mm

160479 - aufgesetzte Sprossen - 66mm

Glasteilende Sprossen - Kämpfer

Aluplast IDEAL 4000 Pfosten 84mm 140x41

Aluplast HST 70 Kämpfer-Sprosse 84mm - 140x41

Aluplast IDEAL 4000 Pfosten 104mm 140x45

Aluplast HST 70 Kämpfer-Sprosse 104mm - 140x45

Kunststoff Rahmenverbreiterung - aluplast Smart-Slide (2x 70mm)

Aluplast 140227 - Rahmenverbreiterung - 2mm

140227 - Rahmenverbreiterung - 2mm

Aluplast 140209 - Rahmenverbreiterung - 15mm

140209 - Rahmenverbreiterung - 15mm

Aluplast 140205 - Rahmenverbreiterung - 35mm

140205 - Rahmenverbreiterung - 35mm

Aluplast 140207 - Rahmenverbreiterung - 60mm

140207 - Rahmenverbreiterung - 60mm

Aluplast 140208 - Rahmenverbreiterung - 100mm

140208 - Rahmenverbreiterung - 100mm

Kunststoff Kopplungen - aluplast Smart-Slide

Aluplast 120116 - Federkopplung

120116 - Federkopplung

Aluplast 120224 - H - Kopplung - universal

120224 - H - Kopplung - universal

Kunststoff Abdeckleisten - aluplast Smart-Slide

Aluplast Flachleisten aus Kunststoff Auswahl 65025100, 6465050, 65025080, 65025070, 65025050, 65025040, 65025030

65025100, 6465050, 65025080, 65025070, 65025050, 65025040, 65025030 - Flachleiste aus Kunststoff Auswahl

Aluplast Flachleisten mit Dichtlippe 120120, 120283

120120, 120283 - Flachleiste mit Dichtlippe Auswahl

Aluplast Deckleisten mit Hohlkammerprofil Auswahl

Hohlkammerprofil Deckleiste Auswahl

Winkelprofile aus Kunststoff 73100060, 73080050, 73060040, 73020020

73100060, 73080050, 73060040, 73020020 - Winkelprofil aus Kunststoff

Aluplast Winkelprofile aus Kunststoff 120292, 120291

120292, 120291 - Winkelprofil aus Kunststoff

Aluplast Hohlkammer Winkelprofil aus Kunststoff 120299, 120297, 120289, 120284

120299, 120297, 120289, 120284 - Hohlkammer Winkelprofil aus Kunststoff

Aluplast Fenster und Türen nach Maß

Einfach und bequem Aluplast Fenster und Türen online konfigurieren und bestellen bei fensterblick.de

Das könnte Sie auch interessieren:

Schiebetür aluplast Easy-Slide

Detailzeichnungen Schiebetür aluplast Easy-Slide Schiebeflügel mit Laufwaagen

Schiebetüren Easy-Slide besitzen eine Bautiefe (Rahmen) von 60mm.

Detailzeichnungen aluplast Easy-Slide

Schiebetür aluplast Multi-Slide

Detailzeichnungen Schiebetür aluplast Multi-Slide Schiebeflügel mit Laufwaagen

Schiebetüren Multi-Slide besitzen je nach Anzahl der Flügel eine Bautiefe (Rahmen) von 80mm oder 170mm.

Detailzeichnungen aluplast Multi-Slide