Detailzeichnungen aluplast Multi-Slide

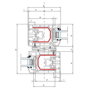
Schiebetürprofil aluplast Multi-Slide Querschnitte

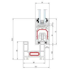
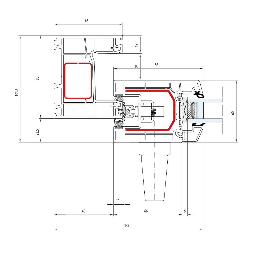
Aluplast Multi-Slide Schiebeflügel - Vertikal

Aluplast Multi-Slide Schiebeflügel - Vertikal

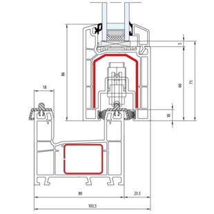
Aluplast Multi-Slide Flügel Fest - Vertikal

Aluplast Multi-Slide Flügel Fest - Vertikal

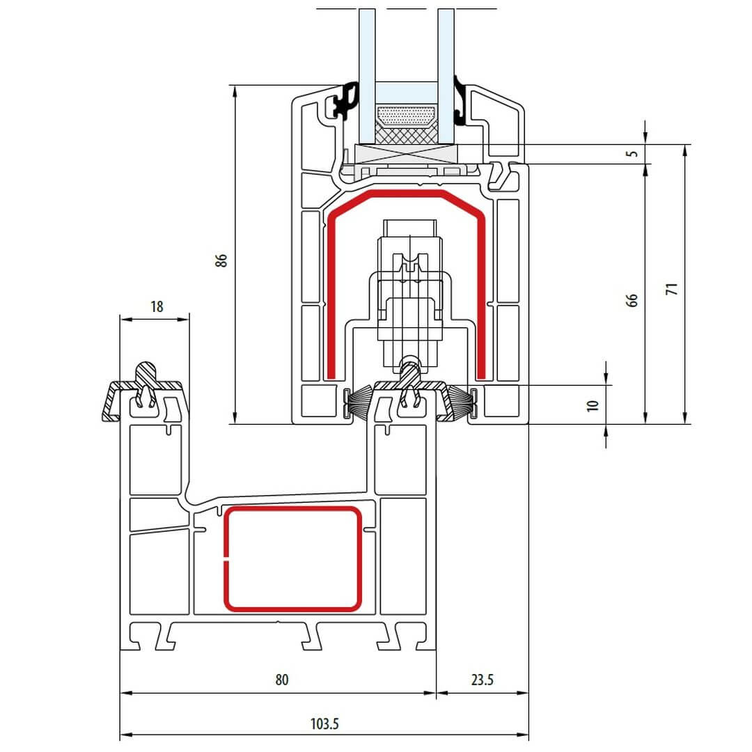
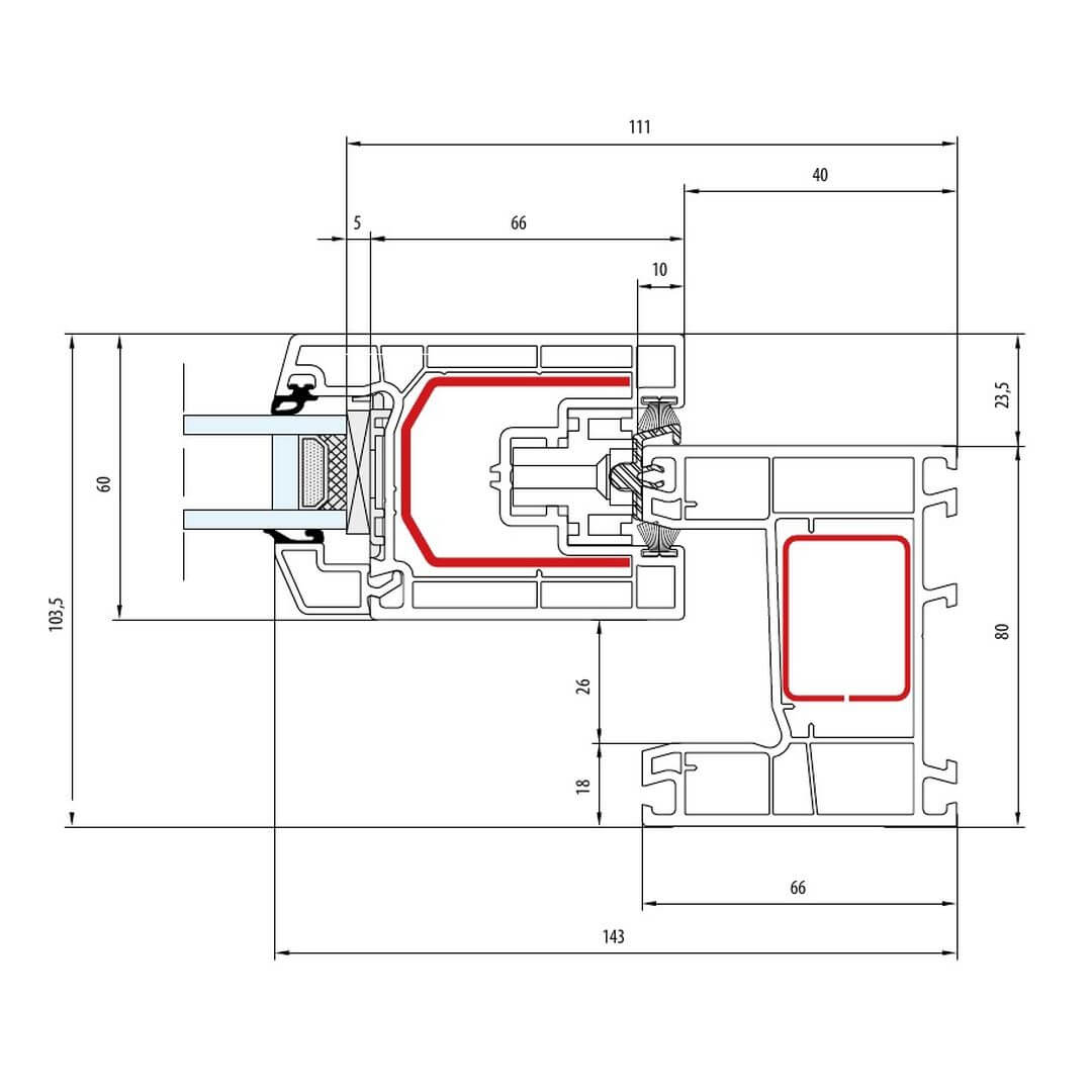
Aluplast Multi-Slide Flügel mit Laufwagen - Vertikal

Aluplast Multi-Slide Flügel mit Laufwagen - Vertikal

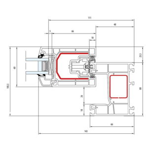
Aluplast Multi-Slide Schiebeflügel mit Griff - Horizontal

Aluplast Multi-Slide Schiebeflügel mit Griff - Horizontal

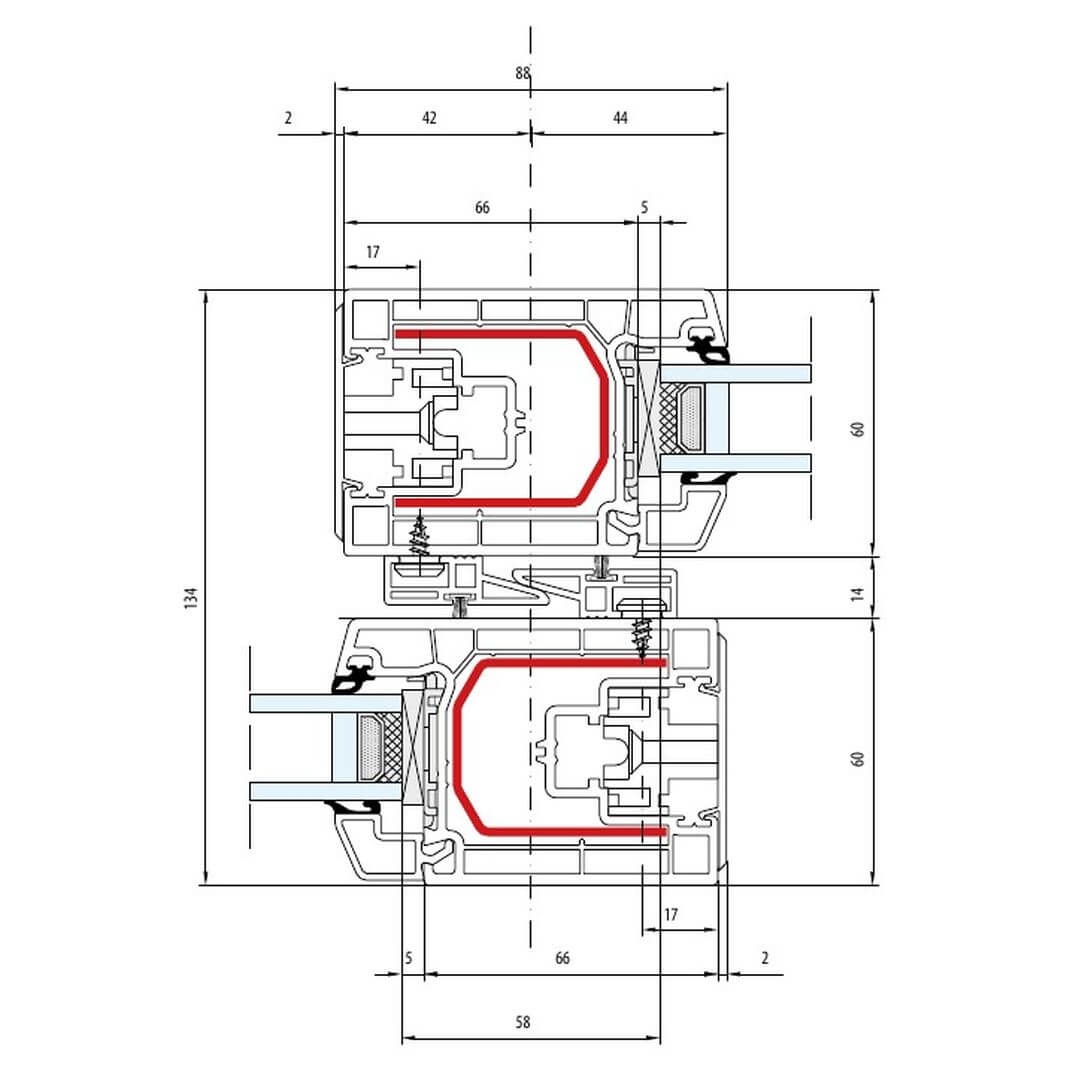
Aluplast Multi-Slide Flügel Treffpunkt - Horizontal

Aluplast Multi-Slide Flügel Treffpunkt - Horizontal

Aluplast Multi-Slide Flügel Fest - Horizontal

Aluplast Multi-Slide Flügel Fest - Horizontal

Zusatzprofile für aluplast Multi-Slide Querschnitte

Kunststoff Sprossenarten - aluplast Multi-Slide

Innenliegende SZR Sprossen / Helima Sprossen

Drutex Iglo SZR Sprosse 8mm

Innenliegende Sprosse 8mm

Drutex Iglo SZR Sprosse 18mm

Innenliegende Sprosse 18mm

Drutex Iglo SZR Sprosse 26mm

Innenliegende Sprosse 26mm

Drutex Iglo SZR Sprosse 45mm

Innenliegende Sprosse 45mm

Aufgesetzte / Aufgeklebte Sprossen

Aluplast 160376 - aufgesetzte Sprossen - 26mm

160376 - aufgesetzte Sprossen - 26mm

Aluplast 160378 - aufgesetzte Sprossen - 46mm

160378 - aufgesetzte Sprossen - 46mm

Aluplast 160479 - aufgesetzte Sprossen - 66mm

160479 - aufgesetzte Sprossen - 66mm

Kunststoff Kopplungen - aluplast Multi-Slide

Aluplast 120116 - Federkopplung

120116 - Federkopplung

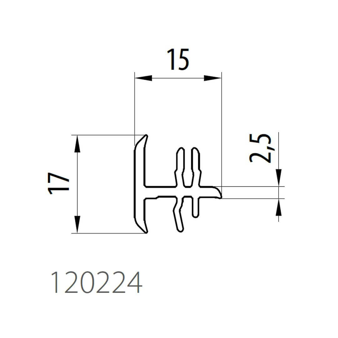
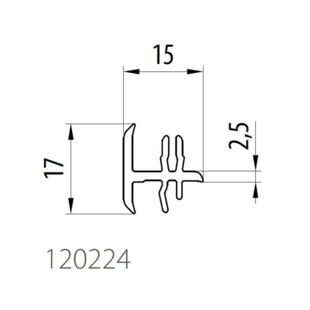
Aluplast 120224 - H - Kopplung - universal

120224 - H - Kopplung - universal

Kunststoff Abdeckleisten - aluplast Multi-Slide

Aluplast Flachleisten aus Kunststoff Auswahl 65025100, 6465050, 65025080, 65025070, 65025050, 65025040, 65025030

65025100, 6465050, 65025080, 65025070, 65025050, 65025040, 65025030 - Flachleiste aus Kunststoff Auswahl

Aluplast Flachleisten mit Dichtlippe 120120, 120283

120120, 120283 - Flachleiste mit Dichtlippe Auswahl

Aluplast Deckleisten mit Hohlkammerprofil Auswahl

Hohlkammerprofil Deckleiste Auswahl

Winkelprofile aus Kunststoff 73100060, 73080050, 73060040, 73020020

73100060, 73080050, 73060040, 73020020 - Winkelprofil aus Kunststoff

Aluplast Winkelprofile aus Kunststoff 120292, 120291

120292, 120291 - Winkelprofil aus Kunststoff

Aluplast Hohlkammer Winkelprofil aus Kunststoff 120299, 120297, 120289, 120284

120299, 120297, 120289, 120284 - Hohlkammer Winkelprofil aus Kunststoff

Aluplast Fenster und Türen nach Maß

Einfach und bequem Aluplast Fenster und Türen online konfigurieren und bestellen bei fensterblick.de

Das könnte Sie auch interessieren:

Schiebetür aluplast Easy-Slide

Detailzeichnungen Schiebetür aluplast Easy-Slide Schiebeflügel mit Laufwaagen

Schiebetüren Easy-Slide besitzen eine Bautiefe (Rahmen) von 60mm.

Detailzeichnungen aluplast Easy-Slide

Schiebetür aluplast Smart-Slide

Detailzeichnungen Schiebetür aluplast Smart-Slide Schiebeflügel mit Laufwaagen

Schiebetüren Smart-Slide besitzen eine Bautiefe (Rahmen) von 140mm.

Detailzeichnungen aluplast Smart-Slide