Detailzeichnungen Aluplast IDEAL 4000 NL Blockprofil
Kunststofffensterprofil IDEAL 4000 NL Blockprofil Querschnitte
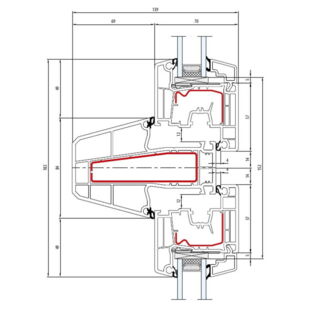
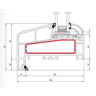
IDEAL 4000 NL Festverglasung Bautiefe 120mm - 140x53
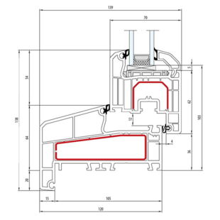
IDEAL 4000 NL Fenster Classic-Line 113mm - 140x53 - 140x20
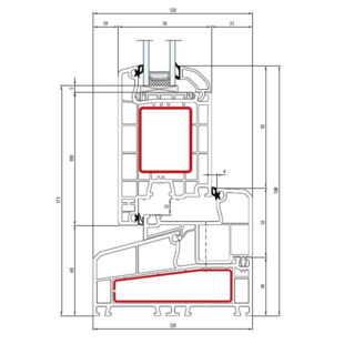
IDEAL 4000 NL Fenster Soft-Line 118mm - 140x53 - 140x23
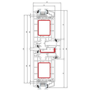
Kunststofffenster IDEAL 4000 NL Blockprofil mit Flosse 20mm (140x54)
IDEAL 4000 NL Festverglasung Bautiefe 120mm Flosse 20mm - 140x54
IDEAL 4000 NL Fenster Classic-Line 113mm Flosse 20mm - 140x54 - 140x20
IDEAL 4000 NL Fenster Soft-Line 118mm Flosse 20mm - 140x54 - 140x23
Kunststofffenster IDEAL 4000 NL Blockprofil mit Pfosten 84mm NL
IDEAL 4000 NL Pfosten 84mm - 140x57
IDEAL 4000 NL Pfosten 84mm Fenster Classic-Line 77mm - 140x57 - 140x20
IDEAL 4000 NL Pfosten 84mm Fenster Round-Line 77mm - 140x57 - 140x22
Kunststofffenster IDEAL 4000 NL Blockprofil mit Stulp 64mm
IDEAL 4000 Stulp 64mm Fenster Classic-Line 77mm - 140x66-140x20
IDEAL 4000 Stulp 64mm Fenster Round-Line 77mm - 140x66-140x22
Kunststofffenster IDEAL 4000 NL Blockprofil mit Stulp (Sonderkonstruktionen auf Anfrage)
IDEAL 4000 Stulp 44mm Fenster Classic-Line 77mm - 140x65-140x20
IDEAL 4000 Stulp 44mm Fenster Round-Line 77mm - 140x65-140x22
IDEAL 4000 Stulp 32mm (Griff zentral) Fenster Classic-Line 77mm - 140x76-140x20
IDEAL 4000 Stulp 32mm (Griff zentral) Fenster Round-Line 77mm - 140x82-140x22
Kunststoff Balkontür IDEAL 4000 NL Blockprofil
IDEAL 4000 NL Balkontür Classic-Line mit Blendrahmen 113mm - 140x53 - 140x20
IDEAL 4000 NL Balkontür Classic-Line mit Blendrahmen 113mm Flosse 20mm - 140x54 - 140x20
IDEAL 4000 Balkontürschwelle 20mm Classic-Line 77mm - 140x20
Kunststoff Terrassenflügel IDEAL 4000 NL Blockprofil
IDEAL 4000 NL Terrassentür innen öffnend Classic-Line 141mm - 140x53 - 140x30
IDEAL 4000 NL Terrassentür innen öffnend Classic-Line 141mm Flosse 20mm - 140x54 - 140x30
IDEAL 4000 Terassentürschwelle 20mm innen öffnend Classic-Line - 140x30
IDEAL 4000 NL Terrassentür außen öffnend Classic-Line 173mm - 140x53 - 140x58 - 140x31
IDEAL 4000 NL Terrassentür außen öffnend Classic-Line 173mm Flosse 20mm - 140x54 - 140x58 - 140x31
IDEAL 4000 Terassentürschwelle 20mm aussen öffnend Classic-Line - 140x31
Terrassenflügel IDEAL 4000 NL Blockprofil mit Pfosten 84mm
IDEAL 4000 NL Pfosten 84mm Terrassentür innen öffnend Classic-Line - 140x57 - 140x30
IDEAL 4000 NL Pfosten 84mm Terrassentür außen öffnend Classic-Line - 140x57 - 140x31
Terrassenflügel IDEAL 4000 NL Blockprofil mit Stulp 64mm
IDEAL 4000 Stulp 64mm Terassentür innen öffnend Classic-Line - 140x66-140x30
IDEAL 4000 Stulp 64mm Terassentür aussen öffnend Classic-Line - 140x66-140x31
Kunststoff IDEAL 4000 NL Blockprofil PSK Parallel-Schiebe-Kipp-Tür
Kunststoff Haustür IDEAL 4000 NL Blockprofil
IDEAL 4000 NL Tür innen öffnend - 140x53 - 140x33
IDEAL 4000 NL Tür innen öffnend Flosse 20mm - 140x54 - 140x33
IDEAL 4000 Türschwelle 20mm innen öffnend - 140x33
IDEAL 4000 NL Tür außen öffnend - 140x53 - 140x58 - 140x35
IDEAL 4000 NL Tür außen öffnend Flosse 20mm - 140x54 - 140x58 - 140x35
IDEAL 4000 NL Türschwelle 20mm aussen öffnend - 140x35
Türflügel IDEAL 4000 NL Blockprofil mit Pfosten 84mm
IDEAL 4000 NL Pfosten 84mm Tür innen öffnend - 140x57 - 140x33
IDEAL 4000 NL Pfosten 84mm Tür außen öffnend - 140x57 - 140x35
Türflügel IDEAL 4000 NL Blockprofil mit Stulp 64mm
IDEAL 4000 Stulp 64mm Tür innen öffnend - 140x66-140x33
IDEAL 4000 Stulp 64mm Tür aussen öffnend - 140x66-140x35
Zusatzprofile für aluplast IDEAL 4000 NL Blockprofil Querschnitte
Kunststoff Sprossenarten - Ideal 4000 NL Blockprofil
Innenliegende SZR Sprossen / Helima Sprossen
Innenliegende Sprosse 8mm
Innenliegende Sprosse 18mm
Innenliegende Sprosse 26mm
Innenliegende Sprosse 45mm
Aufgesetzte / Aufgeklebte Sprossen
160376 - aufgesetzte Sprossen - 26mm
160378 - aufgesetzte Sprossen - 46mm
160479 - aufgesetzte Sprossen - 66mm
Glasteilende Sprossen - Kämpfer
IDEAL 4000 NL Kämpfer-Sprosse 84mm - 140x57
Kunststoff Anschlussprofile - Ideal 4000 NL Blockprofil
Kunststoff Bankanschlussprofile
144247 - Fensterbankanschluss - 30mm
120238 - Fensterbankanschluss - 50mm
Kunststoff Steinbankanschlussprofile
120206 - Steinbankanschluss - 25mm
120208 - Steinbankanschluss - 30mm
120209 - Steinbankanschluss - 40mm
120210 - Steinbankanschluss - 50mm
Kunststoff Anschlussprofile (bündig)
140277 - Bankanschlussprofil - 10mm
120106 - Bankanschlussprofil - 20mm
120236 - Bankanschlussprofil - 15mm
120237 - Bankanschlussprofil - 30mm
120102 - Bankanschlussprofil - 50mm
Kunststoff Fensterbank-Anschlussprofile
140229 - Fensterbank - 42,5mm - außen
120190 - Fensterbank - 115,5mm - außen
120246 - Fensterbank - 50mm - außen
120248 - Fensterbank - 55mm - außen
120249 - Fensterbank - 90mm - außen
140238 - Fensterbank - 80mm - außen
600020, 600220, 650921, 620249 - Fensterbank - Endkappe
Kunststoff Rahmenverbreiterung - Ideal 4000 NL Blockprofil (2x 60mm)
120220 - Rahmenverbreiterung - 15mm
120242 - Rahmenverbreiterung - 35mm
120221 - Rahmenverbreiterung - 60mm
120223 - Rahmenverbreiterung - 130mm
Kunststoff Kopplungen - Ideal 4000 NL Blockprofil
120116 - Federkopplung
120224 - H - Kopplung - universal
120109 - Statikprofil
Kunststoff Abdeckleisten - Ideal 4000 NL Blockprofil
65025100, 6465050, 65025080, 65025070, 65025050, 65025040, 65025030 - Flachleiste aus Kunststoff Auswahl
120120, 120283 - Flachleiste mit Dichtlippe Auswahl
Hohlkammerprofil Deckleiste Auswahl
73100060, 73080050, 73060040, 73020020 - Winkelprofil aus Kunststoff
120292, 120291 - Winkelprofil aus Kunststoff
120299, 120297, 120289, 120284 - Hohlkammer Winkelprofil aus Kunststoff
Kunststoff Weitere Profile - Ideal 4000 NL Blockprofil
140275 - Distanzprofil 22mm
140107 - Wetterschenkel
Aluplast Fenster und Türen nach Maß
Einfach und bequem Aluplast Fenster und Türen online konfigurieren und bestellen bei fensterblick.de
Das könnte Sie auch interessieren:
Kunststofffenster IDEAL 70 Casement
Kunststofffenster IDEAL 70 Casement besitzen verschiedene Tiefen von 70mm.
Detailzeichnungen IDEAL 70 Casement
Kunststofffenster IDEAL 7000 NL Blockprofil
Kunststofffenster IDEAL 7000 NL Blockprofil besitzen verschiedene Tiefen von 120mm.
Detailzeichnungen IDEAL 7000 NL Blockprofil