Detailzeichnungen Aluplast IDEAL Nordline (Nord-Line)

Inhaltsverzeichnis:

Kunststofffensterprofil aluplast Nordline

Aluplast IDEAL Nordline Festverglasung Bautiefe 120mm - 140x90

Aluplast Nordline Festverglasung Bautiefe 120mm - 140x90

Aluplast IDEAL Nordline Fenster Bautiefe 120mm - 140x90 - 140x93

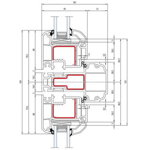
Aluplast Nordline Fenster Bautiefe 120mm - 140x90 - 140x93

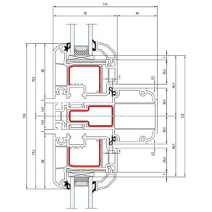
Kunststofffenster Aluplast Nordline mit Pfosten Vertikal und Horizontal

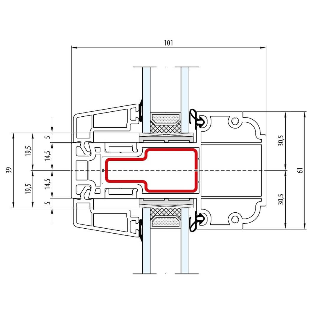
Aluplast IDEAL Nordline Pfosten 61mm Bautiefe 101mm (Vertikal) - 140x98

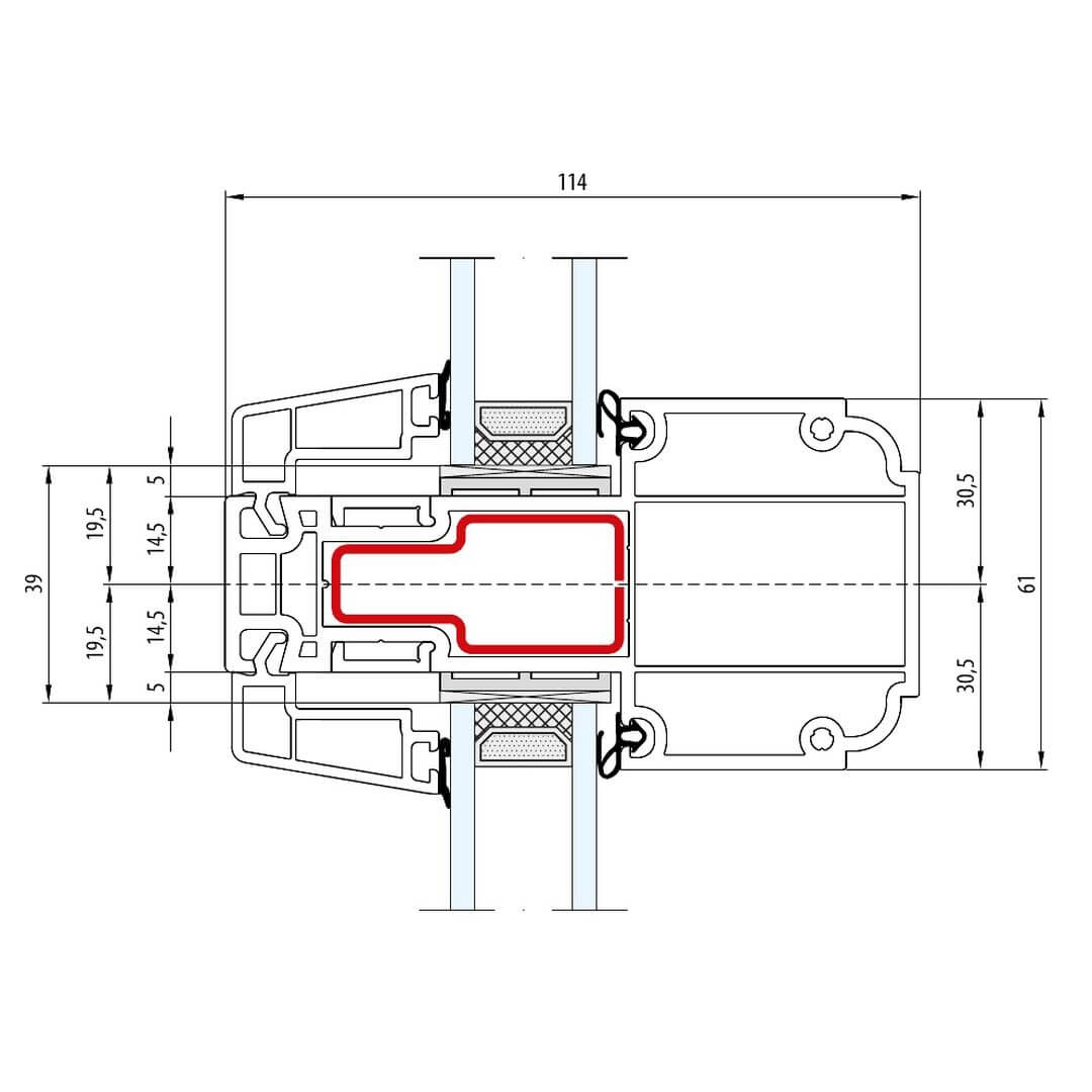
Aluplast Nordline Pfosten 61mm Bautiefe 101mm (Vertikal) - 140x98

Aluplast IDEAL Nordline Pfosten 61mm Fenster Nordline Bautiefe 101mm (Vertikal) - 140x98 - 140x93

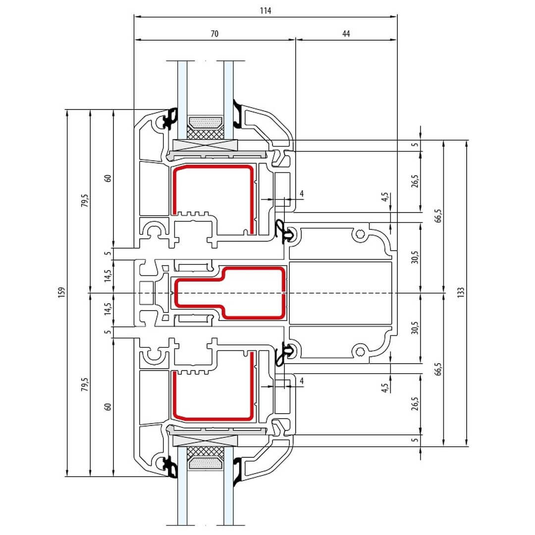
Aluplast Nordline Pfosten 61mm Fenster Nordline Bautiefe 101mm (Vertikal) - 140x98 - 140x93

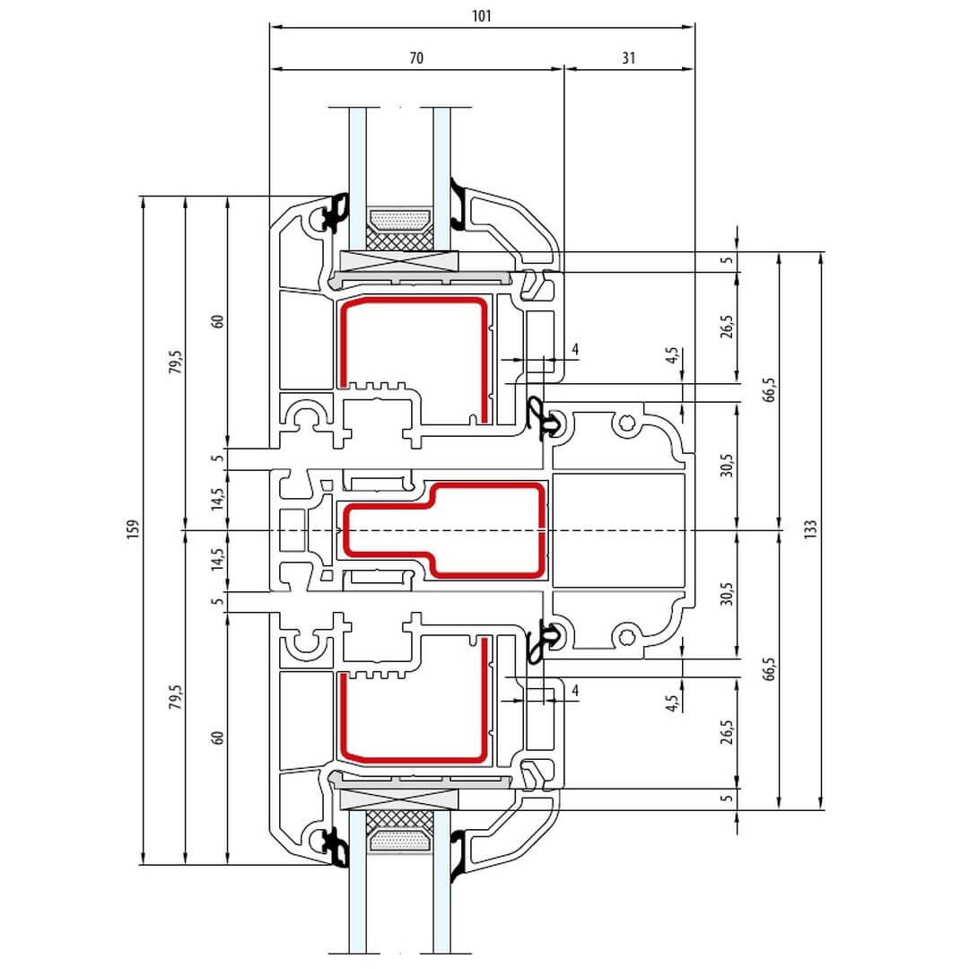
Aluplast IDEAL Nordline Pfosten 61mm Bautiefe 114mm (Horizontal) - 140x99

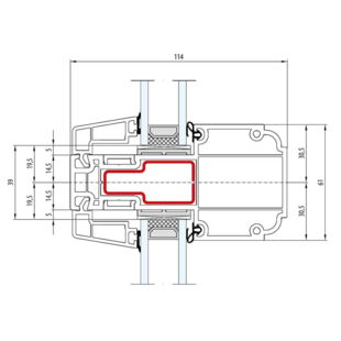
Aluplast Nordline Pfosten 61mm Bautiefe 114mm (Horizontal) - 140x99

Aluplast IDEAL Nordline Pfosten 61mm Fenster Nordline Bautiefe 114mm (Horizontal) - 140x99 - 140x93

Aluplast Nordline Pfosten 61mm Fenster Nordline Bautiefe 114mm (Horizontal) - 140x99 - 140x93

Zusatzprofile für aluplast Aluplast Nordline Querschnitte

Kunststoff Sprossenarten - Aluplast Nordline

Innenliegende SZR Sprossen / Helima Sprossen

Drutex Iglo SZR Sprosse 8mm

Innenliegende Sprosse 8mm

Drutex Iglo SZR Sprosse 18mm

Innenliegende Sprosse 18mm

Drutex Iglo SZR Sprosse 26mm

Innenliegende Sprosse 26mm

Drutex Iglo SZR Sprosse 45mm

Innenliegende Sprosse 45mm

Aufgesetzte / Aufgeklebte Sprossen

Aluplast 160376 - aufgesetzte Sprossen - 26mm

160376 - aufgesetzte Sprossen - 26mm

Aluplast 160378 - aufgesetzte Sprossen - 46mm

160378 - aufgesetzte Sprossen - 46mm

Aluplast 160479 - aufgesetzte Sprossen - 66mm

160479 - aufgesetzte Sprossen - 66mm

Glasteilende Sprossen - Kämpfer

Aluplast IDEAL Nordline Pfosten 61mm Bautiefe 101mm (Vertikal) - 140x98

IDEAL Nordline Pfosten 61mm Bautiefe 101mm (Vertikal) - 140x98

Aluplast IDEAL Nordline Pfosten 61mm Bautiefe 114mm (Horizontal) - 140x99

IDEAL Nordline Pfosten 61mm Bautiefe 114mm (Horizontal) - 140x99

Kunststoff Rahmenverbreiterung - Aluplast Nordline (2x 60mm)

Aluplast 120220 - Rahmenverbreiterung - 15mm

120220 - Rahmenverbreiterung - 15mm

Aluplast 120242 - Rahmenverbreiterung - 35mm

120242 - Rahmenverbreiterung - 35mm

Aluplast 120221 - Rahmenverbreiterung - 60mm

120221 - Rahmenverbreiterung - 60mm

Aluplast 120223 - Rahmenverbreiterung - 130mm

120223 - Rahmenverbreiterung - 130mm

Kunststoff Kopplungen - Aluplast Nordline

Aluplast 120116 - Federkopplung

120116 - Federkopplung

Aluplast 120224 - H - Kopplung - universal

120224 - H - Kopplung - universal

Kunststoff Abdeckleisten - Aluplast Nordline

Aluplast Flachleisten aus Kunststoff Auswahl 65025100, 6465050, 65025080, 65025070, 65025050, 65025040, 65025030

65025100, 6465050, 65025080, 65025070, 65025050, 65025040, 65025030 - Flachleiste aus Kunststoff Auswahl

Aluplast Flachleisten mit Dichtlippe 120120, 120283

120120, 120283 - Flachleiste mit Dichtlippe Auswahl

Aluplast Deckleisten mit Hohlkammerprofil Auswahl

Hohlkammerprofil Deckleiste Auswahl

Winkelprofile aus Kunststoff 73100060, 73080050, 73060040, 73020020

73100060, 73080050, 73060040, 73020020 - Winkelprofil aus Kunststoff

Aluplast Winkelprofile aus Kunststoff 120292, 120291

120292, 120291 - Winkelprofil aus Kunststoff

Aluplast Hohlkammer Winkelprofil aus Kunststoff 120299, 120297, 120289, 120284

120299, 120297, 120289, 120284 - Hohlkammer Winkelprofil aus Kunststoff

Aluplast Fenster und Türen nach Maß

Einfach und bequem Aluplast Fenster und Türen online konfigurieren und bestellen bei fensterblick.de

Das könnte Sie auch interessieren:

Kunststofffenster IDEAL 4000 85mm

Detailzeichnungen Kunststofffenster IDEAL 4000 85mm

Kunststofffenster IDEAL 4000 85mm besitzen eine Bautiefe (Rahmen) von 85mm.

Detailzeichnungen IDEAL 4000 85mm

Kunststofffenster IDEAL 4000 Casement

Detailzeichnungen Kunststofffenster IDEAL 4000 Casement

Nach außen öffnende Fenster IDEAL 4000 Casement besitzen eine Bautiefe (Rahmen) von 70mm.

Detailzeichnungen IDEAL 4000 Casement