Detailzeichnungen Kunststofffenster Iglo Premier außen öffnend

Kunststofffensterprofil Iglo Premier Querschnitte

Drutex Iglo 5 Festverglasung 66mm Detailzeichnung

Iglo Premier Festverglasung 66mm - 50001

Drutex Iglo 5 Festverglasung 75mm Detailzeichnung

Iglo Premier Festverglasung 75mm - 50003

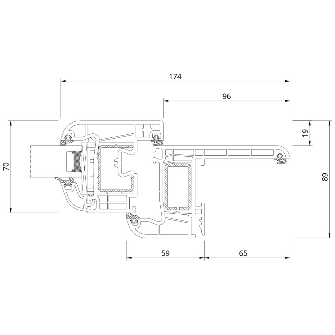
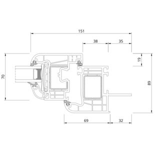
Drutex Iglo Premier Fenster 116mm Detailzeichnung - 50001 50016

Iglo Premier Fenster 116mm - 50001 50016

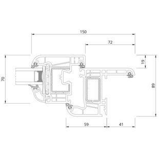
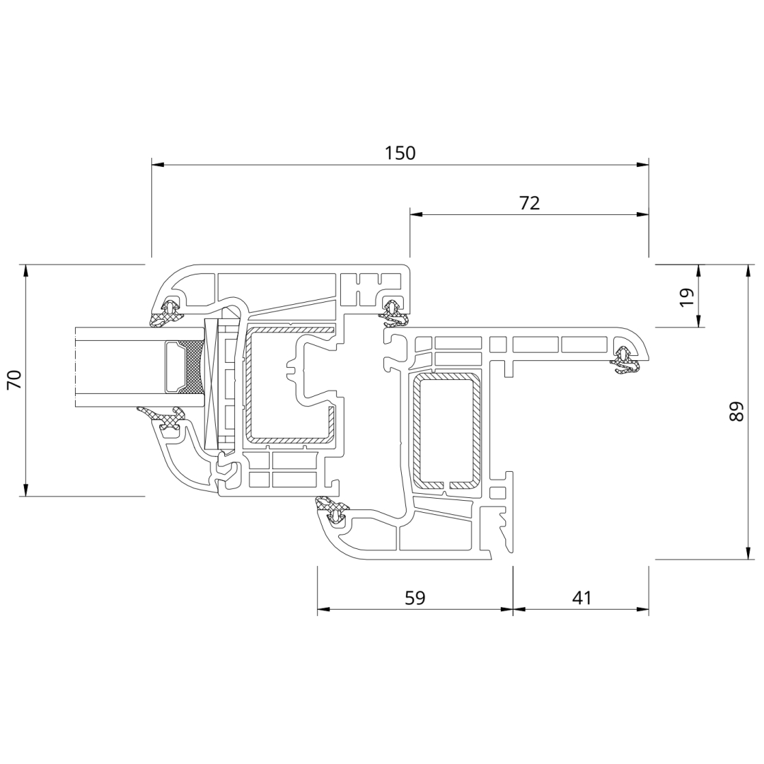
Drutex Iglo Premier Fenster 125mm Detailzeichnung - 50003 50016

Iglo Premier Fenster 125mm - 50003 50016

Kunststofffensterprofil Iglo Premier mit Rennovationsrahmen - Flosse außen

Drutex Iglo Premier Rennovation Fenster Flosse 41mm Detailzeichnung - 50004 50016

Iglo Premier Rennovation Fenster Flosse 41mm außen - 50004 50016

Drutex Iglo Premier Rennovation Fenster Flosse 65mm Detailzeichnung - 50005 50016

Iglo Premier Rennovation Fenster Flosse 65mm außen - 50005 50016

Drutex Iglo Premier Rennovation Fenster Flosse 35mm Detailzeichnung - 50009 50016

Iglo Premier Rennovation Fenster Flosse 35mm außen - 50009 50016

Kunststofffensterprofil Iglo Premier mit Profil - Flosse innen

Drutex Iglo Premier Fenster Flosse 20mm innen Detailzeichnung - 50021 50016

Iglo Premier Fenster Flosse 20mm innen - 50021 50016

Kunststofffensterprofil Iglo Premier mit Pfosten

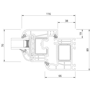
Drutex Iglo Premier Pfosten 84mm Fenster Detailzeichnung - 50021 50016

Iglo Premier Pfosten 84mm Fenster - 50021 50016

Zusatzprofile für Drutex Iglo Premier Querschnitte

Kunststofffenster Sprossenarten - Iglo Premier

Innenliegende SZR Sprossen / Helima Sprossen

Drutex Iglo SZR Sprosse 8mm

Innenliegende Sprosse 8mm

Drutex Iglo SZR Sprosse 18mm

Innenliegende Sprosse 18mm

Drutex Iglo SZR Sprosse 26mm

Innenliegende Sprosse 26mm

Drutex Iglo SZR Sprosse 45mm

Innenliegende Sprosse 45mm

Aufgesetzte / Aufgeklebte Sprossen

Drutex Iglo aufliegende Sprossen 27mm

Aufgesetzte Sprossen 27mm

Drutex Iglo aufliegende Sprossen 45mm

Aufgesetzte Sprossen 45mm

Drutex Iglo aufliegende Sprosse 65mm

Aufgesetzte Sprossen 65mm

Glasteilende Sprossen - Kämpfer

Drutex Iglo 5 Glasteilende Kämpfer-Sprosse 84mm

Iglo Premier Kämpfer-Sprosse 84mm

Kunststoff Anschlussprofile - Iglo Premier

Kunststoff Bankanschlussprofile

Drutex Iglo 5 Fenster mit Bankanschluss 30mm 54123

Iglo Premier Bankanschlussprofil 30mm mit Dichtung

Drutex Iglo 5 Fenster mit Bankanschluss 30mm 54113

Iglo Premier Bankanschluss mit Zusatzsteg

Drutex Iglo 5 Fenster mit Bankanschluss 50mm 50114

Iglo Premier Bankanschlussprofil 50mm

Kunststoff Steinbankanschlussprofile

Drutex Steinbankanschluss aus Kunststoff 25mm 120206

Steinbankanschluss 25mm

Drutex Steinbankanschluss aus Kunststoff 30mm 120208

Steinbankanschluss 30mm

Drutex Steinbankanschluss aus Kunststoff 40mm 120209

Steinbankanschluss 40mm

Drutex Steinbankanschluss aus Kunststoff 50mm 120210

Steinbankanschluss 50mm

Kunststoff Anschlussprofile (bündig)

Drutex Anschlussprofil 15mm 120236

Anschlussprofil 15mm

Drutex Anschlussprofil 20mm L01350200

Anschlussprofil 20mm

Drutex Anschlussprofil 30mm 50117

Anschlussprofil 30mm

Drutex Anschlussprofil 50mm L01100500

Anschlussprofil 50mm

Drutex Iglo Anschlussprofil NL 50115

Niederländisches Anschlussprofil

Kunststofffenster Rahmenverbreiterung - Iglo Premier

Drutex Iglo 5 Fenster mit Rahmenverbreiterung 15mm 50103

Iglo Premier Rahmenverbreiterung 15mm

Drutex Iglo 5 Fenster mit Rahmenverbreiterung 35mm Stahlverstärkung 50100

Iglo Premier Rahmenverbreiterung 35mm

Drutex Iglo 5 Fenster mit Rahmenverbreiterung 60mm Stahlverstärkung 50101

Iglo Premier Rahmenverbreiterung 60mm

Drutex Iglo 5 Fenster mit Rahmenverbreiterung 100mm Stahlverstärkung 50102

Iglo Premier Rahmenverbreiterung 100mm

Kunststofffenster Kopplungen - Iglo Premier

Drutex Iglo Premier H-Kopplung Fenster Detailzeichnung - 50110 50001 50016

Iglo Premier H-Kopplung Fenster - 50110 50001 50016

Drutex Iglo Premier Kopplung mit Stahl Fenster Detailzeichnung - 50124 50001 50016

Iglo Premier Kopplung mit Stahl Fenster - 50124 50001 50016

Drutex Iglo Premier Kopplung mit Stahl Fenster Detailzeichnung - 50111 50001 50016

Iglo Premier Kopplung mit Stahl Fenster - 50111 50001 50016

Drutex Iglo Premier Kopplung mit Stahl Fenster Detailzeichnung - 50116 50001 50016

Iglo Premier Kopplung mit Stahl Fenster - 50116 50001 50016

Verglasungsbeispiele - Glasleisten Iglo Premier

Drutex Iglo Premier Verglasungsdicke 24mm - 50924

Iglo Premier Verglasungsdicke 24mm - 50924

Drutex Iglo Premier Verglasungsdicke 28mm - 50928

Iglo Premier Verglasungsdicke 28mm - 50928

Drutex Iglo Premier Verglasungsdicke 32mm - 50932

Iglo Premier Verglasungsdicke 32mm - 50932

Drutex Iglo Premier Verglasungsdicke 36mm - 50936

Iglo Premier Verglasungsdicke 36mm - 50936

Drutex Iglo Premier Verglasungsdicke 40mm - 50940

Iglo Premier Verglasungsdicke 40mm - 50940

Drutex Iglo Premier Verglasungsdicke 24mm eckig - 50924a

Iglo Premier Verglasungsdicke 24mm eckig - 50924a

Kunststoff Abdeckleisten - Iglo Premier

Drutex Deckleisten mit Hohlkammerprofil Auswahl

Hohlkammerprofil Deckleiste Auswahl

Drutex Flachleisten mit Dichtlippe Auswahl

Flachleiste mit Dichtlippe Auswahl

Drutex Flachleisten aus Kunststoff Auswahl

Flachleiste aus Kunststoff Auswahl

Drutex Winkelprofile aus Kunststoff Auswahl

Winkelprofil aus Kunststoff Auswahl

Kostenlose Lieferung

Ab einer Bestellung von 10 Fenstern deutschlandweit!

Jetzt Angebot für Kunststofffenster anfordern

Das könnte Sie auch interessieren:

Kunststofffenster Iglo 5

Detailzeichnungen Kunststofffenster Iglo 5

Kunststofffenster Iglo 5 besitzen eine Bautiefe (Rahmen) von 70mm.

Kunststofffenster Iglo EXT

Detailzeichnungen Kunststofffenster Iglo EXT

Kunststofffenster Iglo EXT besitzen eine Bautiefe (Rahmen) von 70mm.