Detailzeichnungen Vorbaurollladen Aluprof SAR

Inhaltsverzeichnis:

Vorbaurollladen SAR Kastenformen Querschnitte

Vorbaurollladen SAR SK mit Kastenhöhe 180mm

Vorbaurollladen SAR-SK 180mm

Vorbaurollladen SAR SK mit Kastenhöhe 205mm

Vorbaurollladen SAR-SK 205mm

Vorbaurollladen SAR SKO-P mit Kastenhöhe 180mm

Vorbaurollladen SAR SKO-P 180mm

Vorbaurollladen SAR SKO-P mit Kastenhöhe 205mm

Vorbaurollladen SAR SKO-P 205mm

Vorbaurollladen SAR SKP mit Kastenhöhe 180mm

Vorbaurollladen SAR SKP 180mm

Vorbaurollladen SAR SKP mit Kastenhöhe 205mm

Vorbaurollladen SAR SKP 205mm

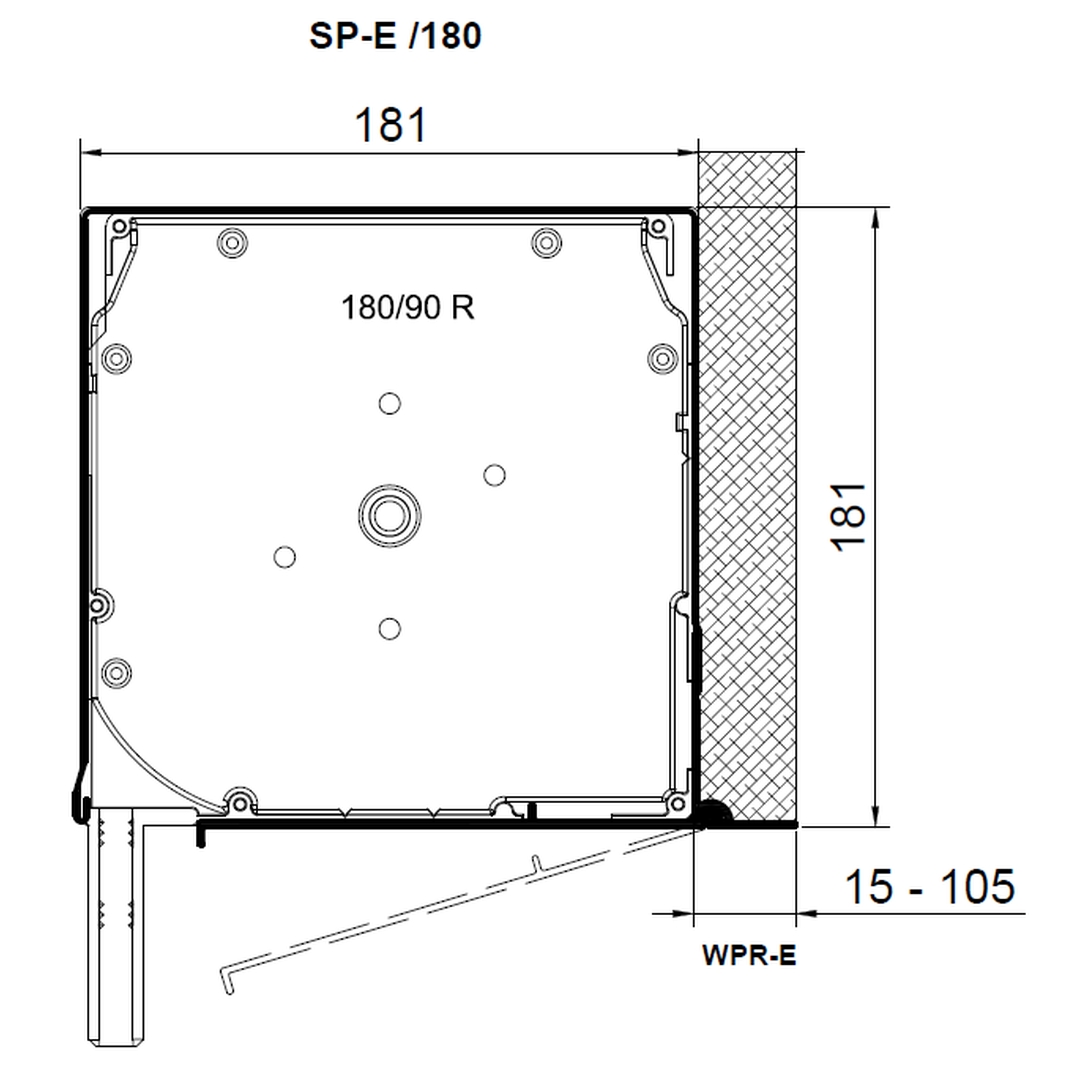
Vorbaurollladen SAR SP-E mit Kastenhöhe 180mm

Vorbaurollladen SAR SP-E 180mm

Vorbaurollladen SAR SP-E mit Kastenhöhe 205mm

Vorbaurollladen SAR SP-E 205mm

Vorbaurollladen Aluprof SAR Einzelteile

Führungsschienen für Vorbaurollladen SAR

Vorbaurollladen Führungsschiene 80mm PPW verstärkt

Vorbaurollladen Führungsschiene PPW 80mm verstärkt

Vorbaurollladen Führungsschiene 90mm PPW verstärkt

Vorbaurollladen Führungsschiene PPW 90mm verstärkt

Rollladenpanzer Lamellen (Profile)

Lamelle PE 55 stranggepresst technische Zeichnung

Rollladenprofil PE 55mm stranggepresst

Vorbaurollladen Endleisten (Abschlussleisten)

Rollladen Endleiste LDG 55/W

Rollladenpanzer Endleiste LDG 55/W

Vorbaurollladen Endleiste W-LDG 55/W

Vorbaurollladen Endleiste W-LDG 55/W

Vorbaurollladen Endleiste PW-LDG 55/W

Vorbaurollladen Endleiste PW-LDG 55/W

Vorbaurollladen Montagearten

Vorbaurollladen SAR - Einbaubeispiel :

Vorbaurollladen SAR SK Einbaubeispiel

Vorbaurollladen SAR SK Einbaubeispiel

Vorbaurollladen SAR SKP Einbaubeispiel

Vorbaurollladen SAR SKP Einbaubeispiel

Vorbaurollladen SAR SKO Einbaubeispiel

Vorbaurollladen SAR SKO Einbaubeispiel

Vorbaurollladen SAR SK Einbaubeispiel mit Laibung

Vorbaurollladen SAR SK Einbaubeispiel mit Laibung

Vorbaurollladen SAR SKP Einbaubeispiel mit Laibung

Vorbaurollladen SAR SKP Einbaubeispiel mit Laibung

Vorbaurollladen SAR SKO-P Einbaubeispiel mit Laibung

Vorbaurollladen SAR SKO-P Einbaubeispiel mit Laibung

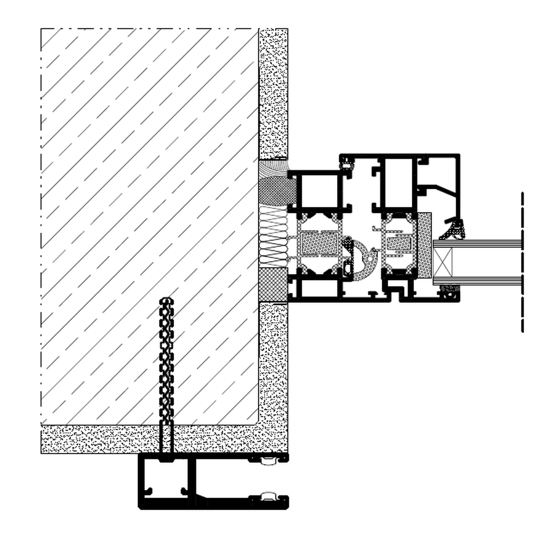
Vorbaurollladen SAR SP-E 205 Einbaubeispiel mit Laibung

Vorbaurollladen SAR SP-E 205 Einbaubeispiel mit Laibung

Vorbaurollladen SAR SP-E 180 Einbaubeispiel mit Laibung

Vorbaurollladen SAR SP-E 180 Einbaubeispiel mit Laibung

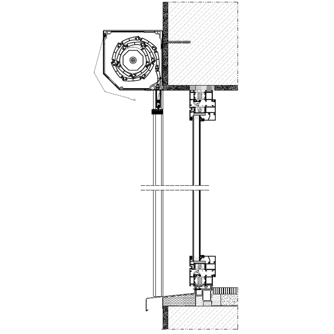
Vorbaurollladen SAR Führungsschienen - Einbaubeispiel:

Vorbaurollladen SAR Einbaubeispiel Führungsschiene auf Mauer

Vorbaurollladen SAR Einbaubeispiel Führungsschiene auf Mauer

Vorbaurollladen SAR Einbaubeispiel Führungsschiene auf Fensterrahmen

Vorbaurollladen SAR Einbaubeispiel Führungsschiene auf Fensterrahmen

Vorbaurollladen SAR Einbaubeispiel Führungsschiene auf Fensterrahmen zweiseitig

Vorbaurollladen SAR Einbaubeispiel Führungsschiene auf Fensterrahmen zweiseitig

Technische Daten - Vorbaurollladen Aluprof SAR
Weiter zur Produktseite Vorbaurollladen Aluprof SAR

Drutex Fensterlieferung

Kostenlose Lieferung

Ab einer Bestellung von 10 Fenstern deutschlandweit!

Jetzt Angebot für Vorbaurollladen anfordern

Das könnte Sie auch interessieren:

Vorbaurollladen SK

Detailzeichnungen Vorbaurollladen Aluprof SK

Der Vorbaurollladen Aluprof SK besitzt ein Kasten mit abgeschrägten 45° Winkel für eine kantige Optik.

Detailzeichnungen Aluprof SK

Vorbaurollladen SP-E

Detailzeichnungen Vorbaurollladen Aluprof SP-E

Vorbaurollladen Aluprof SP-E sind als Unterputz-System ideal für Passivhäuser geeignet.

Detailzeichnungen Aluprof SP-E