Detailzeichnungen Holz-Alufenster Duoline-78

Inhaltsverzeichnis:

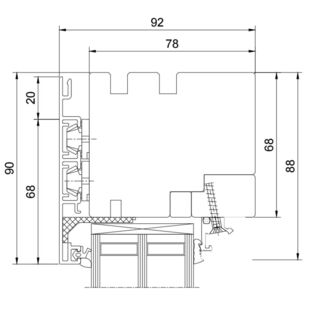
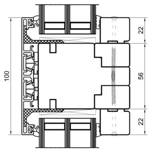
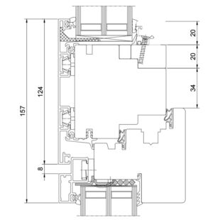
Holz-Aluminium Fensterprofil Drutex Duoline 78 Querschnitte

Drutex Duoline 78 Festverglasung oben

Duoline 78 Festverglasung oben

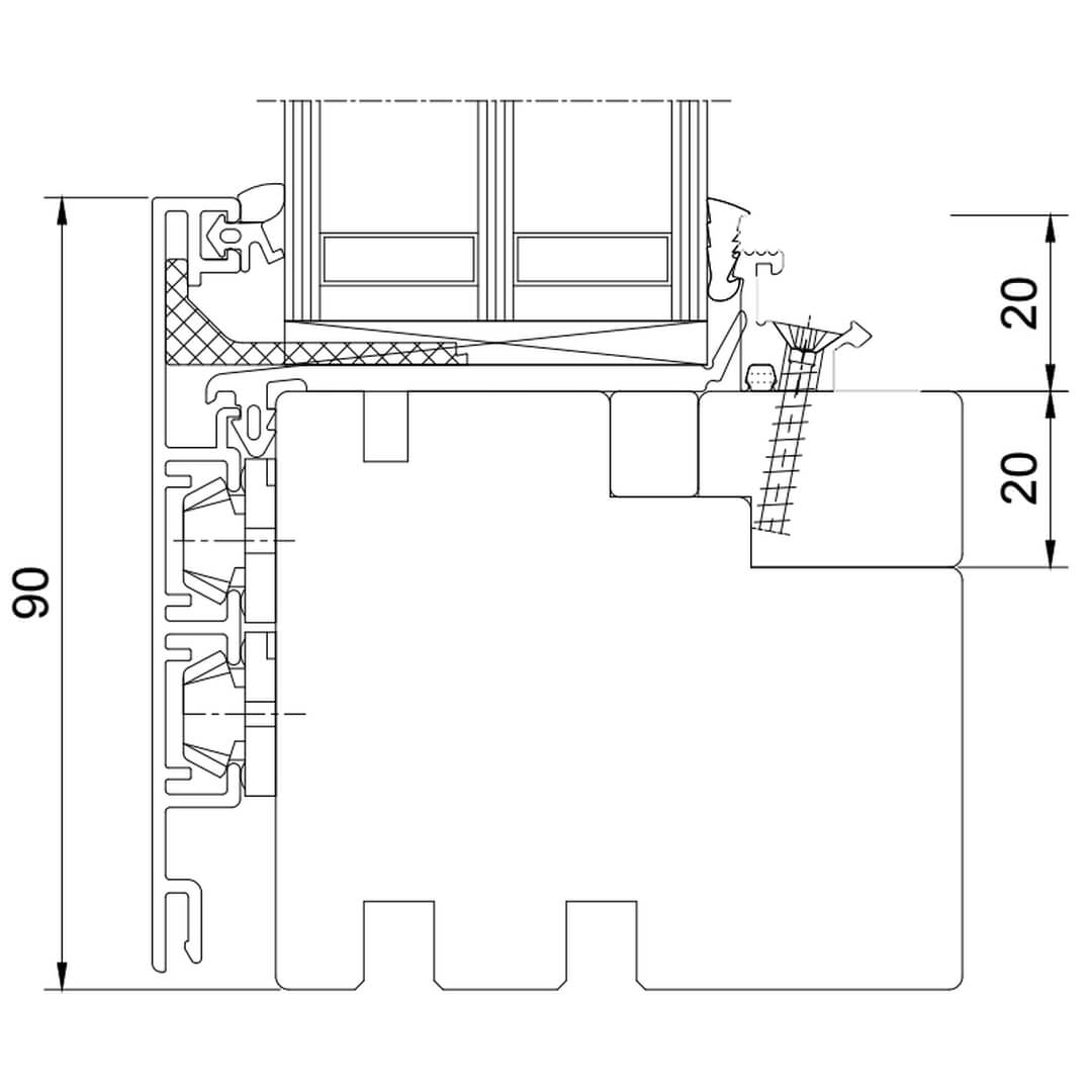
Drutex Duoline 78 Festverglasung unten

Duoline 78 Festverglasung unten

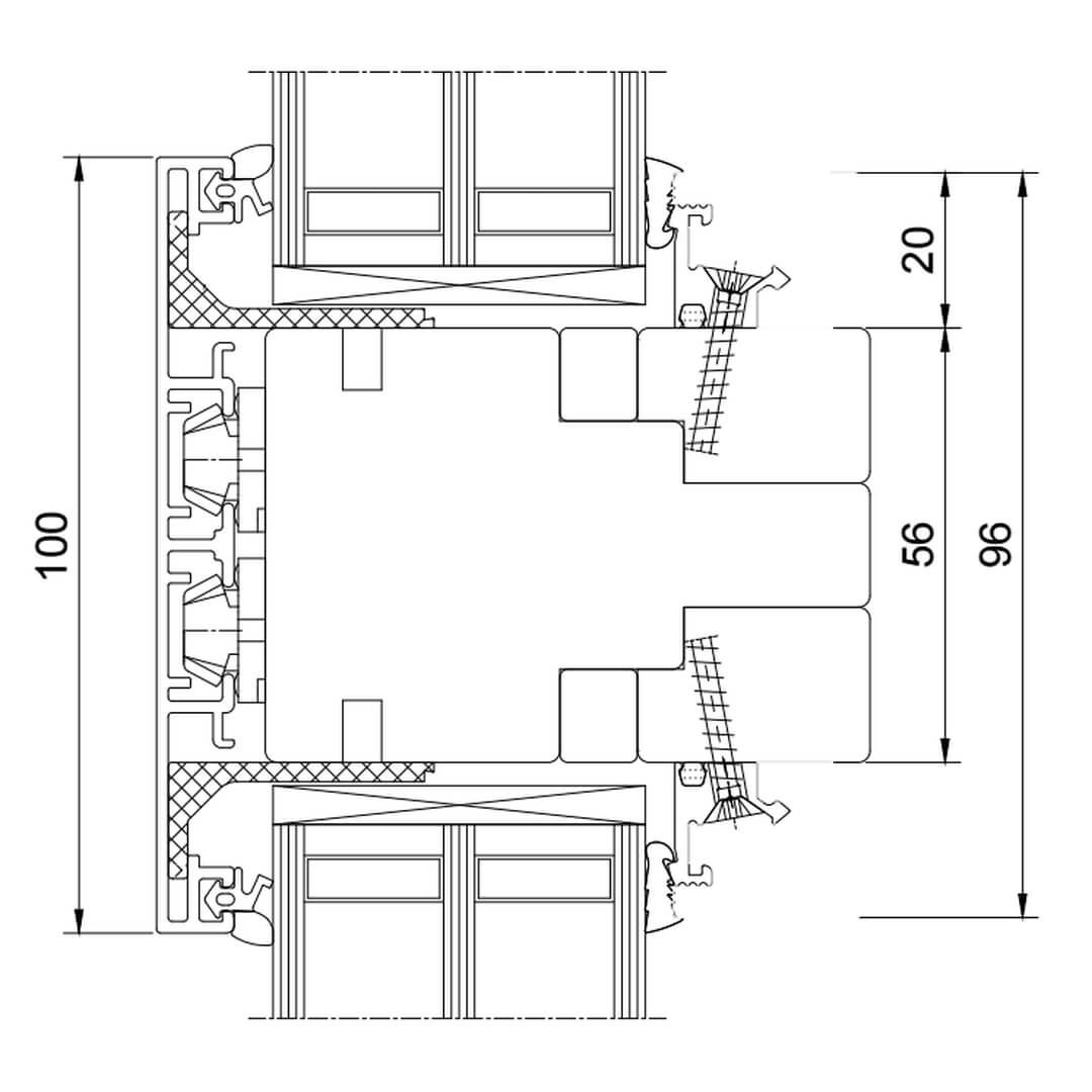
Duoline 78 Fenster mit Standard Falzschnitt beidseitig

Duoline 78 Fenster mit Standard Falzschnitt beidseitig

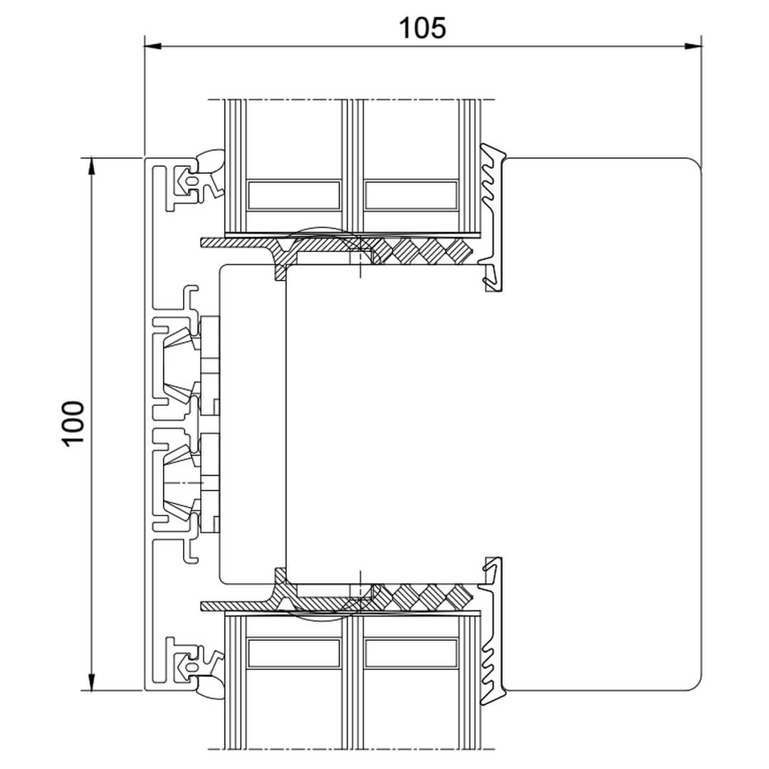
Drutex Duoline 78 Fenster mit ohne Falzschnitt Federprofil

Duoline 78 Fenster mit ohne Falzschnitt

Holz-Aluminium Drutex Duoline 78 mehrflügelig mit vertikalem Pfosten oder Stulp

Drutex Duoline 78 Fenster Dreh-Kipp + Dreh-Kipp

Duoline 78 Fenster 2-flg. Dreh-Kipp + Dreh-Kipp

Drutex Duoline 78 2-flg. Fenster Dreh + Dreh-Kipp (Stulp)

Drutex Duoline 78 2-flg. Fenster Dreh + Dreh-Kipp (Stulp)

Holz-Aluminium Drutex Duoline 78 Ober-/Unterlicht mit horizontalem Pfosten Festverglasung / Dreh-Kipp

Drutex Duoline 68 Fenster Oberlicht Festverglasung Dreh-Kipp

Duoline 68 Fenster Oberlicht Festverglasung + Dreh-Kipp

Drutex Duoline 78 Fenster Oberlicht Dreh-Kipp + Dreh-Kipp

Duoline 78 Fenster Oberlicht Dreh-Kipp + Dreh-Kipp

Holz-Aluminium Fenster Duoline 78 Pfosten-Unterteilungen (Kämpfer)

Drutex Duoline 78 Pfosten Glasteilende Kämpfer-Sprosse 100mm

Duoline 78 Kämpfer-Sprosse 100mm

Drutex Duoline 78 Pfosten Glasteilende Kämpfer-Sprosse 100mm Festverglasung

Duoline 78 Kämpfer-Sprosse 100mm (Festverglasung)

Holz Aluminium Duoline 78 Balkontür

Drutex Duoline 78 Balkontür mit Blendrahmen

Duoline 78 Balkontür mit Blendrahmen

Zusatzprofile für Duoline-78 Querschnitte

Holz-Aluminiumfenster Sprossenarten - Duoline-78

Innenliegende SZR Sprossen / Helima Sprossen

Drutex Softline SZR innenliegende Sprosse 8mm

Innenliegende Sprosse 8mm (SZR)

Drutex Softline SZR innenliegende Sprosse 18mm

Innenliegende Sprosse 18mm (SZR)

Drutex Softline SZR innenliegende Sprosse 26mm

Innenliegende Sprosse 26mm (SZR)

Drutex Softline SZR innenliegende Sprosse 45mm

Innenliegende Sprosse 45mm (SZR)

Glasteilende Sprossen - Kämpfer

Drutex Duoline 78 Kämpfersprosse Detailzeichnung

Duoline 78 Glasteilende Sprosse/Kämpfer

Drutex Duoline 78 Kämpfersprosse Festverglasung Detail

Duoline 78 Festverglasung Kämpfer-Sprosse

Holz-Aluminiumfenster Rahmenverbreiterung

Holz-Aluminiumfenster Kopplungen

Kostenlose Lieferung

Ab einer Bestellung von 10 Fenstern deutschlandweit!

Jetzt Angebot für Holz-Alu-Fenster anfordern

Das könnte Sie auch interessieren:

Holz-Alufenster Duoline-68

Detailzeichnungen Holz-Alufenster Duoline-68

Holz-Alufenster Duoline-68 besitzen eine Bautiefe (Rahmen) von 68mm.

Holz-Alufenster Duoline-88

Detailzeichnungen Holz-Alufenster Duoline-88

Holz-Alufenster Duoline-88 besitzen eine Bautiefe (Rahmen) von 88mm.