Detailzeichnungen Holz-Alufenster Duoline-88

Inhaltsverzeichnis:

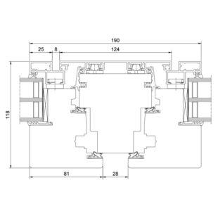
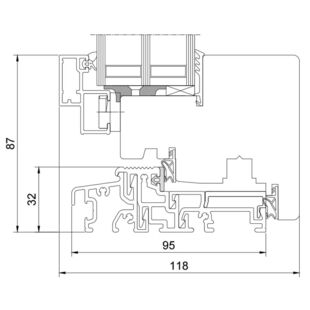
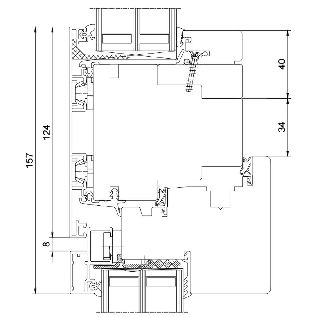
Holz-Aluminium Fensterprofil Drutex Duoline 88 Querschnitte

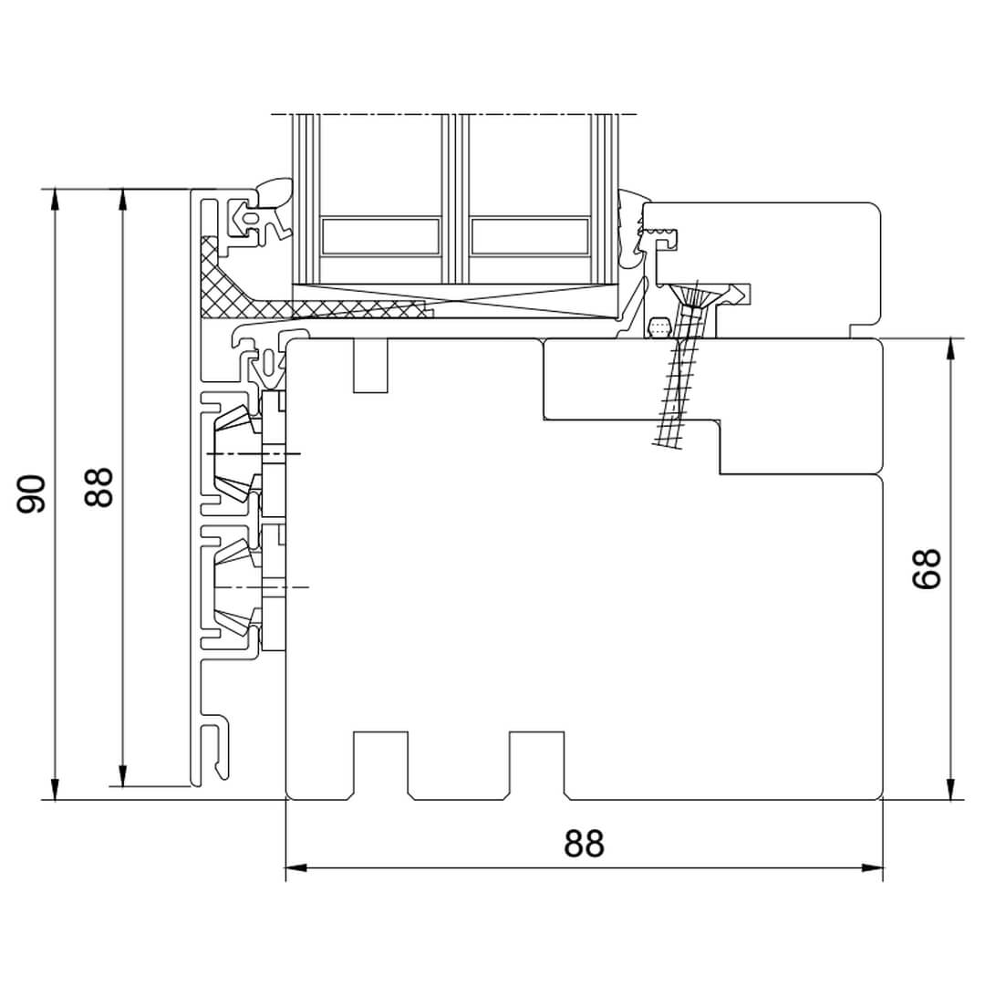
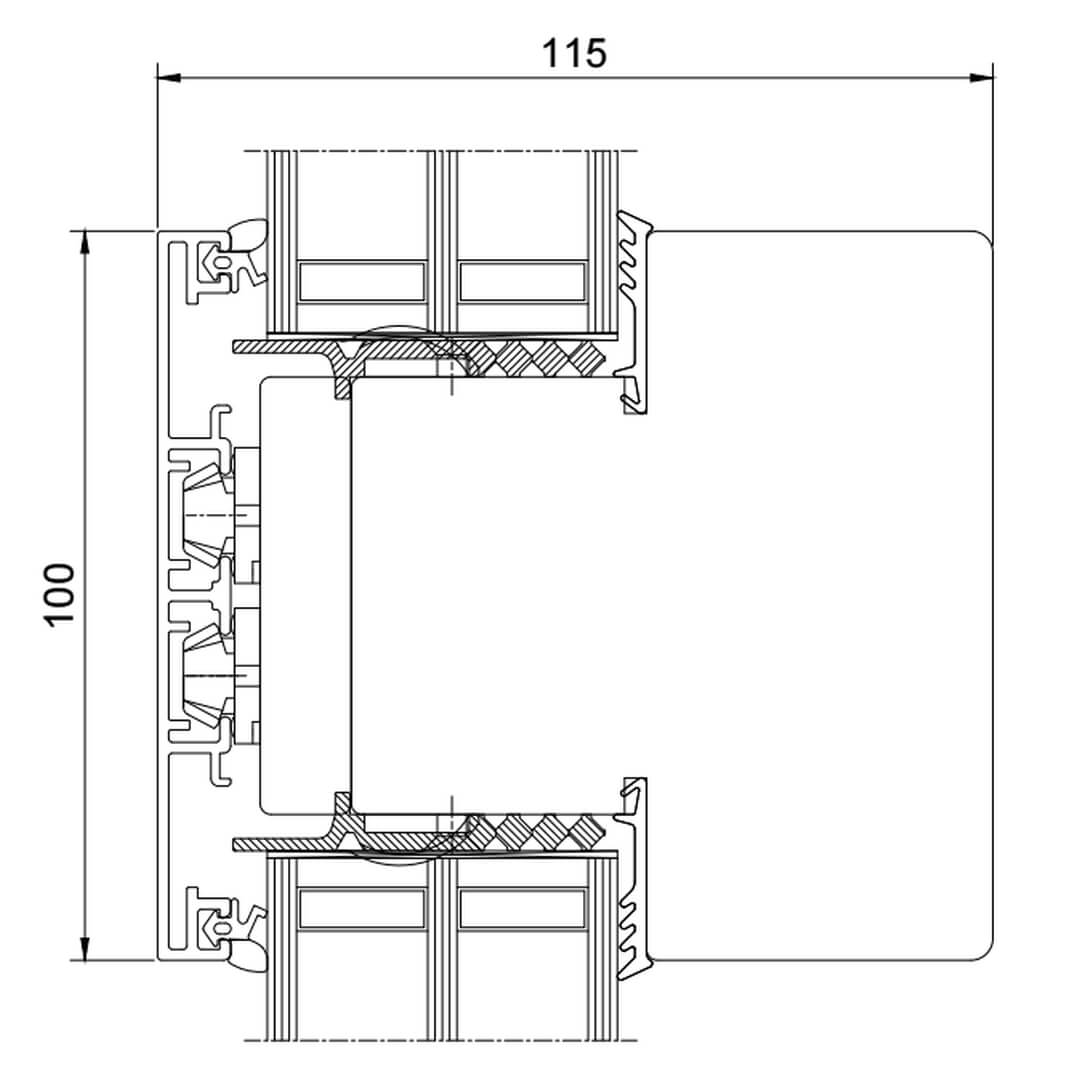
Drutex Duoline 88 Festverglasung oben

Duoline 88 Festverglasung oben

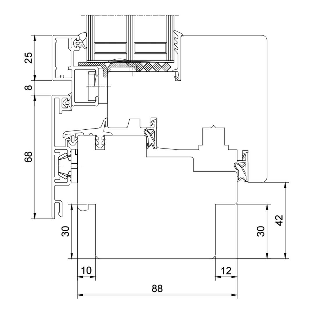
Drutex Duoline 88 Festverglasung unten

Duoline 88 Festverglasung unten

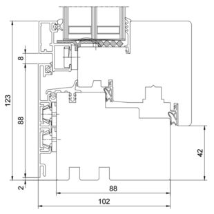
Duoline 88 Fenster mit Standard Falzschnitt beidseitig

Duoline 88 Fenster mit Standard Falzschnitt beidseitig

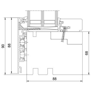
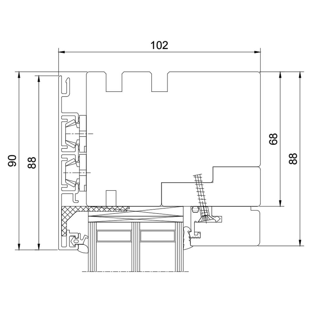
Drutex Duoline 88 Fenster mit ohne Falzschnitt Federprofil

Duoline 88 Fenster mit ohne Falzschnitt

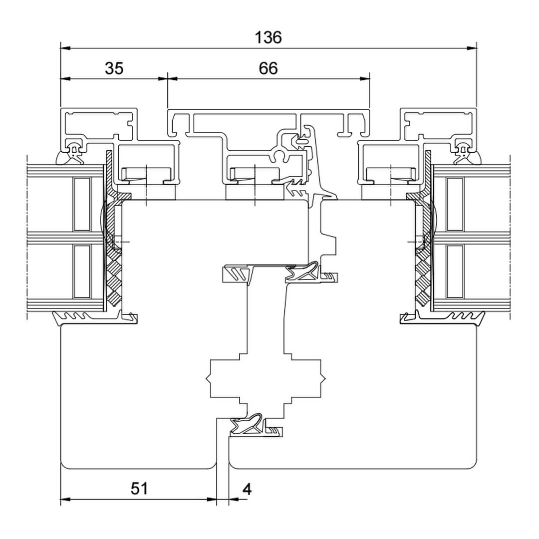
Holz-Aluminium Drutex Duoline 88 mehrflügelig mit vertikalem Pfosten oder Stulp

Drutex Duoline 88 Fenster Dreh-Kipp + Dreh-Kipp

Duoline 88 Fenster 2-flg. Dreh-Kipp + Dreh-Kipp

Drutex Duoline 88 2-flg. Fenster Dreh + Dreh-Kipp (Stulp)

Drutex Duoline 88 2-flg. Fenster Dreh + Dreh-Kipp (Stulp)

Holz-Aluminium Drutex Duoline 88 Ober-/Unterlicht mit horizontalem Pfosten Festverglasung / Dreh-Kipp

Drutex Duoline 88 Fenster Oberlicht Festverglasung Dreh-Kipp

Duoline 88 Fenster Oberlicht Festverglasung + Dreh-Kipp

Drutex Duoline 88 Fenster Oberlicht Dreh-Kipp + Dreh-Kipp

Duoline 88 Fenster Oberlicht Dreh-Kipp + Dreh-Kipp

Holz-Aluminium Fenster Duoline 88 Pfosten-Unterteilungen (Kämpfer)

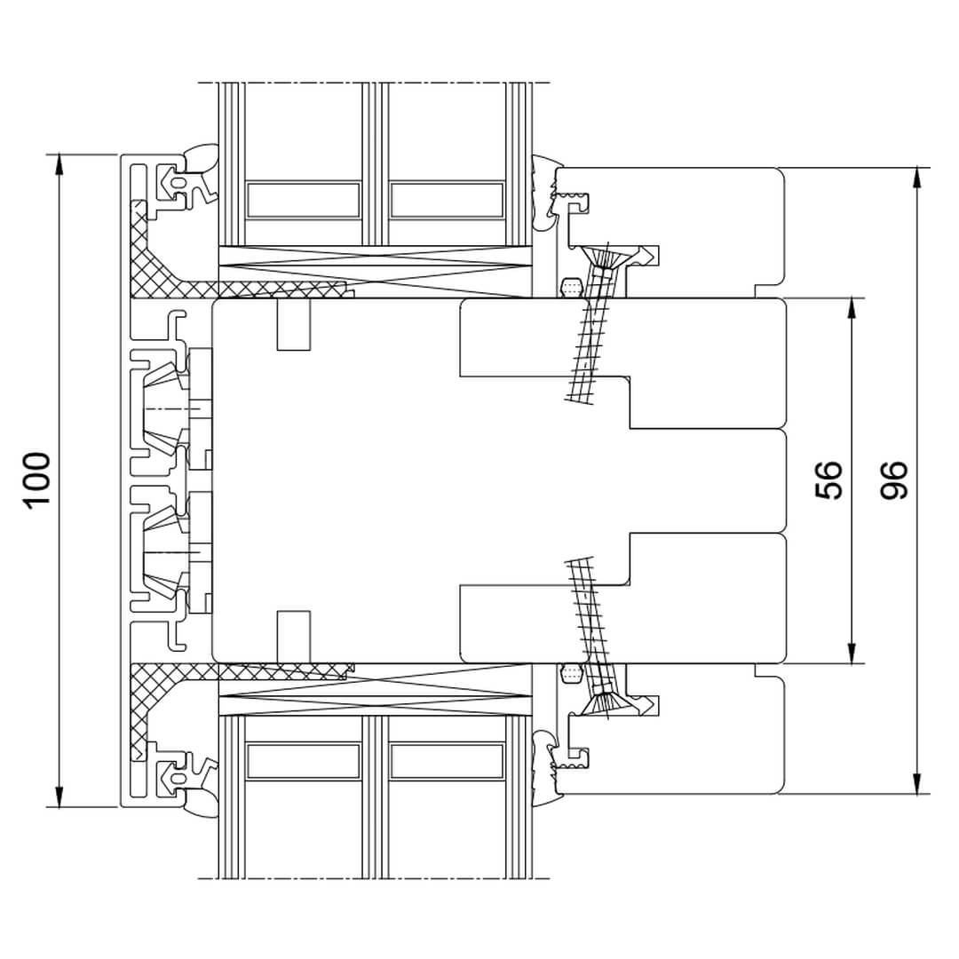
Drutex Duoline 88 Pfosten Glasteilende Kämpfer-Sprosse 100mm

Duoline 88 Kämpfer-Sprosse 100mm

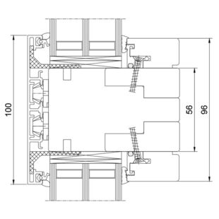
Drutex Duoline 88 Pfosten Glasteilende Kämpfer-Sprosse 100mm Festverglasung

Duoline 88 Kämpfer-Sprosse 100mm (Festverglasung)

Holz Aluminium Duoline 88 Balkontür

Drutex Duoline 88 Balkontür mit Blendrahmen

Duoline 88 Balkontür mit Blendrahmen

Drutex Duoline 88 Balkontür mit Schwelle 32mm

Duoline 88 Balkontür mit Schwelle 32mm

Zusatzprofile für Duoline-88 Querschnitte

Holz-Aluminiumfenster Sprossenarten - Duoline-88

Innenliegende SZR Sprossen / Helima Sprossen

Drutex Softline SZR innenliegende Sprosse 8mm

Innenliegende Sprosse 8mm (SZR)

Drutex Softline SZR innenliegende Sprosse 18mm

Innenliegende Sprosse 18mm (SZR)

Drutex Softline SZR innenliegende Sprosse 26mm

Innenliegende Sprosse 26mm (SZR)

Drutex Softline SZR innenliegende Sprosse 45mm

Innenliegende Sprosse 45mm (SZR)

Glasteilende Sprossen - Kämpfer

Drutex Duoline 88 Pfosten Glasteilende Kämpfer-Sprosse 100mm

Duoline 88 Kämpfer-Sprosse 100mm

Drutex Duoline 88 Pfosten Glasteilende Kämpfer-Sprosse 100mm Festverglasung

Duoline 88 Kämpfer-Sprosse 100mm (Festverglasung)

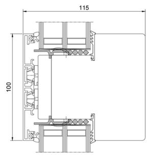
Holz-Aluminiumfenster Rahmenverbreiterung

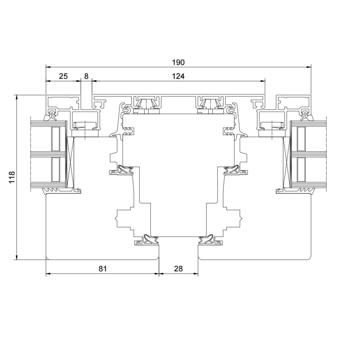
Holz-Aluminiumfenster Kopplungen

Kostenlose Lieferung

Ab einer Bestellung von 10 Fenstern deutschlandweit!

Jetzt Angebot für Holz-Alu-Fenster anfordern

Das könnte Sie auch interessieren:

Holz-Alufenster Duoline-68

Detailzeichnungen Holz-Alufenster Duoline-68

Holz-Alufenster Duoline-68 besitzen eine Bautiefe (Rahmen) von 68mm.

Holz-Alufenster Duoline-78

Detailzeichnungen Holz-Alufenster Duoline-78

Holz-Alufenster Duoline-78 besitzen eine Bautiefe (Rahmen) von 78mm.