Detailzeichnungen aluplast Easy-Slide (Duo-Slide)
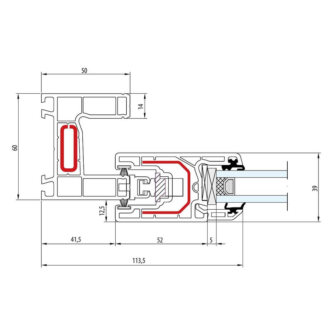
Schiebetürprofil aluplast Easy-Slide (Duo-Slide) Querschnitte
Aluplast Easy-Slide Schiebeflügel - Vertikal
Aluplast Easy-Slide Flügel Fest - Vertikal
Aluplast Easy-Slide Flügel mit Laufwagen - Vertikal
Aluplast Easy-Slide Schiebeflügel - Horizontal
Aluplast Easy-Slide Flügel Treffpunkt - Horizontal
Aluplast Easy-Slide Flügel Fest - Horizontal
Zusatzprofile für aluplast Easy-Slide Querschnitte
Kunststoff Sprossenarten - aluplast Easy-Slide
Innenliegende SZR Sprossen / Helima Sprossen
Innenliegende Sprosse 8mm
Innenliegende Sprosse 18mm
Innenliegende Sprosse 26mm
Innenliegende Sprosse 45mm
Aufgesetzte / Aufgeklebte Sprossen
160376 - aufgesetzte Sprossen - 26mm
160378 - aufgesetzte Sprossen - 46mm
160479 - aufgesetzte Sprossen - 66mm
Kunststoff Rahmenverbreiterung - aluplast Easy-Slide
120220 - Rahmenverbreiterung - 15mm
120242 - Rahmenverbreiterung - 35mm
120221 - Rahmenverbreiterung - 60mm
120223 - Rahmenverbreiterung - 130mm
Kunststoff Kopplungen - aluplast Easy-Slide
120116 - Federkopplung
120224 - H - Kopplung - universal
Kunststoff Abdeckleisten - aluplast Easy-Slide
65025100, 6465050, 65025080, 65025070, 65025050, 65025040, 65025030 - Flachleiste aus Kunststoff Auswahl
120120, 120283 - Flachleiste mit Dichtlippe Auswahl
Hohlkammerprofil Deckleiste Auswahl
73100060, 73080050, 73060040, 73020020 - Winkelprofil aus Kunststoff
120292, 120291 - Winkelprofil aus Kunststoff
120299, 120297, 120289, 120284 - Hohlkammer Winkelprofil aus Kunststoff
Aluplast Fenster und Türen nach Maß
Einfach und bequem Aluplast Fenster und Türen online konfigurieren und bestellen bei fensterblick.de
Das könnte Sie auch interessieren:
Schiebetür aluplast Multi-Slide
Schiebetüren Multi-Slide besitzen je nach Anzahl der Flügel eine Bautiefe (Rahmen) von 80mm oder 170mm.
Detailzeichnungen aluplast Multi-Slide
Schiebetür aluplast Smart-Slide
Schiebetüren Smart-Slide besitzen eine Bautiefe (Rahmen) von 140mm.
Detailzeichnungen aluplast Smart-Slide