Detailzeichnungen Kunststofffenster Drutex Iglo Edge

Kunststofffensterprofil Iglo Edge Querschnitte

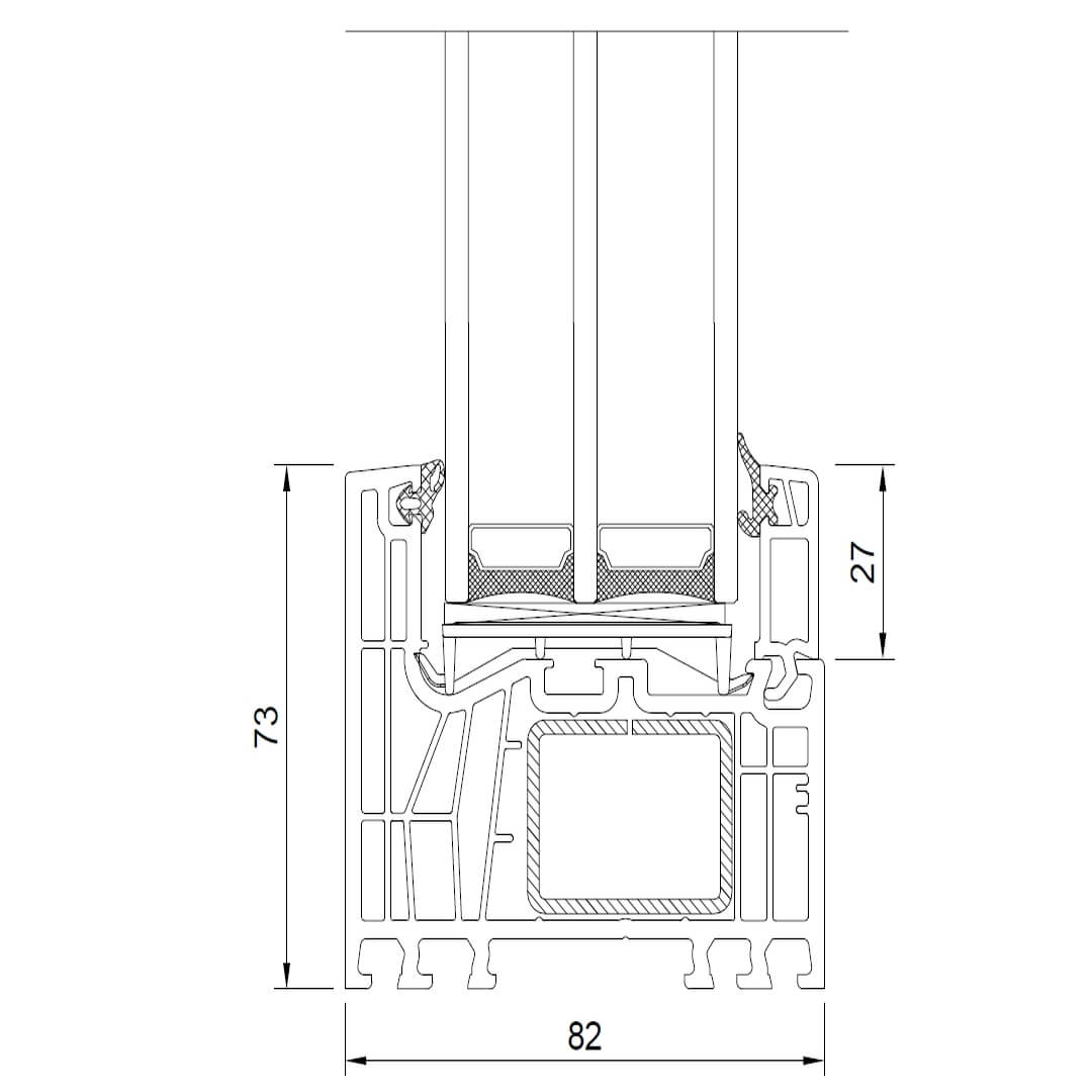
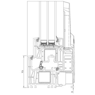
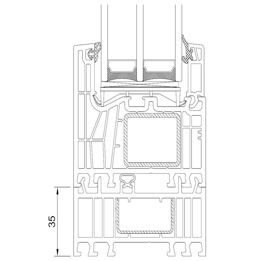
Drutex Iglo Edge - 80001 - Festverglasung 73mm

Iglo Edge - 80001 - Festverglasung 73mm

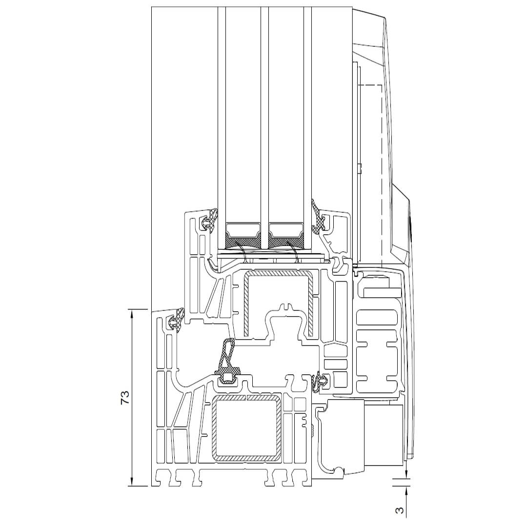
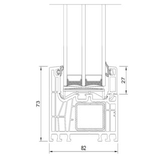
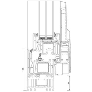
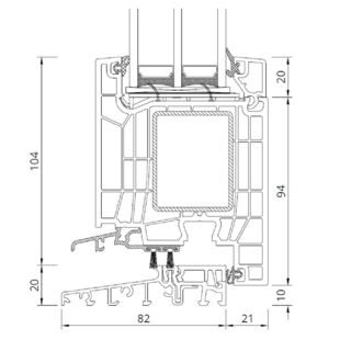
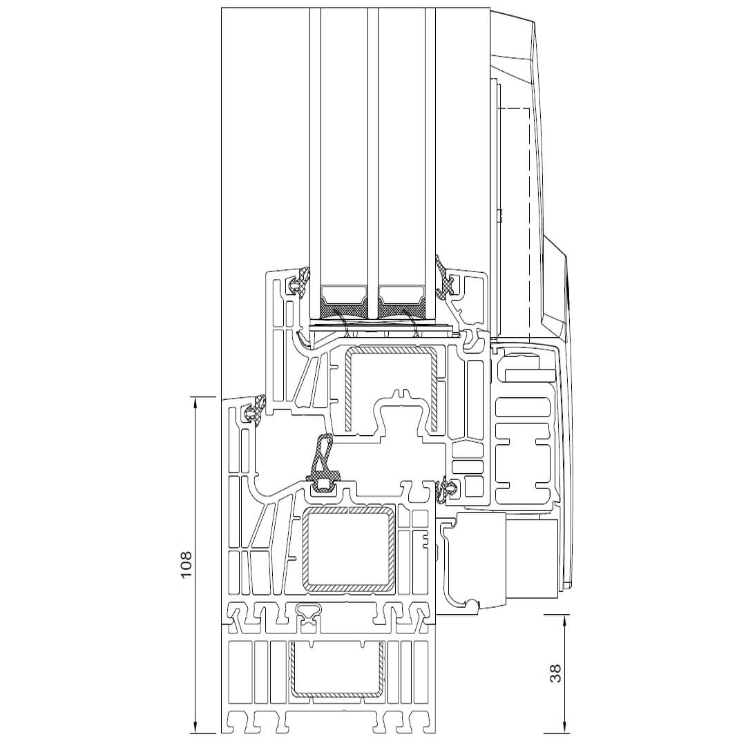
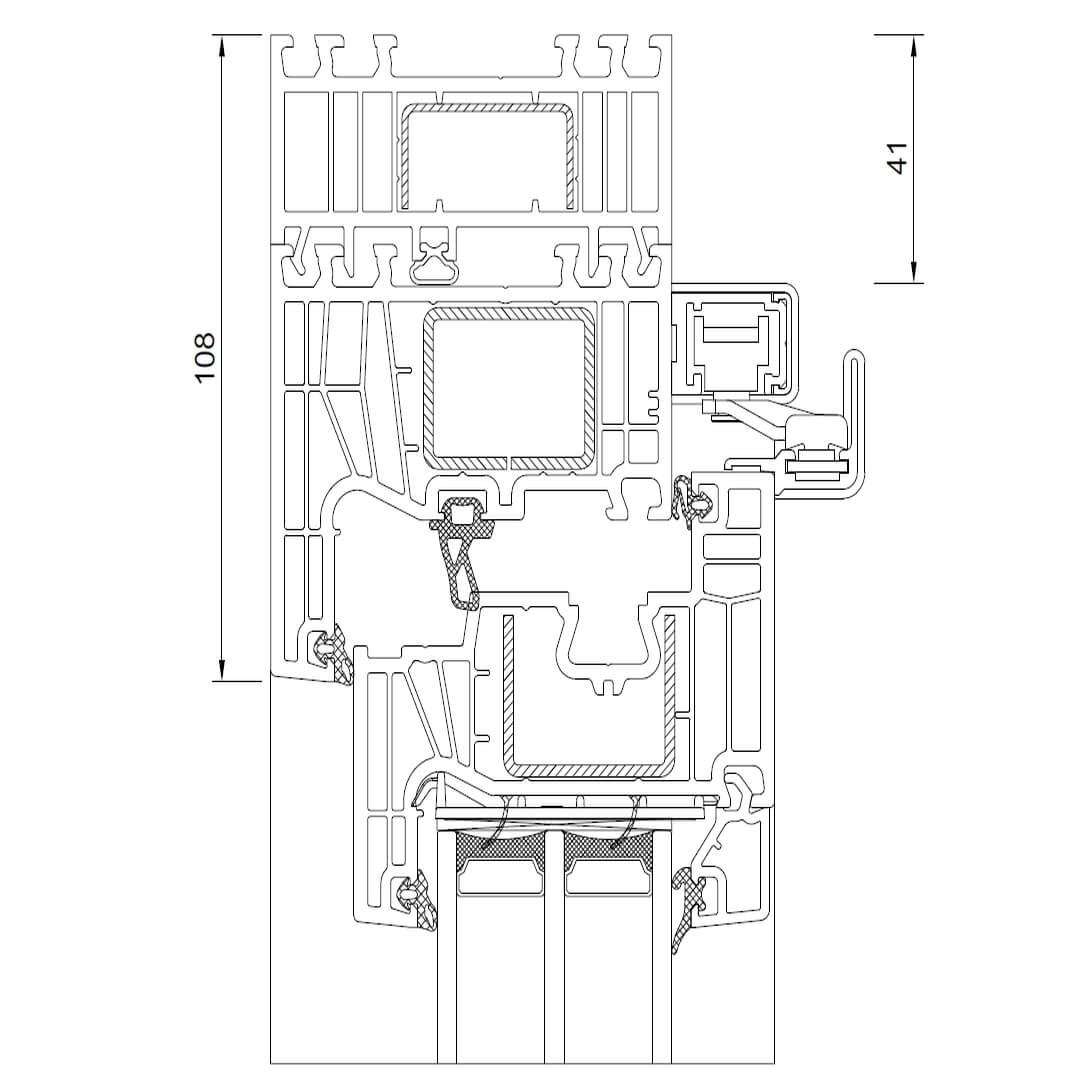
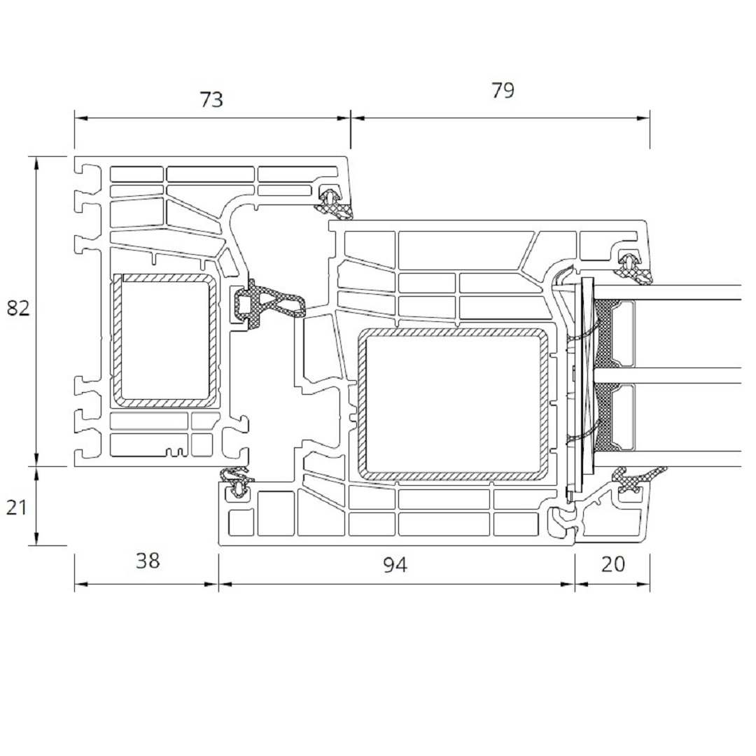
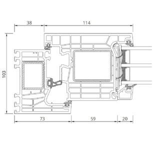
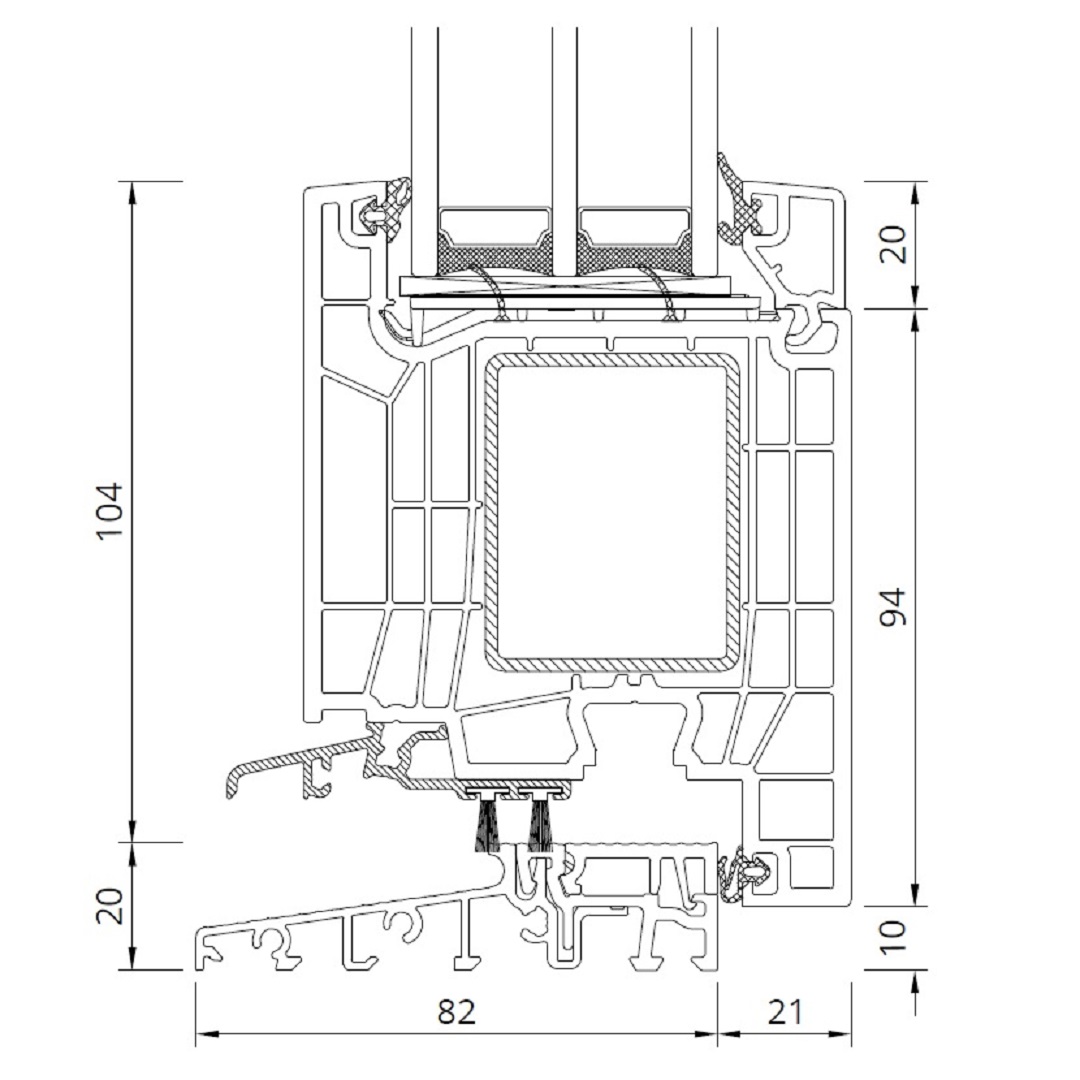
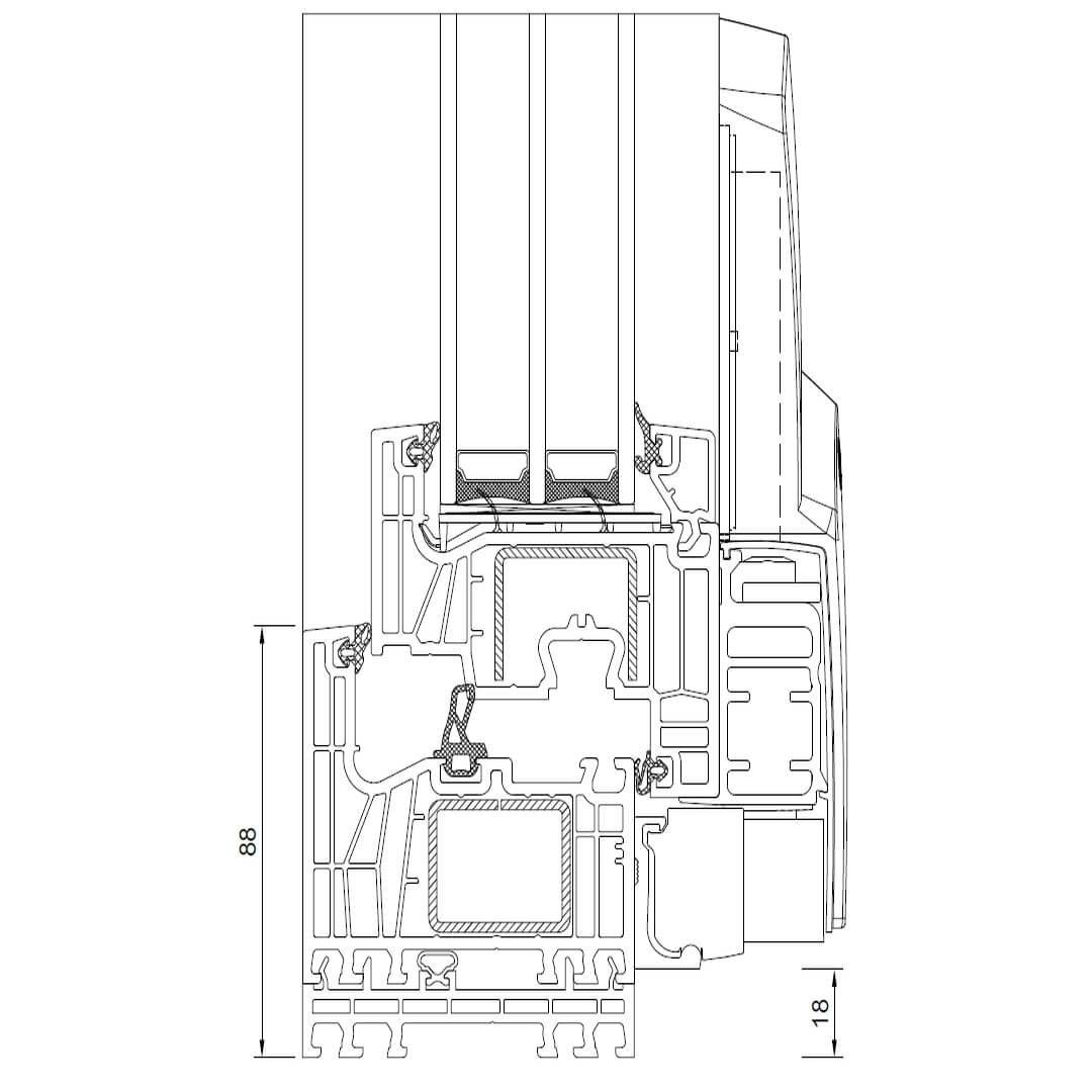
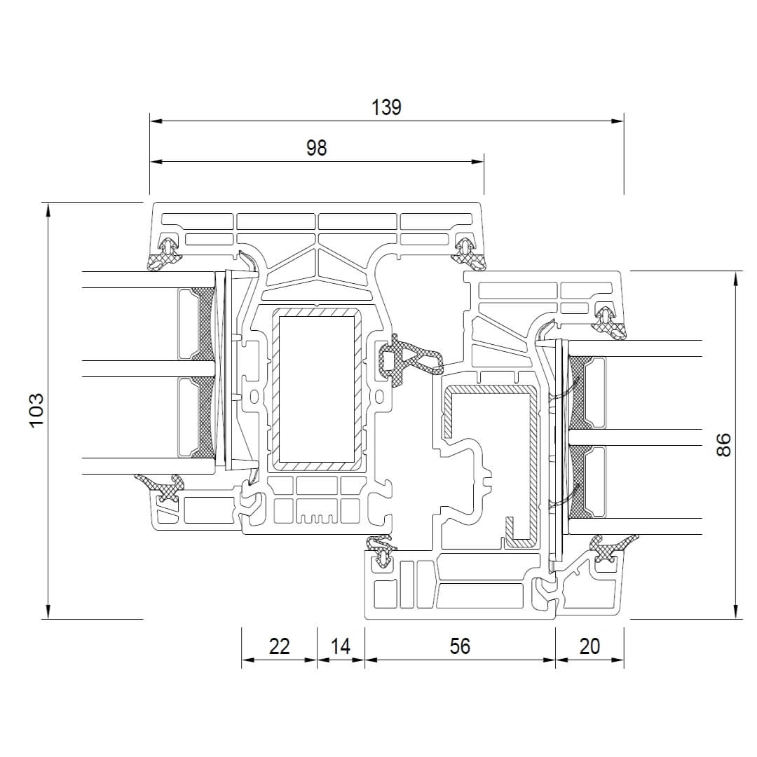
Drutex Iglo Edge - 80001-80013 - Fenster 114mm

Iglo Edge - 80001-80013 - Fenster 114mm

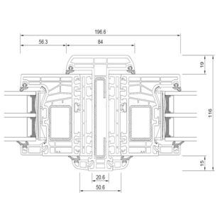
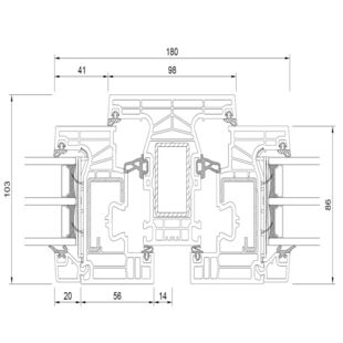
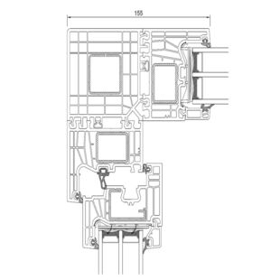
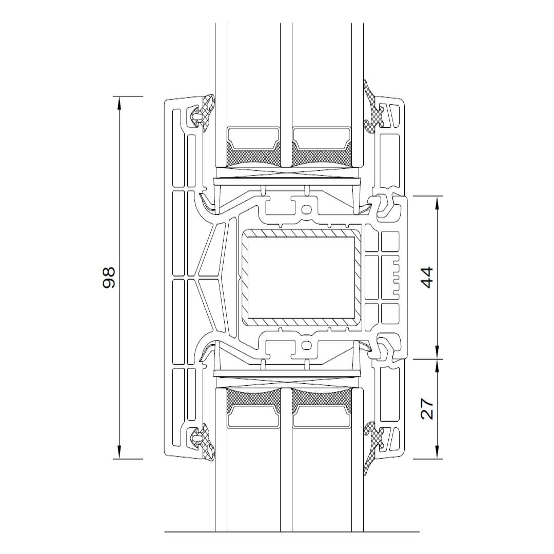
Kunststofffenster Iglo Edge mit Pfosten

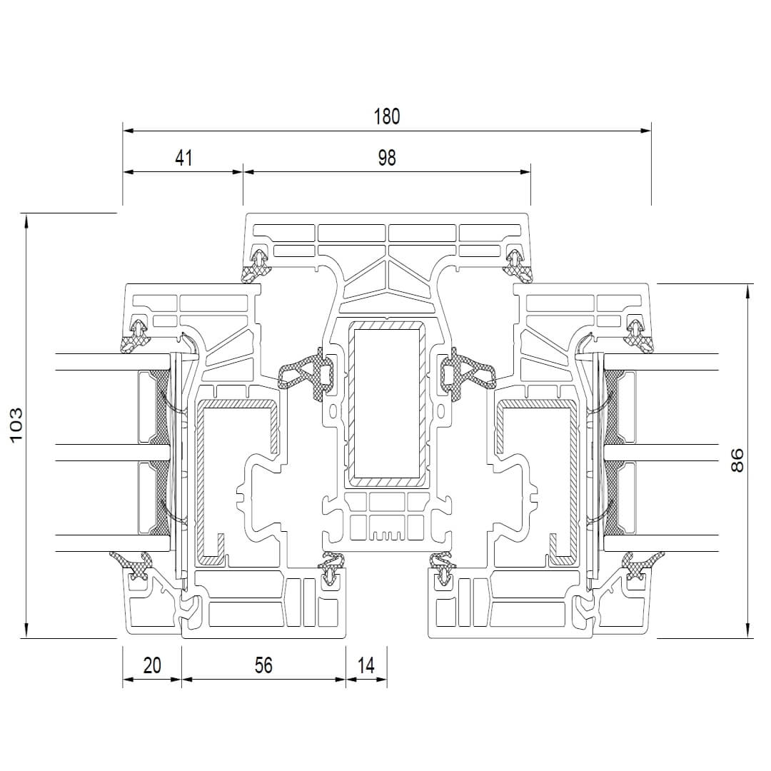
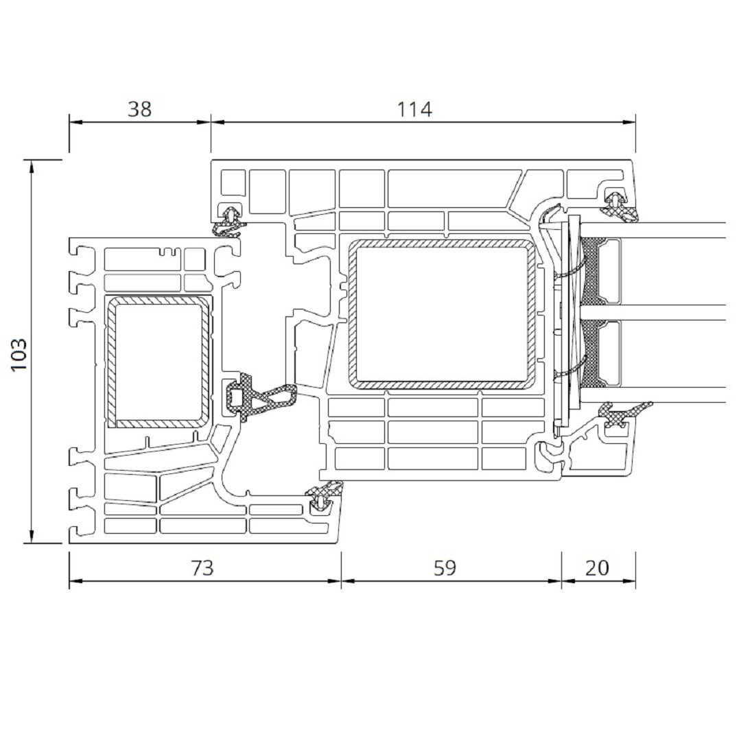
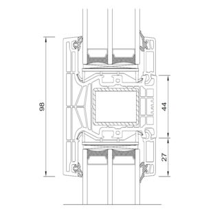
Drutex Iglo Edge - 80021 - Pfosten 98mm

Iglo Edge - 80021 - Pfosten 98mm

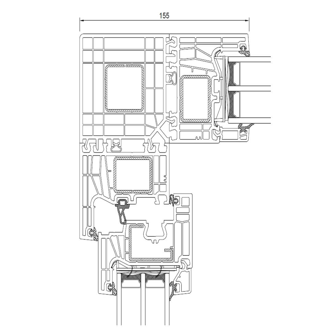
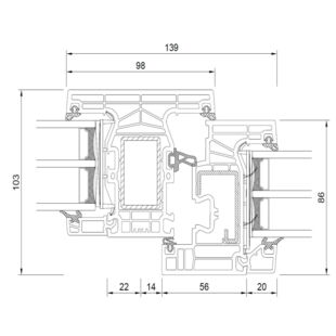
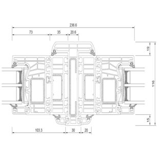
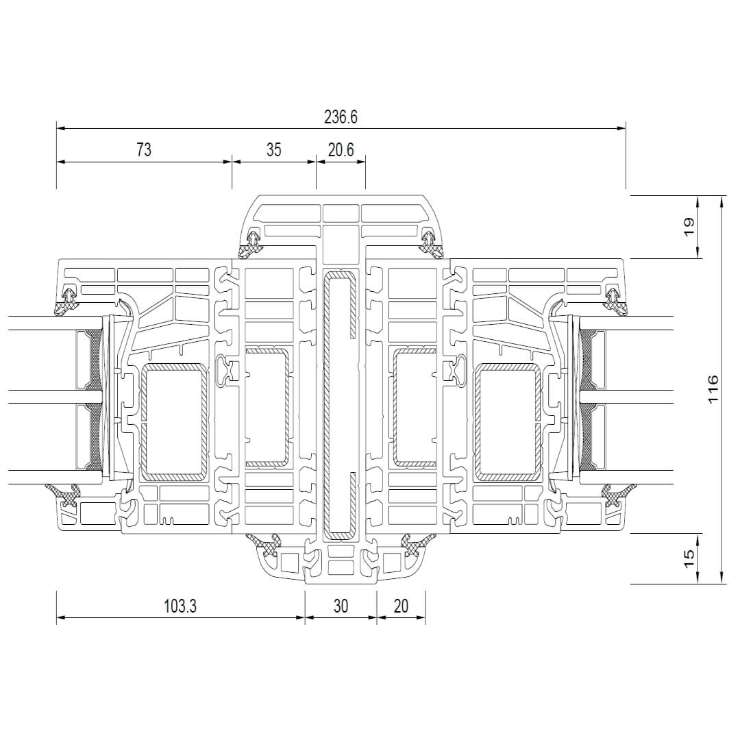
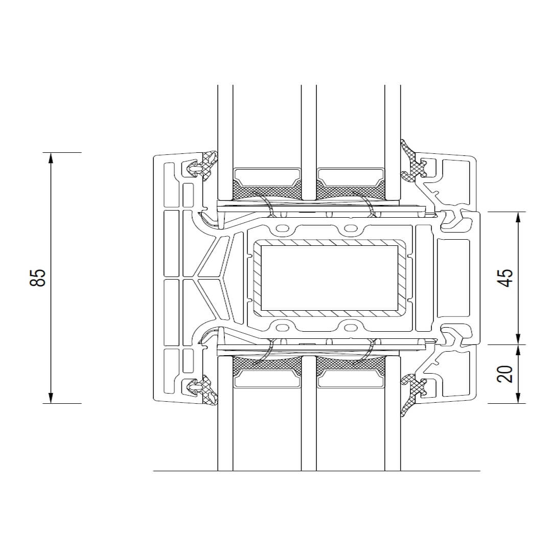
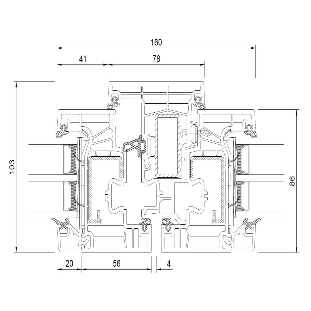
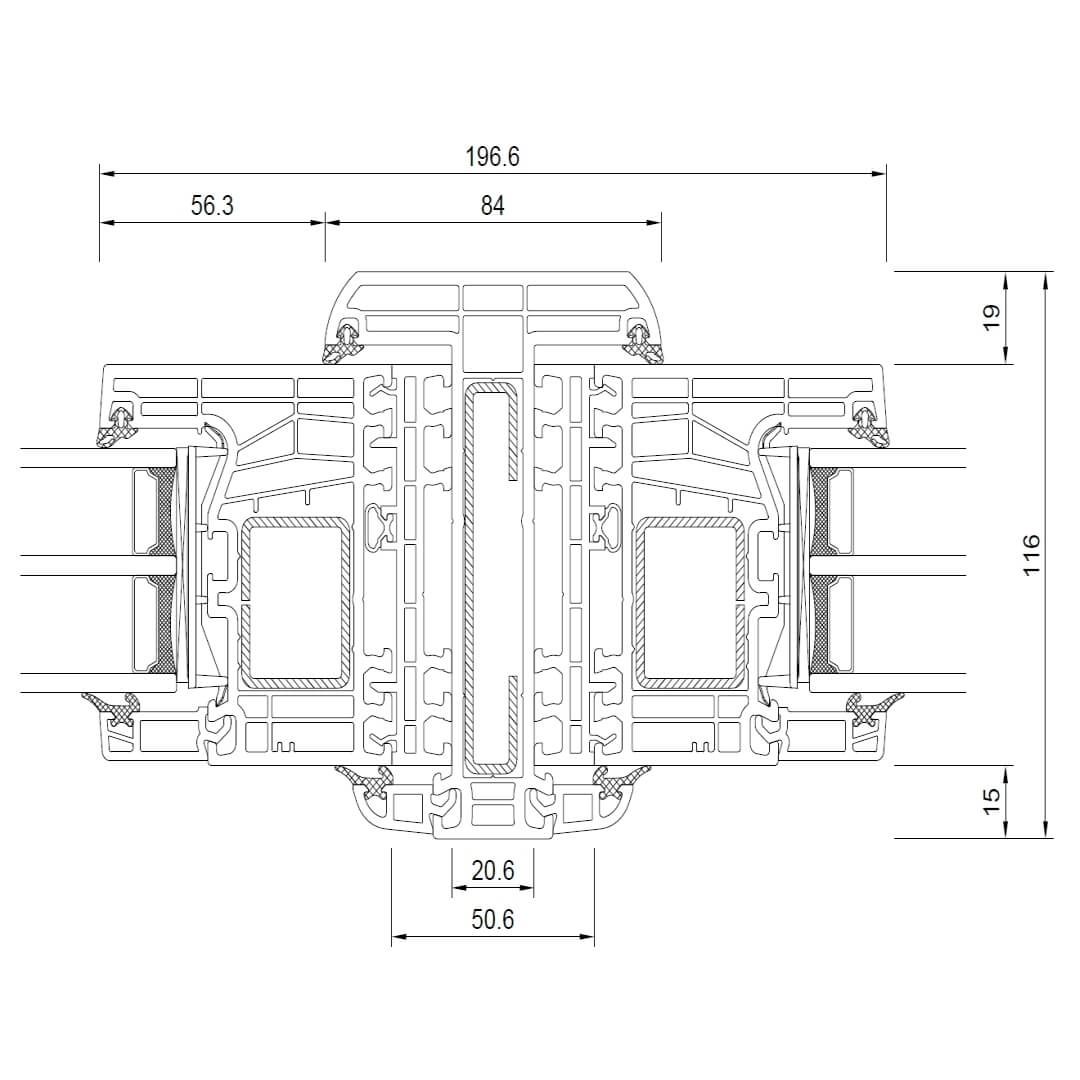
Drutex Iglo Edge - 80021-80013 - Pfosten 98mm Fenster

Iglo Edge - 80021-80013 - Pfosten 98mm Fenster

Drutex Iglo Edge - 80021-80013 - Pfosten 98mm Fenster Dreh-Kipp + Fest

Iglo Edge - 80021-80013 - Pfosten 98mm Fenster Dreh-Kipp + Fest

Kunststofffenster Iglo Edge mit Stulp

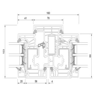
Drutex Iglo Edge - 80029-80013 - Stulp 78mm Fenster

Iglo Edge - 80029-80013 - Stulp 78mm Fenster

Kunststoff Balkontür Igo Edge

Kunststoff Igo Edge PSK Parallel-Schiebe-Kipp-Tür

Drutex Iglo Edge - 80001-80013 - PSK- Tür oben

Iglo Edge - 80001-80013 - PSK- Tür oben

Drutex Iglo Edge - 80001-80013-70103 - PSK- Tür oben RVB 15mm

Iglo Edge - 80001-80013-70103 - PSK- Tür oben mit RVB 15mm

Drutex Iglo Edge - 80001-80013-70100 - PSK- Tür oben RVB 35mm

Iglo Edge - 80001-80013-70100 - PSK- Tür oben mit RVB 35mm

Drutex Iglo Edge - 80001-80013 - PSK- Tür unten

Iglo Edge - 80001-80013 - PSK- Tür unten

Drutex Iglo Edge - 80001-80013-70103 - PSK- Tür unten RVB 15mm

Iglo Edge - 80001-80013-70103 - PSK- Tür unten mit RVB 15mm

Drutex Iglo Edge - 80001-80013-70100 - PSK- Tür unten RVB 35mm

Iglo Edge - 80001-80013-70100 - PSK- Tür unten mit RVB 35mm

Aufsatzrollladen mit Drutex Iglo Energy Parallel-Schiebe-Kipp-Tür PSK-Tür Detail

Beispiel Iglo Energy PSK-Tür mit Aufsatzrollladen mit notwendiger RVB

Kunststoff Haustür Igo Edge

Drutex Iglo Edge Tür innen öffnend - 80001-80033

Iglo Edge Tür innen öffnend - 80001-80033

Drutex Iglo Edge Türschwelle 20mm innen öffnend - 80033

Iglo Edge Türschwelle 20mm innen öffnend - 80033

Drutex Iglo Edge Tür außen öffnend - 80001-80034

Iglo Edge Tür außen öffnend - 80001-80034

Drutex Iglo Edge Türschwelle 20mm außen öffnend - 80034

Iglo Edge Türschwelle 20mm außen öffnend - 80034

Zusatzprofile für Drutex Iglo Edge Querschnitte

Kunststofffenster Sprossenarten

Innenliegende SZR Sprossen / Helima Sprossen

Drutex Iglo SZR Sprosse 8mm

Innenliegende Sprosse 8mm

Drutex Iglo SZR Sprosse 18mm

Innenliegende Sprosse 18mm

Drutex Iglo SZR Sprosse 26mm

Innenliegende Sprosse 26mm

Drutex Iglo SZR Sprosse 45mm

Innenliegende Sprosse 45mm

Aufgesetzte / Aufgeklebte Sprossen

Drutex Iglo aufliegende Sprossen 27mm

Aufgesetzte Sprossen 27mm

Drutex Iglo aufliegende Sprossen 45mm

Aufgesetzte Sprossen 45mm

Drutex Iglo aufliegende Sprosse 65mm

Aufgesetzte Sprossen 65mm

Glasteilende Sprossen - Kämpfer

Drutex Iglo Edge - 80021 - Kämpfer-Sprosse 98mm

Iglo Edge - 80021 - Kämpfer-Sprosse 98mm

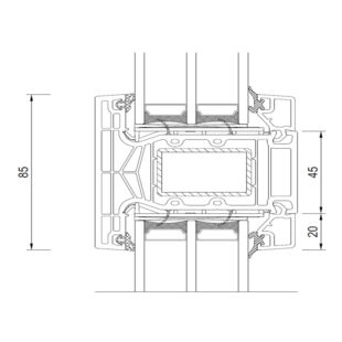
Drutex Iglo Edge - 80022 - Kämpfer-Sprosse 85mm

Iglo Edge - 80022 - Kämpfer-Sprosse 85mm

Kunststofffenster Anschlussprofile

Kunststoff Bankanschlussprofile

Drutex Iglo Energy - 54123 - Bankanschluss mit Dichtung

Iglo Energy - 54123 - Bankanschluss mit Dichtung

Drutex Iglo Energy - 54113 - Bankanschluss mit Dichtung und Zusatz

Iglo Energy - 54113 - Bankanschluss mit Dichtung und Zusatz

Drutex Iglo Energy - 50114 - Bankanschluss 50mm

Iglo Energy - 50114 - Bankanschluss 50mm

Kunststoff Steinbankanschlussprofile

Drutex Steinbankanschluss aus Kunststoff 25mm 120206

Steinbankanschluss 25mm

Drutex Steinbankanschluss aus Kunststoff 30mm 120208

Steinbankanschluss 30mm

Drutex Steinbankanschluss aus Kunststoff 40mm 120209

Steinbankanschluss 40mm

Drutex Steinbankanschluss aus Kunststoff 50mm 120210

Steinbankanschluss 50mm

Kunststoff Anschlussprofile

Drutex Anschlussprofil 15mm 120236

Anschlussprofil 15mm

Drutex Anschlussprofil 20mm L01350200

Anschlussprofil 20mm

Drutex Anschlussprofil 30mm 50117

Anschlussprofil 30mm

Drutex Anschlussprofil 50mm L01100500

Anschlussprofil 50mm

Drutex Iglo Anschlussprofil NL 50115

Niederländisches Anschlussprofil

Kunststofffenster Rahmenverbreiterung

Drutex Iglo Edge - 70103 - Rahmenverbreiterung 15mm

Iglo Edge - 70103 - Rahmenverbreiterung 15mm

Drutex Iglo Edge - 70100 - Rahmenverbreiterung 35mm

Iglo Edge - 70100 - Rahmenverbreiterung 35mm

Drutex Iglo Edge - 70101 - Rahmenverbreiterung 60mm

Iglo Edge - 70101 - Rahmenverbreiterung 60mm

Drutex Iglo Edge - 70102 - Rahmenverbreiterung 100mm

Iglo Edge - 70102 - Rahmenverbreiterung 100mm

Kunststofffenster Kopplungen

Drutex Iglo Edge - 50119 Federkopplung 0mm

Iglo Edge - 50119 Federkopplung 0mm

Drutex Iglo Edge - 50110 H-Kopplung 2mm

Iglo Edge - 50110 H-Kopplung 2mm

Drutex Iglo Edge - 80001-50124 Fest Kopplung 11mm

Iglo Edge - 50124 Kopplung 11mm

Drutex Iglo Edge - 80001-50124 Fest Kopplung mit Stahl 11mm

Iglo Edge - 50124 Kopplung mit Stahl 11mm

Drutex Iglo Edge - 80001-50111 Kopplung mit Stahl+Verstärkung außen 11mm

Iglo Edge - 50111 Kopplung mit Stahl+Verstärkung außen 11mm

Drutex Iglo Edge - 50111 - Statische Kopplung mit Verstärkung beidseitig 11mm

Iglo Edge - 50111 - Statische Kopplung mit Verstärkung beidseitig 11mm

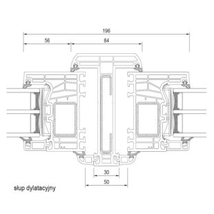
Drutex Iglo Edge - 70118 - Statische Kopplung mit Dilation-Pfosten (Dehnungsprofil)

Iglo Edge - 70118 - Statische Kopplung mit Dilation-Pfosten (Dehnungsprofil)

Drutex Iglo Edge - 70118-70103 - Statische Kopplung mit 15mm RVB

Iglo Edge - 70118-70103 - Statische Kopplung mit 15mm RVB

Drutex Iglo Edge - 70118-70100 - Statische Kopplung mit 35mm RVB

Iglo Edge - 70118-70100 - Statische Kopplung mit 35mm RVB

Kopplung von Eck-Elementen - 90° und Variabel

Drutex Iglo Edge - 70122 - Eckkopplung 90°

Iglo Edge - 70122 - Eckkopplung 90°

Drutex Iglo Edge - 50120 - Eckkopplung Variabel 90°

Iglo Edge - 50120 - Eckkopplung Variabel 90°

Drutex Iglo Edge - 50120 - Eckkopplung Variabel 180°

Iglo Edge - 50120 - Eckkopplung Variabel 180°

Verglasungsbeispiele - Glasleisten Iglo Edge

Verglasungsbeispiele - Glasleisten Iglo Edge Festverglasung

Drutex Iglo Edge - 70948A - Festverglasung  Glasstärke 50mm

Iglo Edge - 70948A - Festverglasung Glasstärke 50mm

Drutex Iglo Edge - 70952A - Festverglasung Glasstärke 54mm

Iglo Edge - 70952A - Festverglasung Glasstärke 54mm

Verglasungsbeispiele - Glasleisten Iglo Edge Flügel

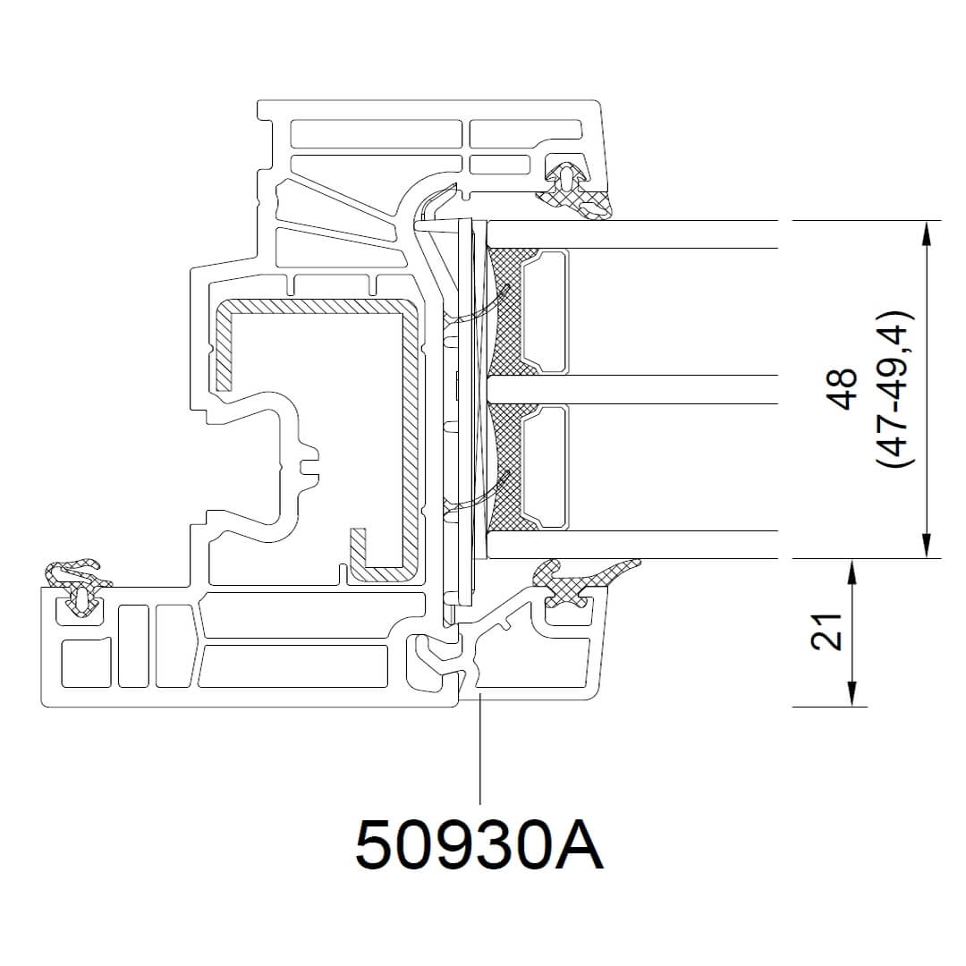
Drutex Iglo Edge - 50930A - Flügel Glasstärke 48mm

Iglo Edge - 50930A - Flügel Glasstärke 48mm

Drutex Iglo Edge - 50934A - Flügel Glasstärke 52mm

Iglo Edge - 50934A - Flügel Glasstärke 52mm

Drutex Iglo Edge - 50940A - Flügel Glasstärke 58mm

Iglo Edge - 50940A - Flügel Glasstärke 58mm

Drutex Iglo Edge - 50940A - Flügel Glasstärke 58mm - 4-fach Verglasung

Iglo Edge - 50940A - Flügel Glasstärke 58mm - 4-fach Verglasung

Kunststoff Abdeckleisten

Drutex Deckleisten mit Hohlkammerprofil Auswahl

Hohlkammerprofil Deckleiste Auswahl

Drutex Flachleisten mit Dichtlippe Auswahl

Flachleiste mit Dichtlippe Auswahl

Drutex Flachleisten aus Kunststoff Auswahl

Flachleiste aus Kunststoff Auswahl

Drutex Winkelprofile aus Kunststoff Auswahl

Winkelprofil aus Kunststoff Auswahl

Kunststofffenster mit Aufsatzrollladen

Drutex Aufsatzrollladen 170mm seitliche Revision

Aufsatzrollladen 170mm Revision Seite

Drutex Aufsatzrollladen 170mm untere Revision

Aufsatzrollladen 170mm Revision Unten

Aufsatzrollladen 215mm mit Iglo Energy Fenster Revision von der Seite

Aufsatzrollladen 215mm Revision von der Seite

Aufsatzrollladen 215mm mit Iglo Energy Fenster Revision von Unten

Aufsatzrollladen 215mm Revision von Unten

Aufsatzrollladen 215mm mit Iglo Energy Fenster und Insektenschutz Außen

Aufsatzrollladen 215mm mit Insektenschutzgitter Außen

Aufsatzrollladen 215mm mit Iglo Energy Fenster und Insektenschutz Außen

Aufsatzrollladen 215mm mit Insektenschutzgitter Innen

Einseitige Führungsschiene am Iglo Energy Profil

Einseitige Führungsschiene für Aufsatzrollladen am Iglo Energy Profil

Einseitige Führungsschiene mit Insektenschutz am Iglo Energy Profil

Einseitige Führungsschiene mit Insektenschutz am Iglo Energy Profil

Beidseitige Führungsschiene für Aufsatzrollladen am Iglo Energy Profil

Beidseitige Führungsschiene für Aufsatzrollladen am Iglo Energy Profil

Beidseitige Führungsschiene und Insektenschutz am Iglo Energy Profil

Beidseitige Führungsschiene mit Insektenschutz am Iglo Energy Profil

Kostenlose Lieferung

Ab einer Bestellung von 10 Fenstern deutschlandweit!

Jetzt Angebot für Kunststofffenster anfordern

Das könnte Sie auch interessieren:

Kunststofffenster Iglo 5

Detailzeichnungen Kunststofffenster Iglo 5

Kunststofffenster Iglo 5 besitzen eine Bautiefe (Rahmen) von 70mm.

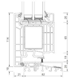
Kunststofffenster Iglo Energy

Detailzeichnungen Kunststofffenster Iglo Energy

Kunststofffenster Iglo Energy besitzen eine Bautiefe (Rahmen) von 82mm.