Kunststofffenster Iglo 5 mit Renovationsrahmen

Renovierungsfenster

Bei einem Renovierungsfenster handelt es sich um ein sehr zeit- und kostensparendes Kunststofffenster. Dabei werden die Flügel des alten Fensters herausgenommen. Der Blendrahmen dient als tragendes Element für das neue Fenster. Der Blendrahmen des neuen Fensters ist sehr schmal und wird einfach auf den alten Blendrahmen aufgesetzt. Der neue Blendrahmen verfügt über eine Abdeck-Flosse, die den alten Blendrahmen einfach abdeckt. Diese Montage-Art wird häufig im italienischen & französischen Sprachraum angewendet.

Fenster schnell Renovieren ohne Aufwand

Kunststofffenster mit Renovierungsrahmen
Kunststofffenster mit Renovationsrahmen

Wenn die alten Fenster abgenutzt sind, müssen diese in der Regel ausgetauscht werden. Viele Nutzer verbinden jedoch damit einen hohen Aufwand an Zeit und Kraft sowie die Entstehung von viel Schmutz und Bauschutt. Denn bei einem Austausch muss das alte Fenster mühevoll ausgehängt und ausgestemmt werden.

Mit innovativen Renovierungsrahmen müssen Sie sich darüber keine Gedanken mehr machen. Ein Renovierungsfenster besteht genau wie gängige Fenster aus einem Mehrkammer-Profil. Der einzige Unterschied liegt darin, dass das Renovationsfenster einfach auf den alten Blendrahmen aufgesetzt wird. Der Blendrahmen des alten Fensters muss somit nicht aufwendig demontiert werden.

Deshalb wird das Fenster auch oft als Sanierungsfenster oder Schnellaustauschfenster bezeichnet. Das Renovierungsfenster stellt für viele Nutzer eine zeit- und kostensparende Lösung dar. Kosten für aufwendige Mauer-, Putz-, und Malerarbeiten können damit gespart werden. Zudem können Sie ganz einfach eine neue Fensterfarbe verwenden.

Alternativen zum Renovierungsfenster in verschiedenen Materialien

Vor- und Nachteile des Renovierungsfensters

  • Kunststoff ist langlebig, witterungsbeständig und pflegeleicht
  • Weniger Folgearbeiten, wie Mauer-, Brech- oder Putzarbeiten
  • Die Entsorgung von Bauschutt fällt aus
  • Der Fassaden-Putz sowie die Böden bleiben sauberer
  • Schneller Austausch des Fensters
  • Individuelles Design und freie Farbauswahl
  • Die Glasfläche des Fensters verkleinert sich um wenige Zentimeter
  • Der alte Blendrahmen ist eventuell undicht und nicht wärmedämmend
  • Die Fensterflügel des alten Fensters müssen meist dennoch entsorgt werden

Renovierungsfenster nach Maß

Jetzt einfach Renovierungsfenster günstig online anfragen und bestellen bei fensterblick.de

Drutex Renovierungs-Profile

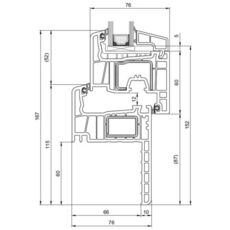
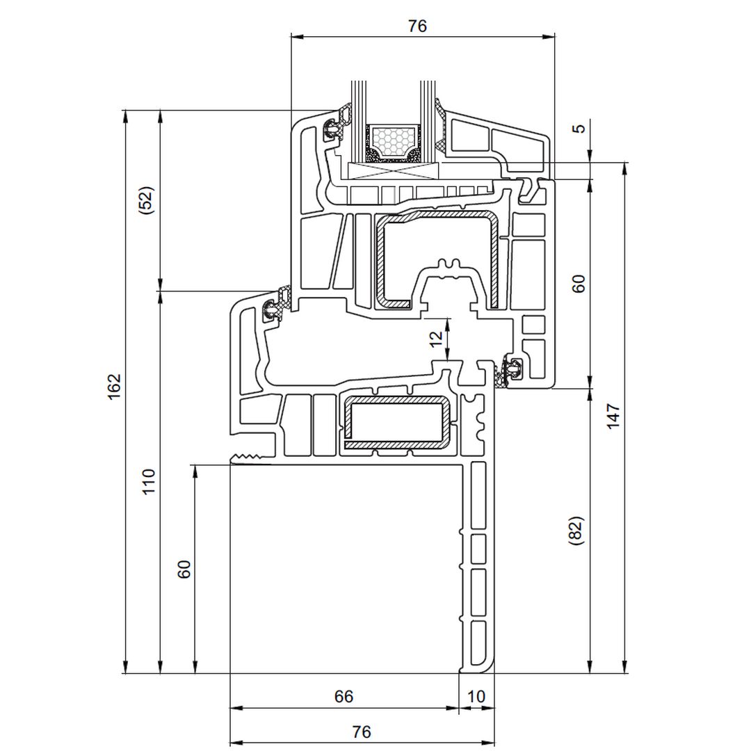
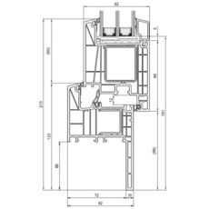
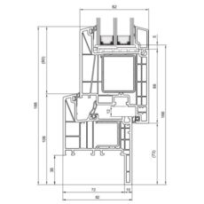
Kunststofffenster Iglo 5 Renovationsrahmen 50004

Iglo 5 Renovationsrahmen 50004

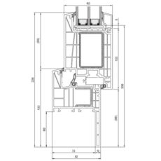
Kunststofffenster Iglo 5 Renovationsrahmen 50005

Iglo 5 Renovationsrahmen 50005

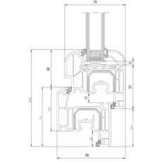
Kunststofffenster Iglo Energy Renovationsrahmen 70004

Iglo Energy Renovationsrahmen 70004

Fenster Iglo 5 Renovationsrahmen 50004 Fest

Iglo 5 Renovationsrahmen 50004 Fest

Fenster Iglo 5 Renovationsrahmen 50005 Fest

Iglo 5 Renovationsrahmen 50005 Fest

Fenster Iglo Energy Renovationsrahmen 70004 Fest

Iglo Energy Renovationsrahmen 70004 Fest

Aluplast Renovierungs-Profile

Aluplast IDEAL 4000 Profile:

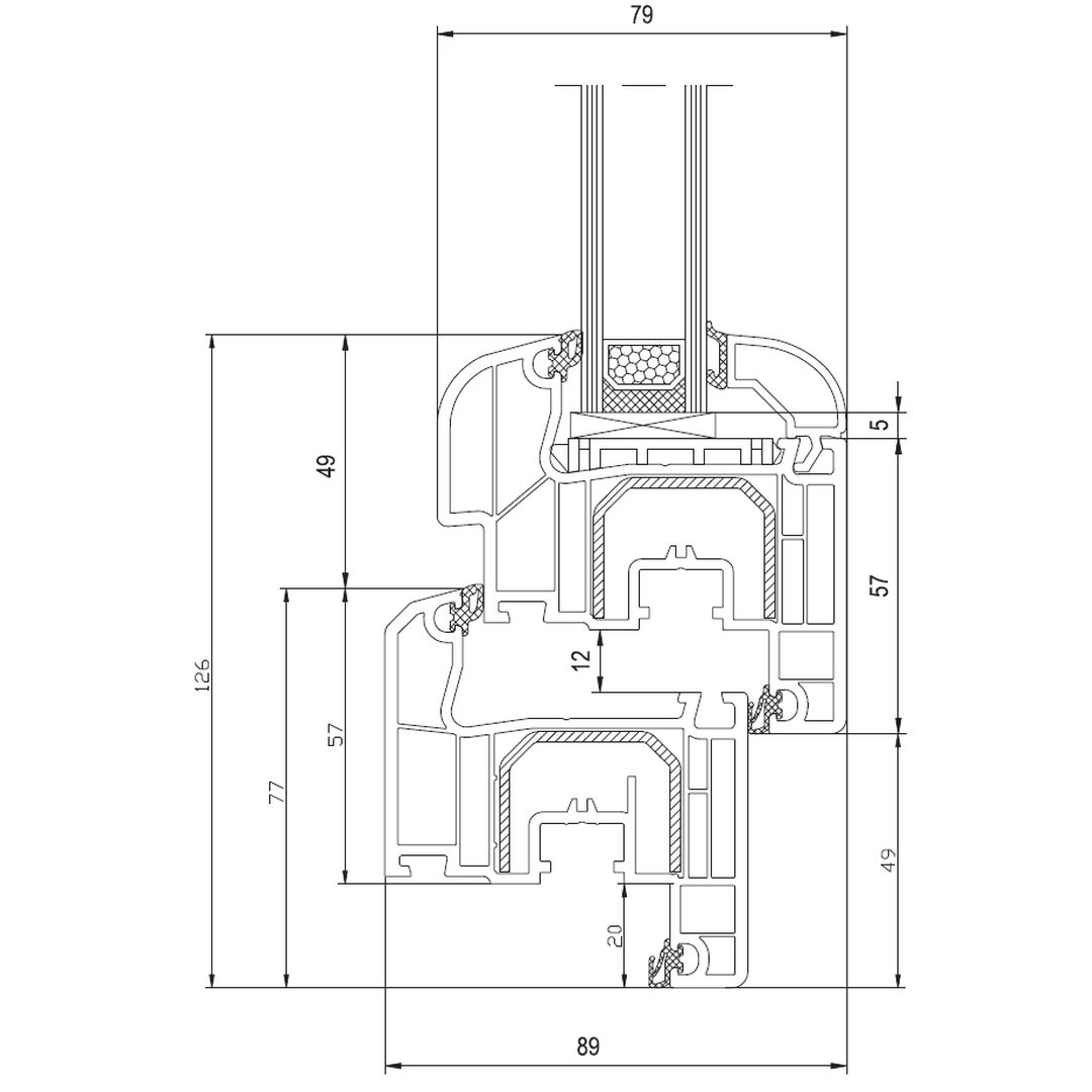
Aluplast IDEAL 4000 italienisches Reno-Profil in Round-Line

Ideal 4000 Reno 40mm (Round-Line)

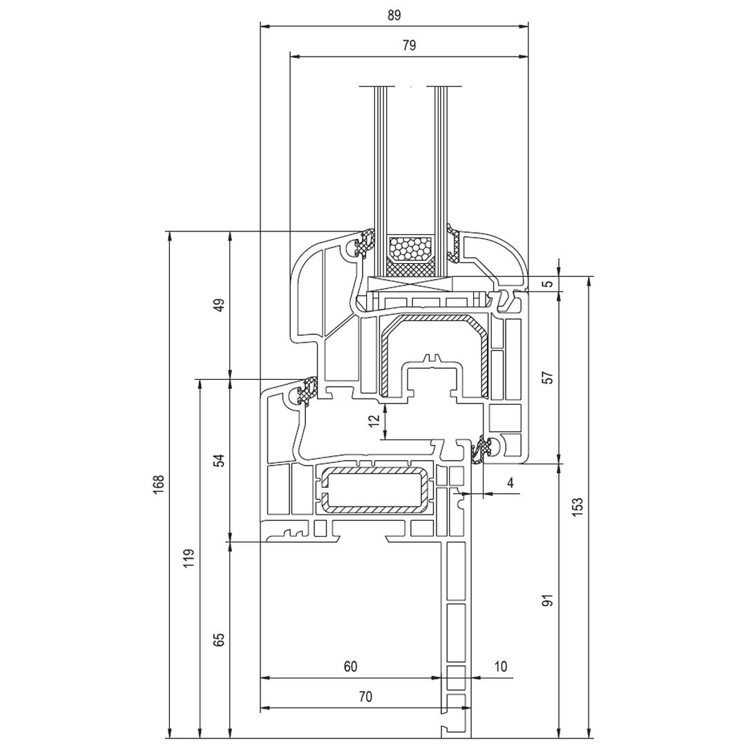
Aluplast IDEAL 4000 italienisches Reno-Profil in Soft-Line

Ideal 4000 Reno 40mm (Soft-Line)

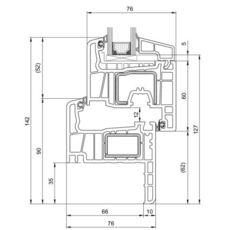
Aluplast IDEAL 4000 französisches Reno-Profil in Round-Line

Ideal 4000 Reno 65mm (Round-Line)

Aluplast IDEAL 5000 Profile:

Aluplast IDEAL 5000 Reno-Profil 65 mit 2-fach Verglasung

Reno-Profil 65 mit 2-fach Verglasung (Soft-line)

Aluplast IDEAL 5000 Reno-Profil 65 Round Line

Reno-Profil 65 mit 2-fach Verglasung (Round Line)

Aluplast IDEAL 5000 Reno-Profil 65 mit 3-fach Verglasung

Reno-Profil 65 mit 3-fach Verglasung

Salamander Renovierungs-Profile

Streamline 76 Profile:

Salamander Streamline 76 mit Reno Classic Profil in 2-fach Verglasung

Reno Classic Profil mit 2-fach Verglasung

Salamander Streamline 76 mit Reno Classic Profil in 3-fach Verglasung

Reno Classic Profil mit 3-fach Verglasung

Salamander Streamline 76 in Reno Round Profil mit 2-fach Verglasung

Reno Round Profil mit 2-fach Verglasung

Salamander Streamline 76 in Reno Round Profil mit 3-fach Verglasung

Reno Round Profil mit 3-fach Verglasung

Renovierungs-Profile aus Aluminium

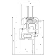
Alu-Fenster MB 60 in Reno-Profil

Reno-Profil MB 60

Alu-Fenster MB 70 in Reno-Profil

Reno-Profil MB 70

Alu-Fenster MB 86 in Reno-Profil

Reno-Profil MB 86

Alu-Fenster MB Ferroline in Reno-Profil

Reno-Profil MB Ferroline

Alu-Fenster Hercules in Reno-Profil

Reno-Profil Hercules

Alu-Fenster Triton in Reno-Profil

Reno-Profil Triton

Renovierungsfenster nach Maß

Jetzt einfach Renovierungsfenster günstig online anfragen und bestellen bei fensterblick.de

Detail-Zeichnungen der Profile

IDEAL 4000 Profile:

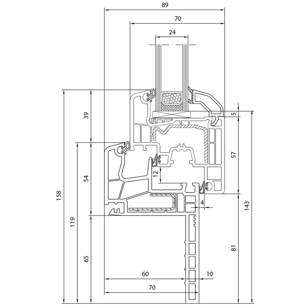
20 mm lange Flossen:

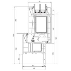
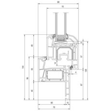
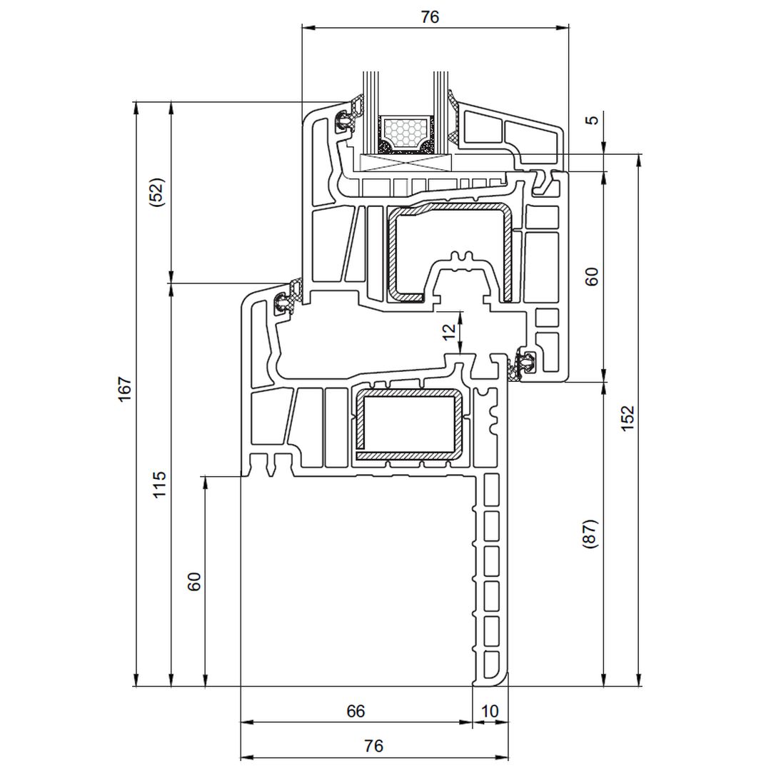
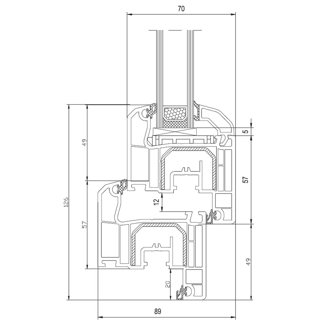
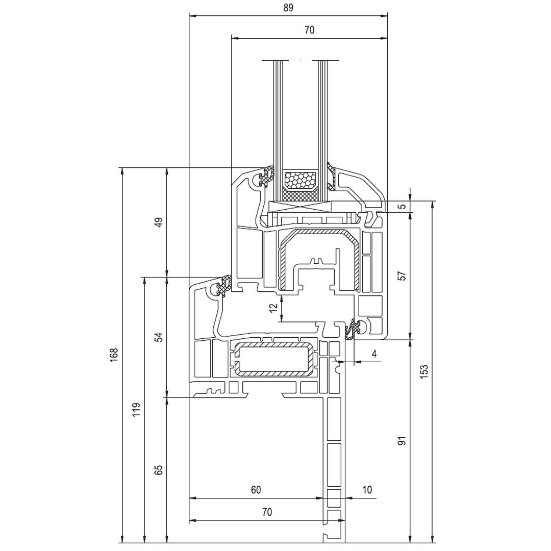
Aluplast Ideal 4000 Fenster als Renovationsrahmen im Round Line

Reno-Profil (Round-Line) - 20 mm

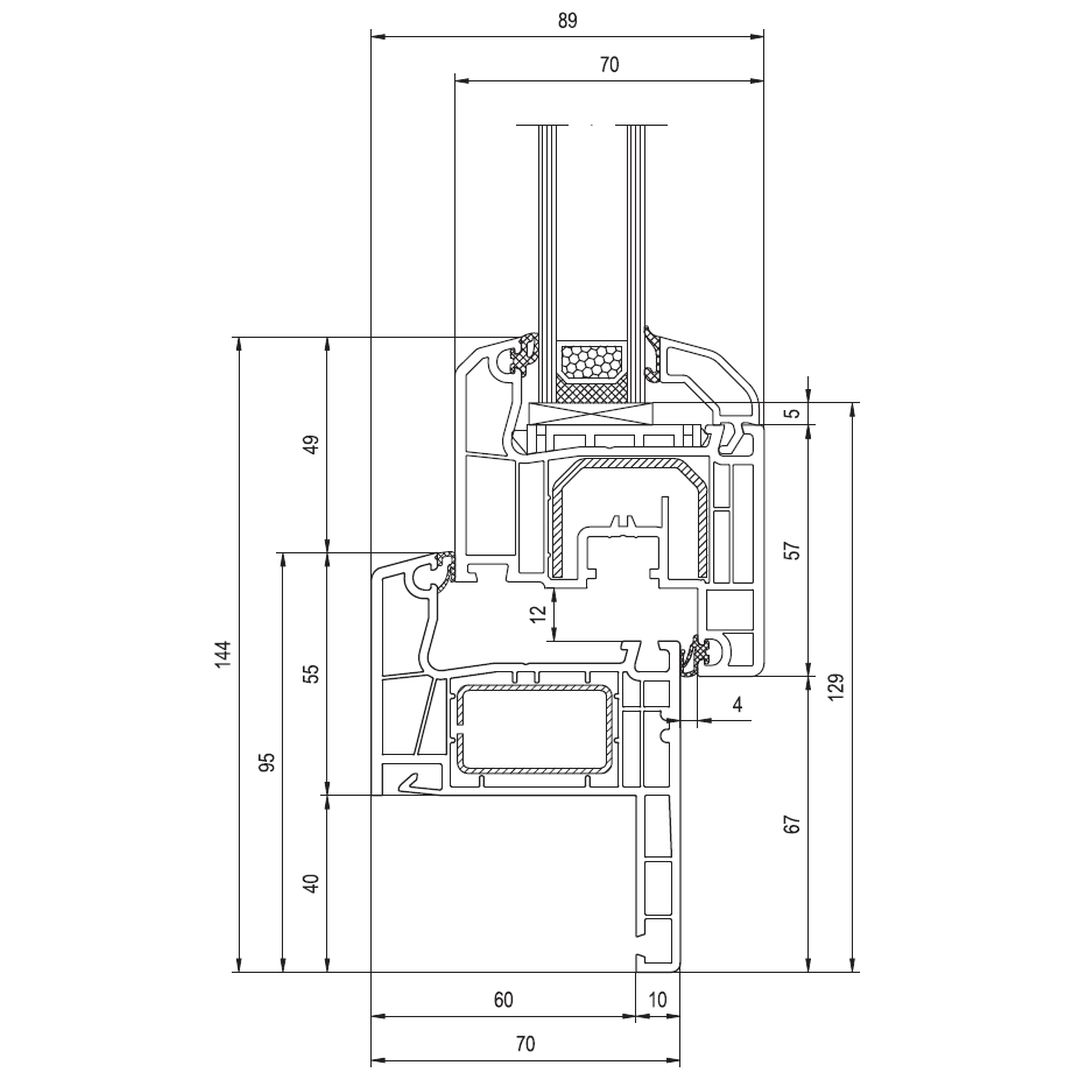
Aluplast Ideal 4000 Fenster als Renovationsrahmen im Soft Line

Reno-Profil (Soft-Line) - 20 mm

40 mm lange Flossen:

Aluplast Ideal 4000 Fenster als Renovationsrahmen in Round Line

Reno-Profil (Round Line) - 40 mm

Aluplast Ideal 4000 Fenster als Renovationsrahmen in Soft Line

Reno-Profil (Soft Line) - 40 mm

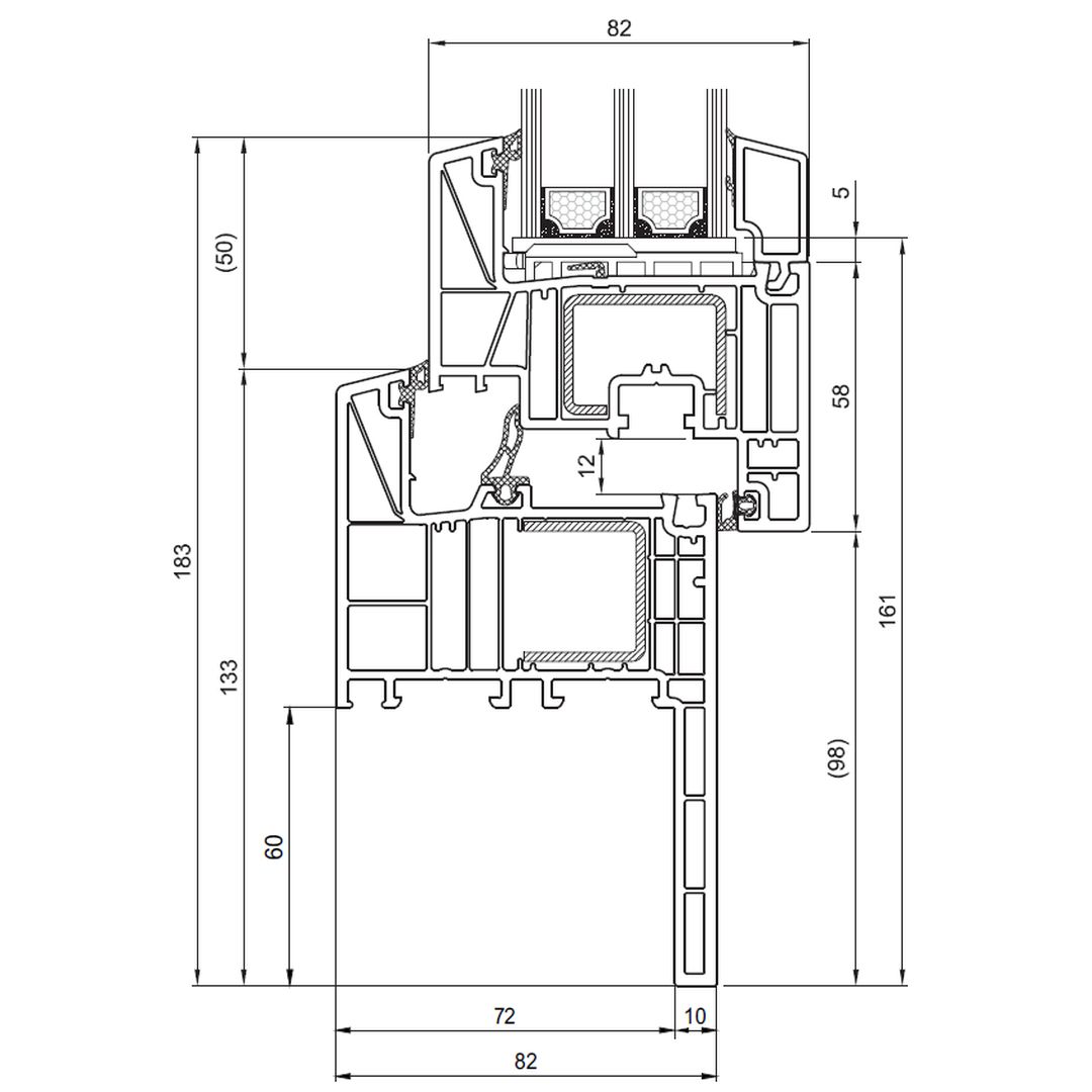
65 mm lange Flossen:

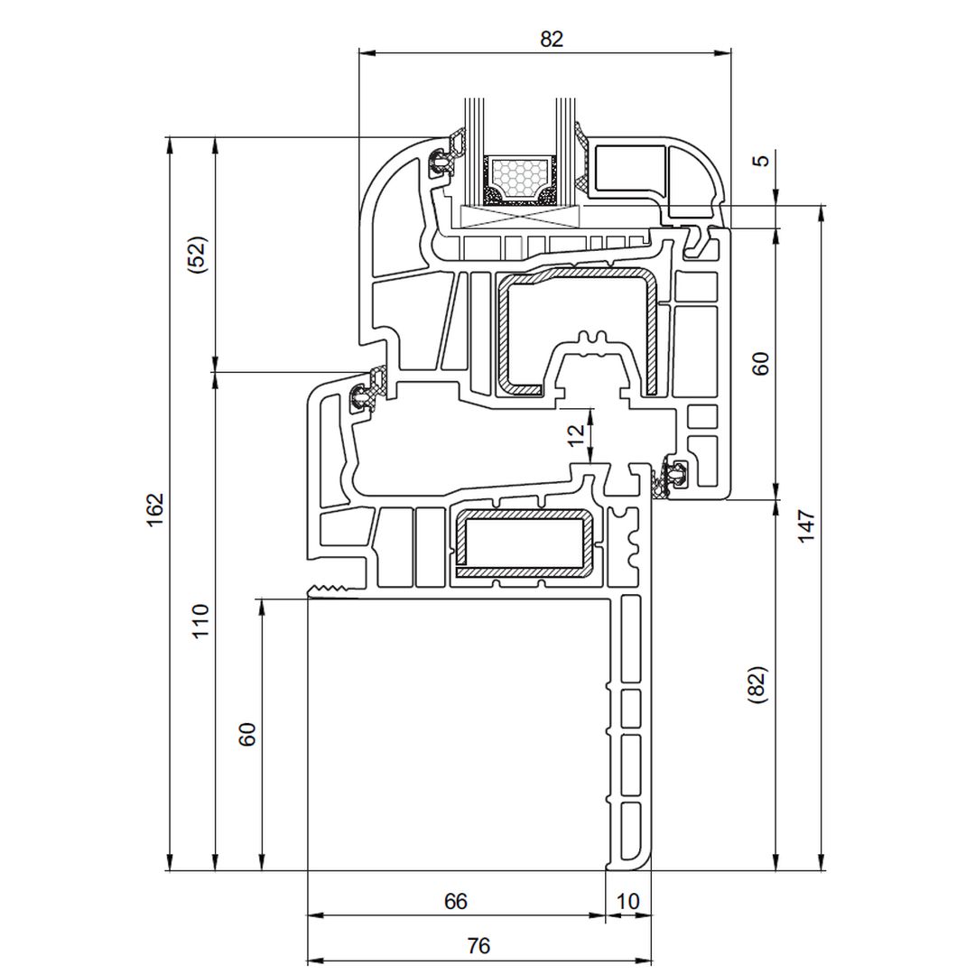
Aluplast Ideal 4000 Fenster als Renovationsrahmen in Round Line

Reno-Profil (Round Line) - 65 mm

Aluplast Ideal 4000 Fenster als Renovationsrahmen in Soft Line

Reno-Profil (Round Line) - 65 mm

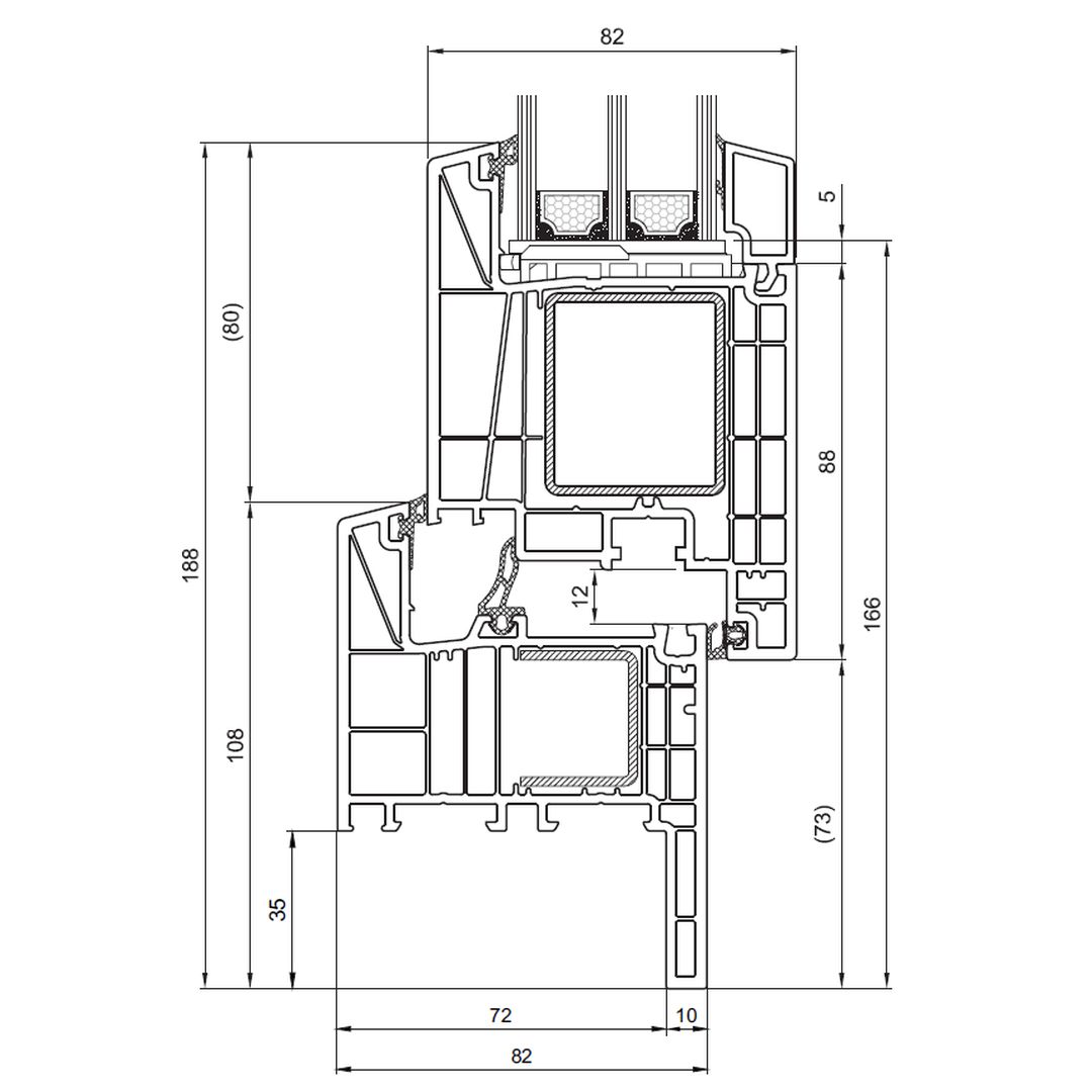
IDEAL 5000 Profile:

65 mm lange Flossen:

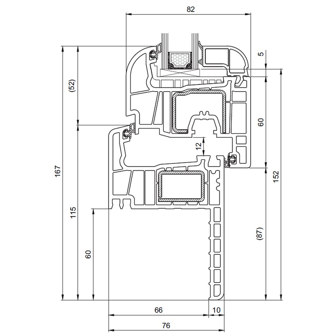
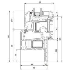
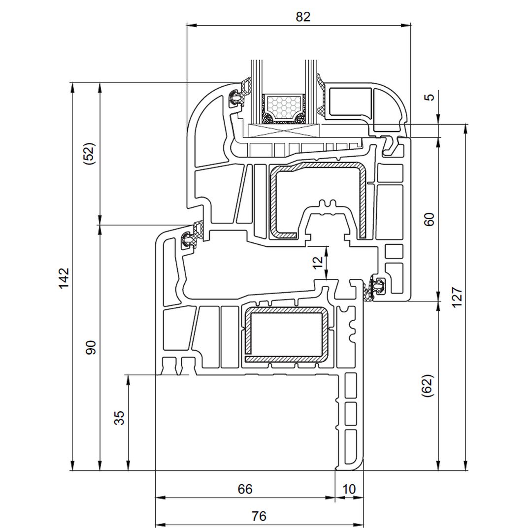
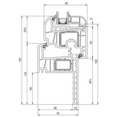
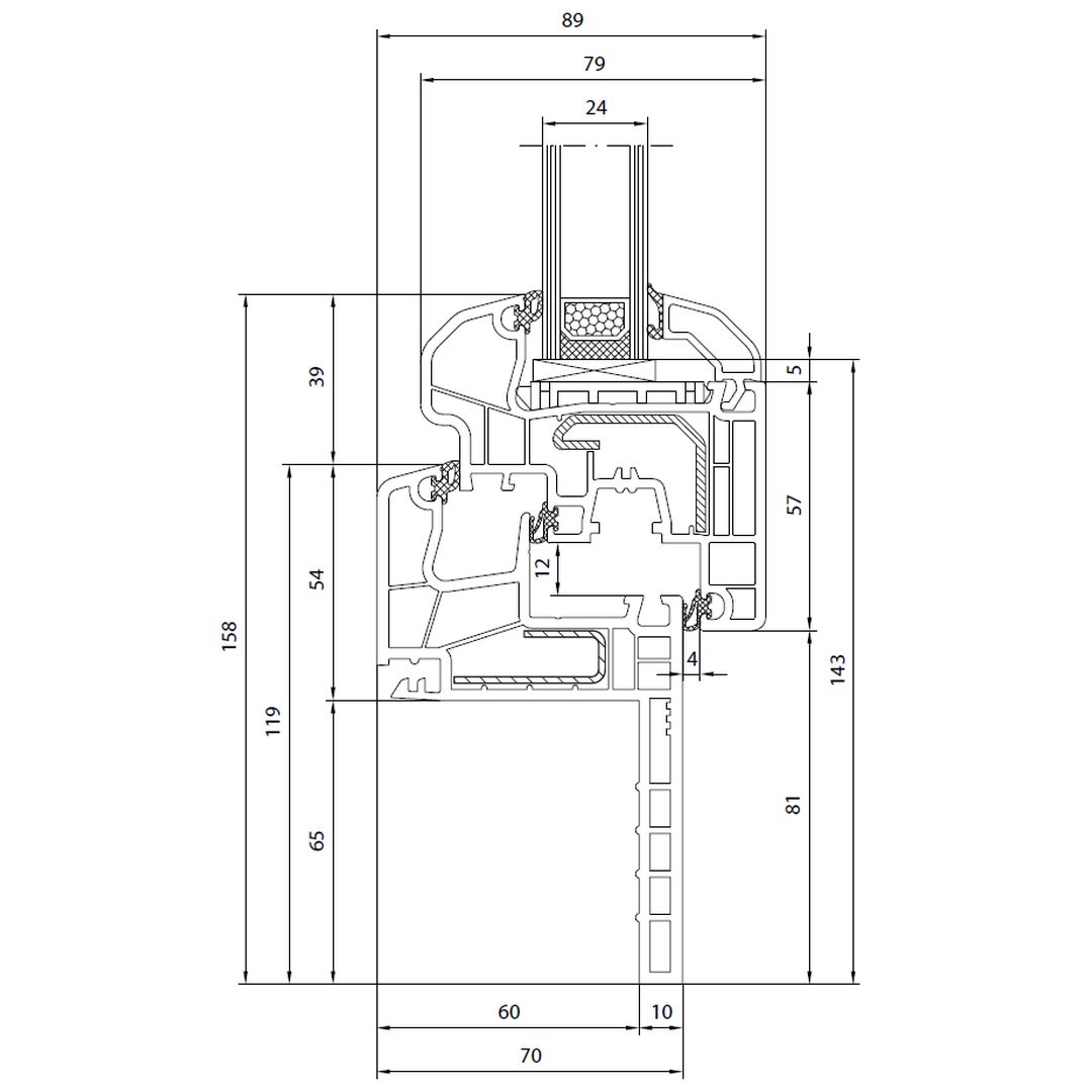
Aluplast Ideal 5000 Fenster als Renovationsrahmen

Reno-Profil (Round Line) - 65 mm

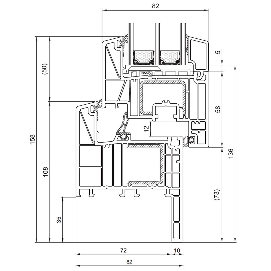
Aluplast Ideal 5000 Fenster als Renovationsrahmen mit Flügel in Classic-Line

Reno-Profil (Classic Line) - mit Flügel - 65 mm

Aluplast Ideal 5000 Fenster als Renovationsrahmen mit Flügel in Round-Line

Reno-Profil (Round Line) - mit Flügel - 65 mm

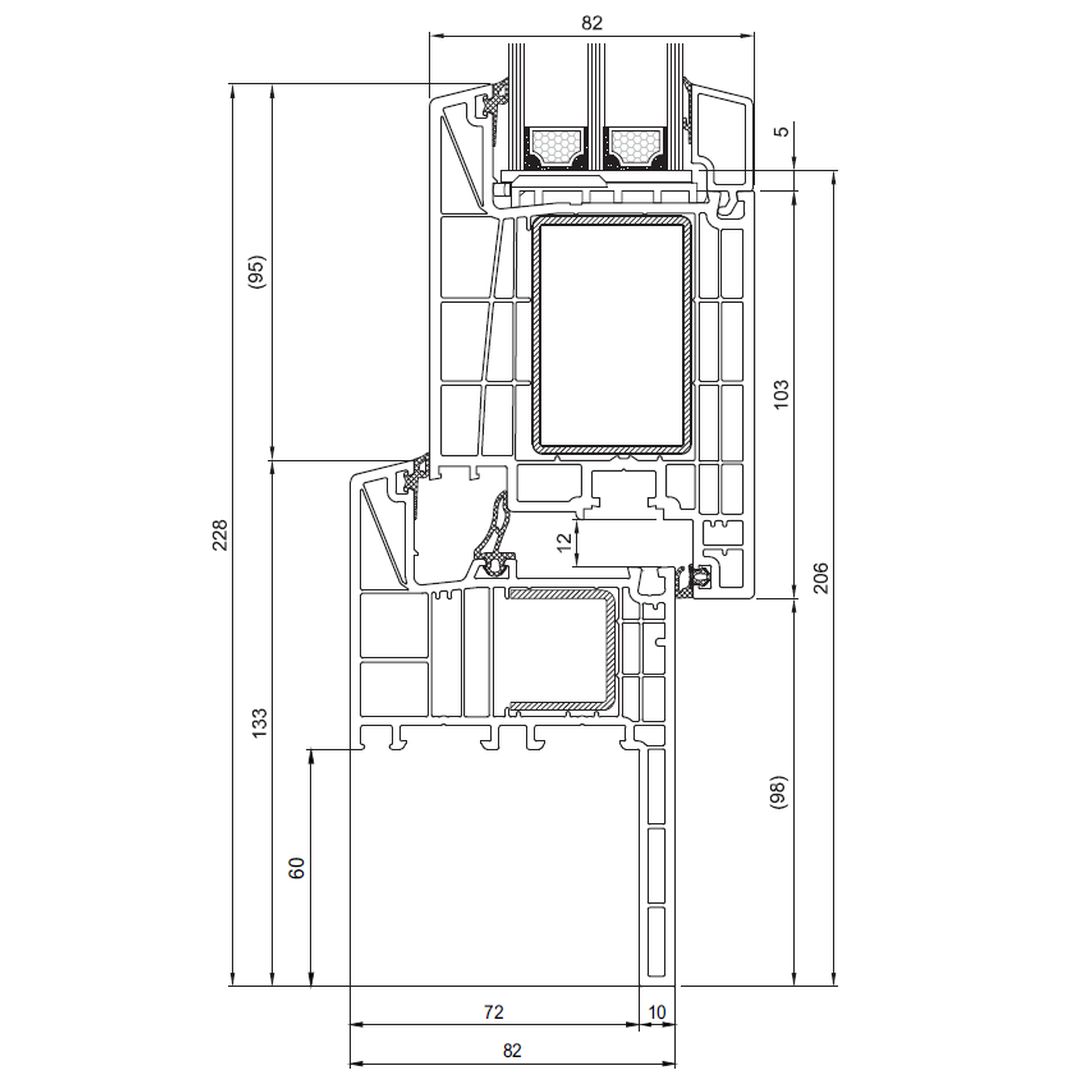
Salamander BluEvolution 82 Profile:

35 mm lange Flossen:

Salamander BlueEvolution 82 Renovationsrahmen

Reno-Profil - nur Blendrahmen - 35 mm Flosse - Gesamtlänge 108 mm

Salamander BlueEvolution 82 Renovationsrahmen Classic-Line

Reno-Profil (Classic Line) - 35 mm Flosse

Salamander BlueEvolution 82 Renovationsrahmen für Terrassentüren

Reno-Profil für Terrassentüren - 35 mm Flosse

Salamander BlueEvolution 82 Renovationsrahmen für nach innen-öffnende Terrassentüren

Reno-Profil für nach innen-öffnende Terrassentüren - 35 mm Flosse

60 mm lange Flossen:

Salamander BlueEvolution 82 Renovationsrahmen nur Blendrahmen

Reno-Profil - nur Blendrahmen - 60 mm Flosse - Gesamtlänge 133 mm

Salamander BlueEvolution 82 Renovationsrahmen Classic-Line

Reno-Profil (Classic Line) - 60 mm Flosse

Salamander BlueEvolution 82 Renovationsrahmen für Terrassentüren

Reno-Profil für Terrassentüren - 60 mm Flosse

Salamander BlueEvolution 82 Renovationsrahmen für nach innen öffnende Terrassentüren

Reno-Profil für nach innen-öffnende Terrassentüren - 60 mm Flosse

Salamander Streamline 76 Profile:

35 mm lange Flossen:

Salamander Streamline 76 Renovationsrahmen nur Blendrahmen

Reno-Profil - nur der Blendrahmen - 35 mm Flosse - Gesamtlänge 90 mm

Salamander Streamline 76 Renovationsrahmen Classic Line

Reno-Profil (Classic Line)- 35 mm Flosse

Salamander Streamline 76 Renovationsrahmen Round Line

Reno-Profil (Round Line)- 35 mm Flosse

60 mm lange Flossen

Salamander Streamline 76 Renovationsrahmen nur Blendrahmen

Reno-Profil - nur der Blendrahmen - 60 mm Flosse - Gesamtlänge 110 mm

Salamander Streamline 76 Renovationsrahmen

Reno-Profil - nur der Blendrahmen- 60 mm Flosse - Gesamtlänge 115 mm

Salamander Streamline 76 Renovationsrahmen Classic Line

Reno-Profil (Classic Line) - 60 mm Flosse - mit 110 mm Blendrahmen

Salamander Streamline 76 Renovationsrahmen Classic Line

Reno-Profil (Classic Line) - 60 mm Flosse - mit 115 mm Blendrahmen

Salamander Streamline 76 Renovationsrahmen Round Line

Reno-Profil (Round Line) - 60 mm Flosse - mit 110 mm Blendrahmen

Salamander Streamline 76 Renovationsrahmen Round Line

Reno-Profil (Round Line) - 60 mm Flosse - mit 115 mm Blendrahmen

Häufige Fragen zum Renovierungsfenster

Was ist ein Renovierungsfenster?
Ein Renovierungsfenster ist eine Fenster-Konstruktion, die sich schnell und ohne viel Aufwand renovieren lässt. Dabei werden die neuen Fenster-Profile einfach auf den Blendrahmen des alten Fensters aufgesetzt. Das erspart viel Arbeit und Staub, da der Blendrahmen nicht ausgestemmt und neu eingesetzt werden muss. Mauer- und Putzarbeiten werden dadurch gespart und Ihre Fenster sehen aus wie neu. Der Fassaden-Putz sowie der Boden bleiben sauber. Der Austausch der Fenster geht zudem sehr schnell. Lediglich die Glas-Fläche des Fensters verkleinert sich um wenige Zentimeter.

Kostenlose Lieferung

Ab einer Bestellung von 10 Fenstern deutschlandweit!

Jetzt Angebot für Kunststofffenster anfordern

Das könnte Sie auch interessieren:

Bogenfenster | Feststehende Fenster | Außenfenster | Erkerfenster | Sonderfenster