Detailzeichnungen Holz-Alufenster Duoline-68

Inhaltsverzeichnis:

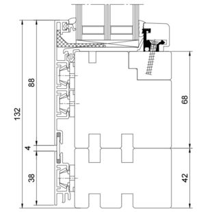
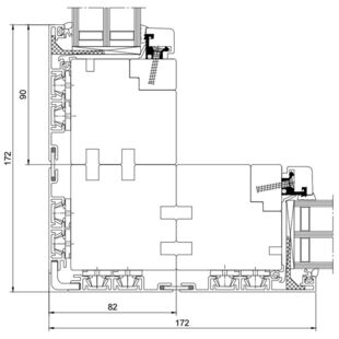
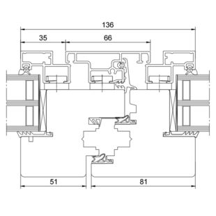
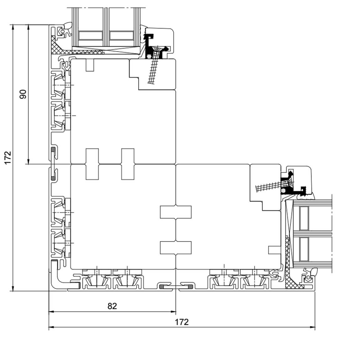
Holz-Aluminium Fensterprofil Drutex Duoline 68 Querschnitte

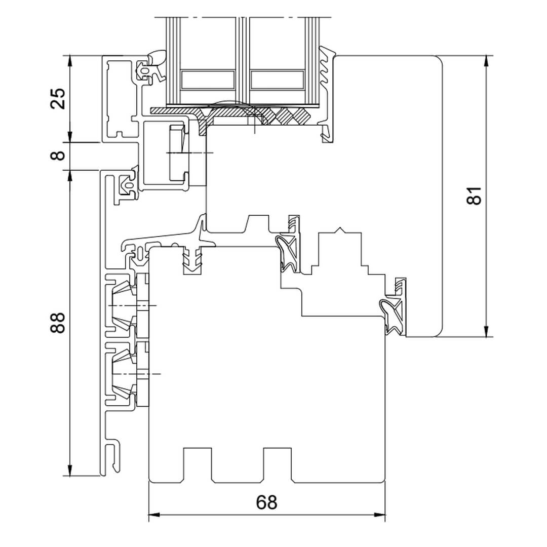
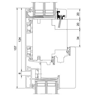
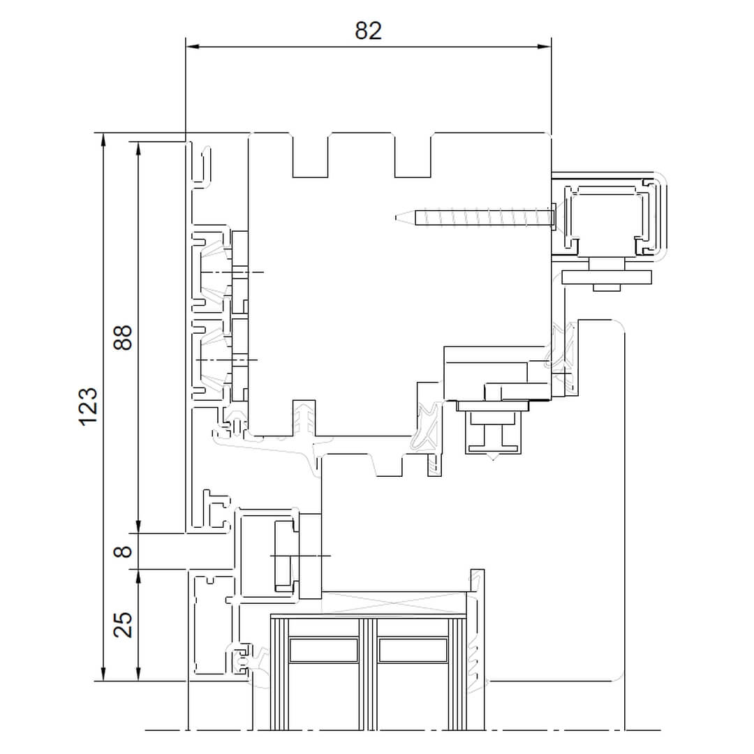
Drutex Duoline 68 Festverglasung oben

Duoline 68 Festverglasung oben

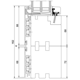
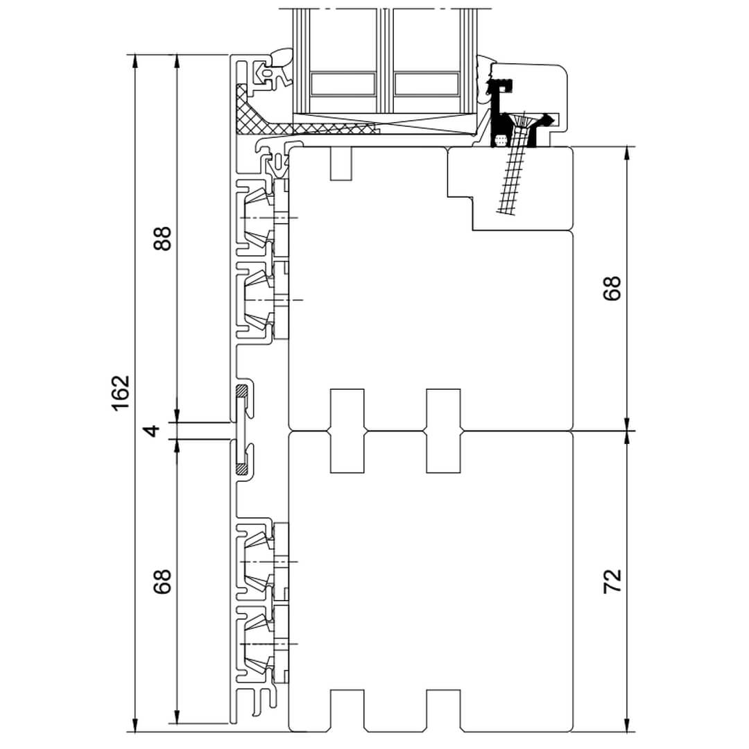
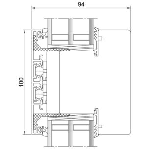
Drutex Duoline 68 Festverglasung unten

Duoline 68 Festverglasung unten

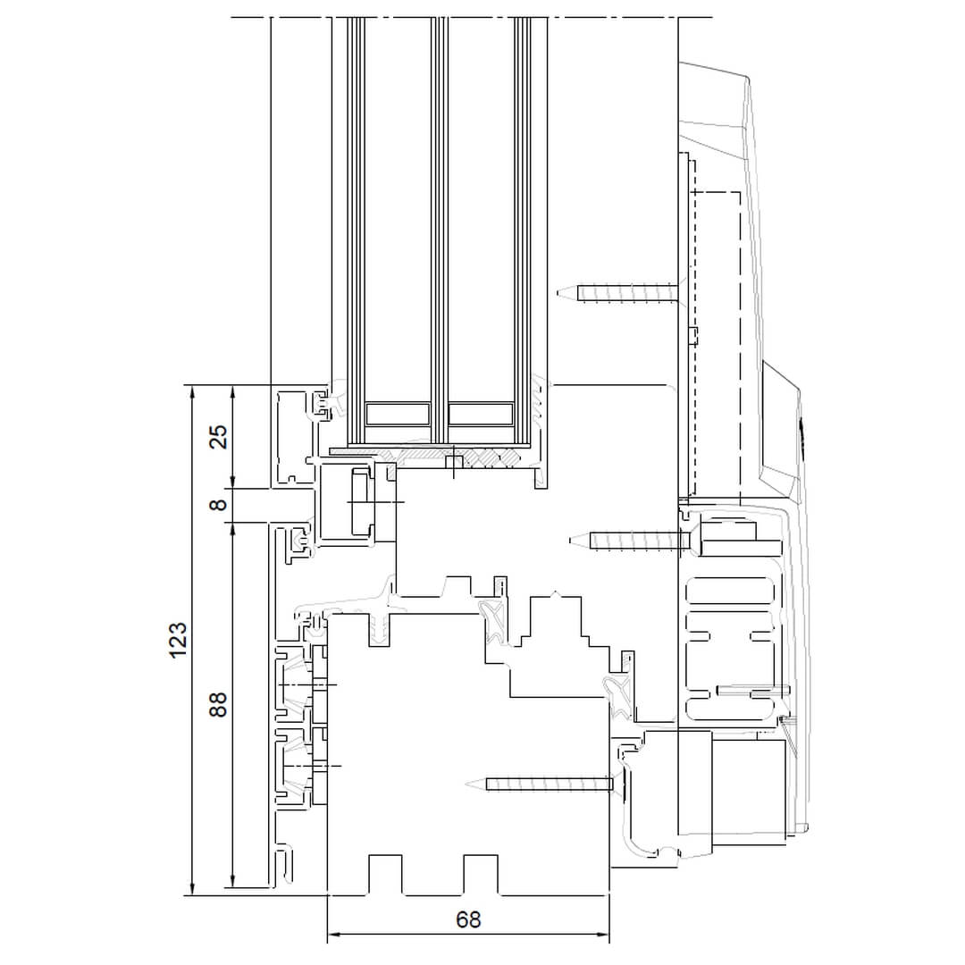
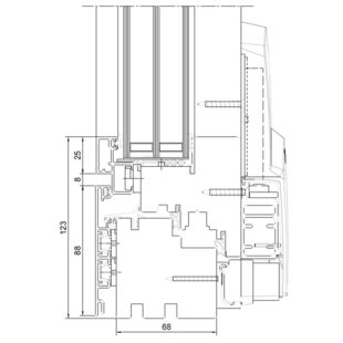
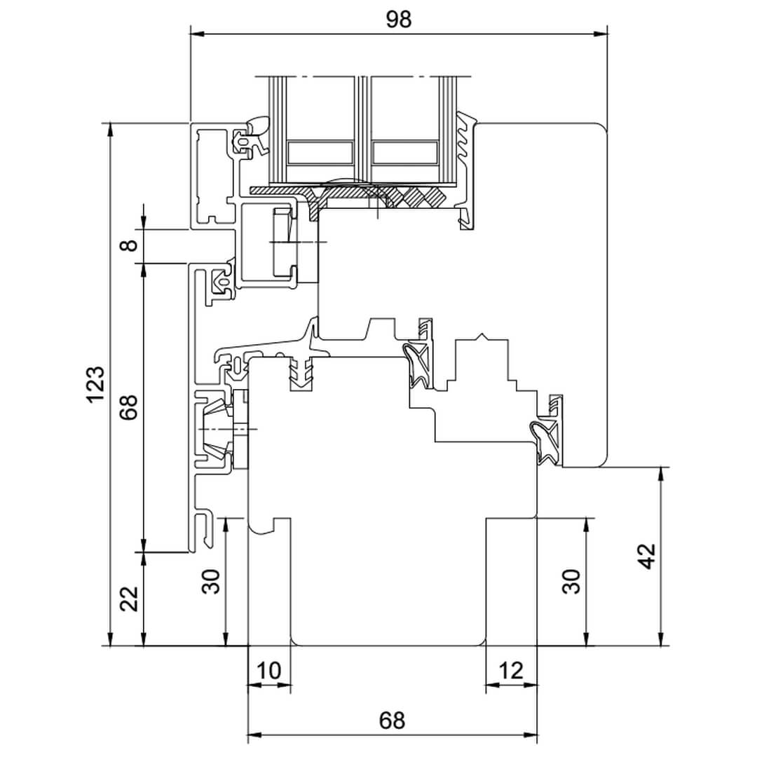
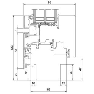
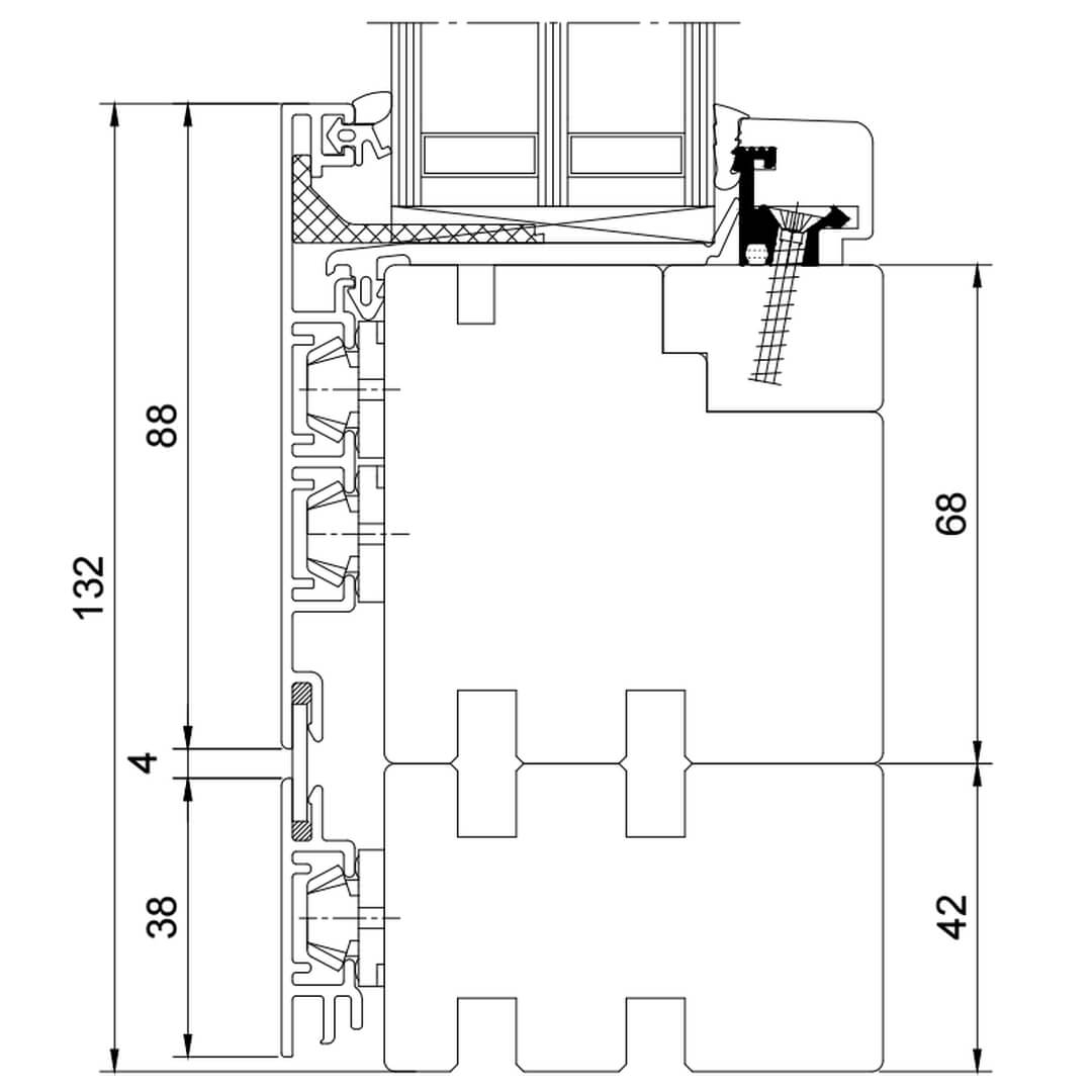
Duoline 68 Fenster mit Standard Falzschnitt beidseitig

Duoline 68 Fenster mit Standard Falzschnitt beidseitig

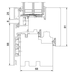
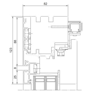
Duoline 68 Fenster mit ohne Falzschnitt Federprofil

Duoline 68 Fenster mit ohne Falzschnitt

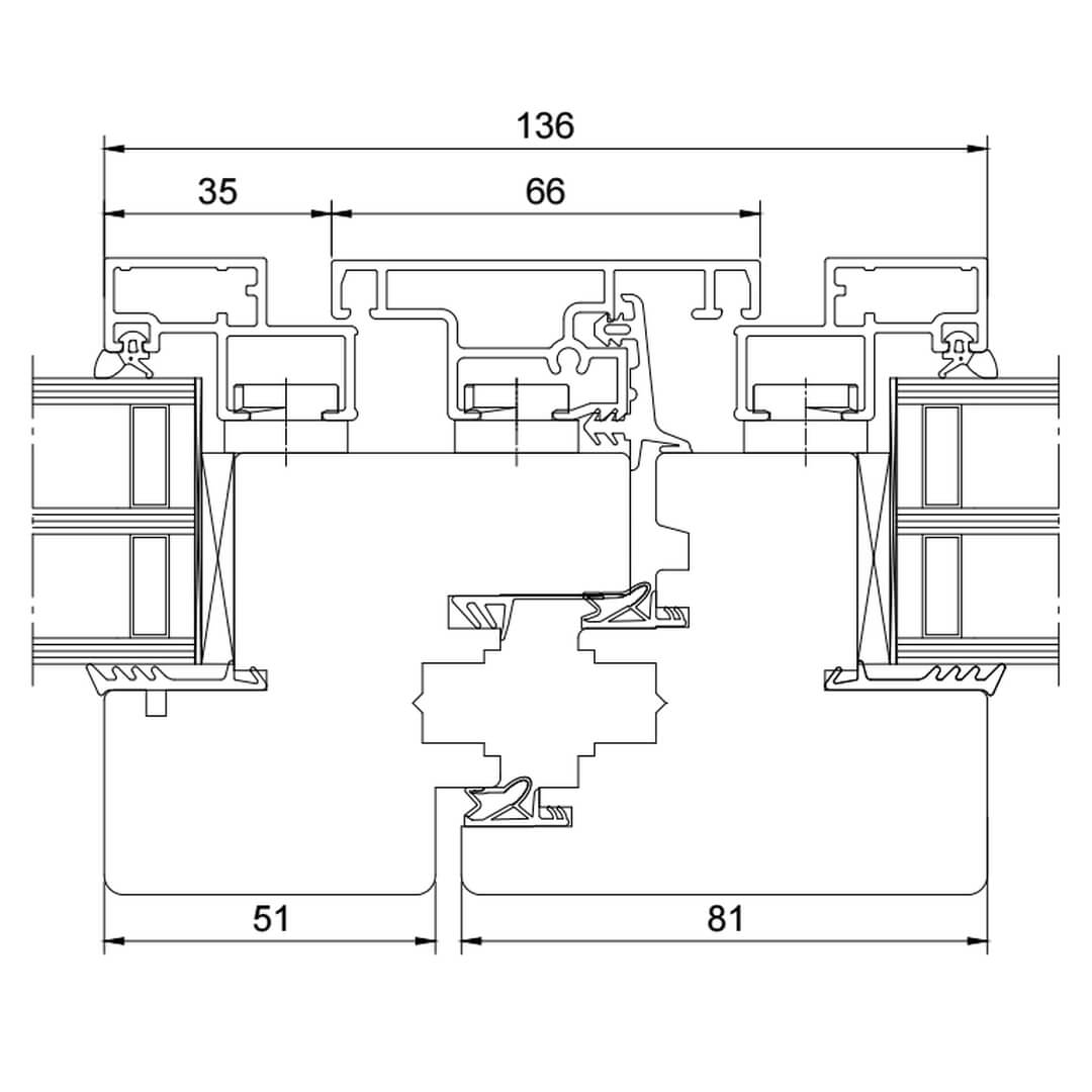
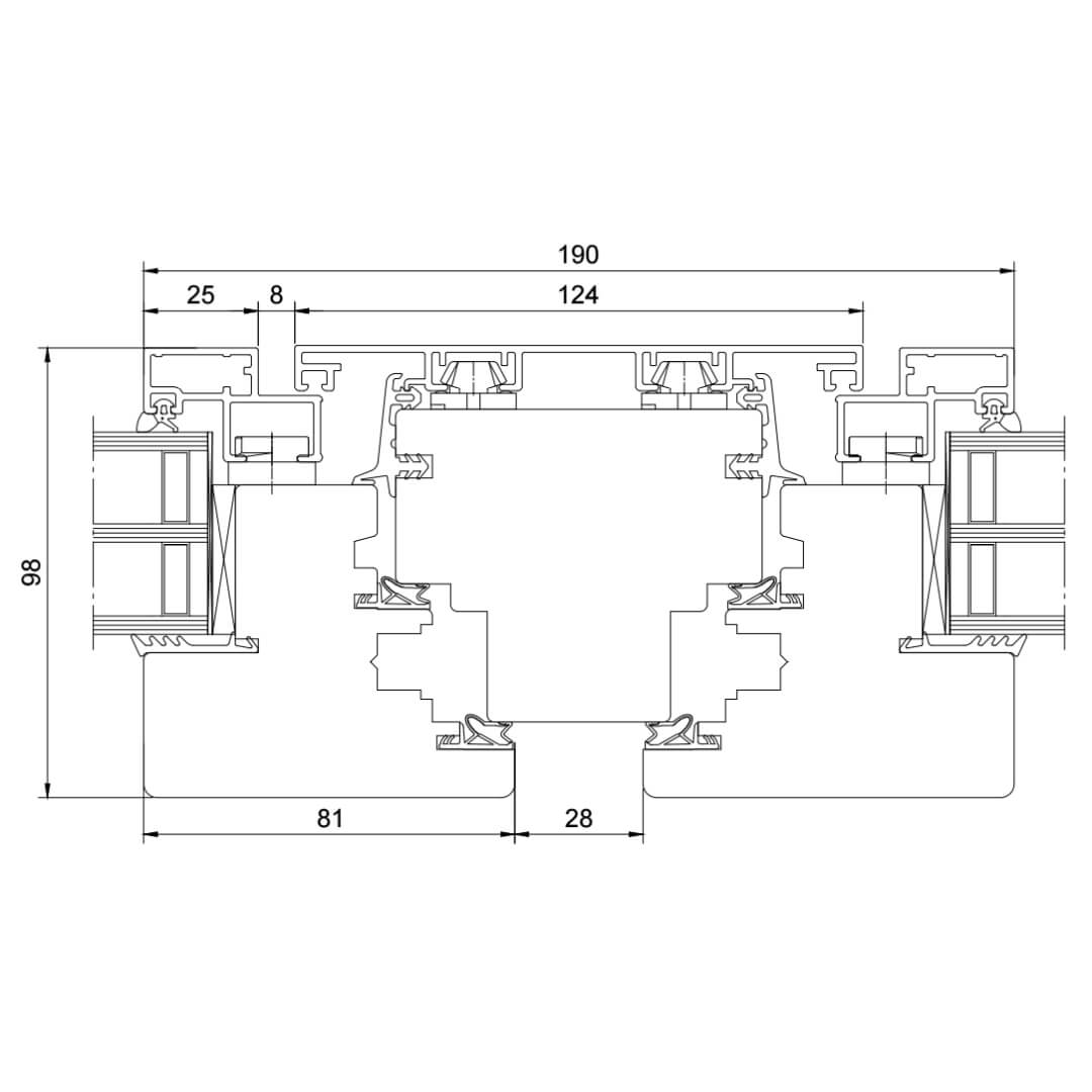
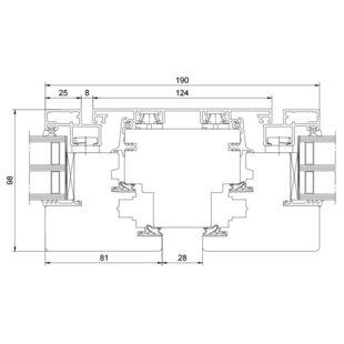
Holz-Aluminium Drutex Duoline 68 mehrflügelig mit vertikalem Pfosten oder Stulp

Drutex Duoline 68 Fenster Dreh-Kipp + Dreh-Kipp

Duoline 68 Fenster 2-flg. Dreh-Kipp + Dreh-Kipp

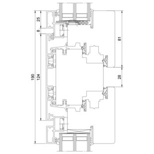
Drutex Duoline 68 2-flg. Fenster Dreh + Dreh-Kipp (Stulp)

Drutex Duoline 68 2-flg. Fenster Dreh + Dreh-Kipp (Stulp)

Holz-Aluminium Drutex Duoline 68 Ober-/Unterlicht mit horizontalem Pfosten Festverglasung / Dreh-Kipp

Drutex Duoline 68 Fenster Oberlicht Festverglasung Dreh-Kipp

Duoline 68 Fenster Oberlicht Festverglasung + Dreh-Kipp

Drutex Duoline 68 Fenster Oberlicht Dreh-Kipp + Dreh-Kipp

Duoline 68 Fenster Oberlicht Dreh-Kipp + Dreh-Kipp

Holz-Aluminium Fenster Duoline 68 Pfosten-Unterteilungen (Kämpfer)

Drutex Duoline 68 Pfosten Glasteilende Kämpfer-Sprosse 100mm

Duoline 68 Kämpfer-Sprosse 100mm

Drutex Duoline 68 Pfosten Glasteilende Kämpfer-Sprosse 100mm Festverglasung

Duoline 68 Kämpfer-Sprosse 100mm (Festverglasung)

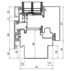
Holz Aluminium Duoline 68 Balkontür

Drutex Duoline 68 Balkontür mit Blendrahmen

Duoline 68 Balkontür mit Blendrahmen

Holz Aluminium Duoline 68 PSK Parallel-Schiebe-Kipp-Tür

Drutex Duoline 68 PSK-Tür Schiebeflügel unten

Duoline 68 PSK-Tür Schiebeflügel unten

Drutex Duoline 68 PSK-Tür Schiebeflügel oben

Duoline 68 PSK-Tür Schiebeflügel oben

Zusatzprofile für Duoline-68 Querschnitte

Holz-Aluminiumfenster Sprossenarten - Duoline-68

Innenliegende SZR Sprossen / Helima Sprossen

Drutex Softline SZR innenliegende Sprosse 8mm

Innenliegende Sprosse 8mm (SZR)

Drutex Softline SZR innenliegende Sprosse 18mm

Innenliegende Sprosse 18mm (SZR)

Drutex Softline SZR innenliegende Sprosse 26mm

Innenliegende Sprosse 26mm (SZR)

Drutex Softline SZR innenliegende Sprosse 45mm

Innenliegende Sprosse 45mm (SZR)

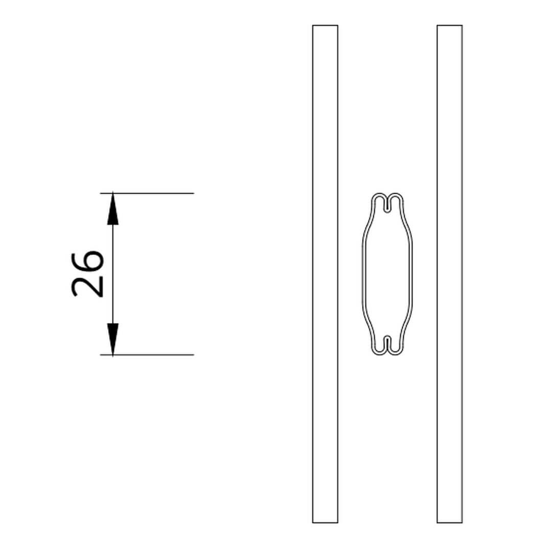
Glasteilende Sprossen - Kämpfer

Drutex Duoline 68 Pfosten Glasteilende Kämpfer-Sprosse 100mm

Duoline 68 Kämpfer-Sprosse 100mm

Drutex Duoline 68 Pfosten Glasteilende Kämpfer-Sprosse 100mm Festverglasung

Duoline 68 Kämpfer-Sprosse 100mm (Festverglasung)

Holz-Aluminiumfenster Rahmenverbreiterung

Drutex Duoline 68 Rahmenverbreiterung 42mm PRD 68042 (PR042)

PRD68042 - Duoline 68 Rahmenverbreiterung 42mm (PRD042)

Drutex Duoline 68 Rahmenverbreiterung 72mm PRD 68072 (PRD072)

PRD68072 - Duoline 68 Rahmenverbreiterung 72mm (PRD072)

Holz-Aluminiumfenster Kopplungen

Kopplung von Eck-Elementen - 90° und Variabel

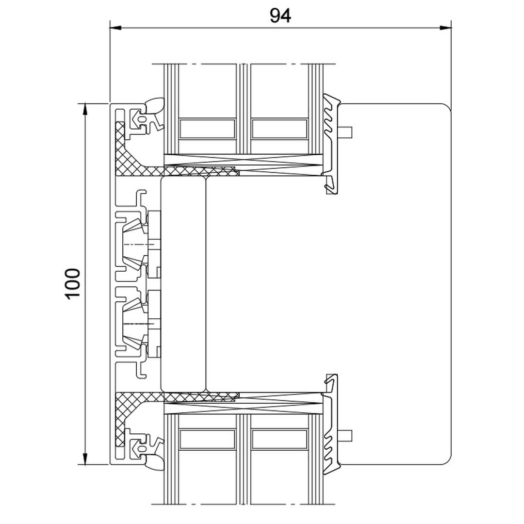
Drutex Duoline 68 Eckkopplung 90° Rahmen PPD68090 (PPD090)

PPD68090 - Duoline 68 Eckkopplung 90 Grad (PPD090)

Weiter zur Produktseite Holz-Alufenster Duoline-68

Kostenlose Lieferung

Ab einer Bestellung von 10 Fenstern deutschlandweit!

Jetzt Angebot für Holz-Alu-Fenster anfordern

Das könnte Sie auch interessieren:

Holz-Alufenster Duoline-78

Detailzeichnungen Holz-Alufenster Duoline-78

Holz-Alufenster Duoline-78 besitzen eine Bautiefe (Rahmen) von 78mm.

Holz-Alufenster Duoline-88

Detailzeichnungen Holz-Alufenster Duoline-88

Holz-Alufenster Duoline-88 besitzen eine Bautiefe (Rahmen) von 88mm.