Detailzeichnungen und Profilschnitte

Erfolg beim Bauprojekt setzt eine gute und gründliche Planung voraus. Doch diese ist nur im vollen Umfang durchführbar, wenn man sicher gehen kann, dass am Ende auch alles auf den Millimeter genau passt. Besonders hilfreich sind hier Detailzeichnungen und Profil-Schnitte, welche Auskunft über den genauen Aufbau und Abmessungen eines Bauelementes geben. Um Ihnen eine gute Vorbereitung zu erleichtern, stellen wir Ihnen für alle unsere aluplast-, ALUPROF-, DRUTEX-, Gealan- und SALAMANDER-Profilsysteme die entsprechenden Detailzeichnungen zur Verfügung. Zur besseren Übersicht sind die Querschnitte dabei nach Material und Profil-System sortiert. Neben den Schnitt-Plänen für Fenster finden Sie auch Details zu verschiedenen Zusatzprodukten wie Bankanschlüssen oder Kopplungen auf den jeweiligen Detailseiten. Auch für die verschiedenen Rollladen-Systemen existieren detaillierte Querschnitte.

Inhaltsverzeichnis - Diese Themen erwarten Sie

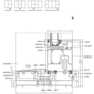
Profilschnitte für Kunststoff-Systeme

DRUTEX Kunststoff-Systeme

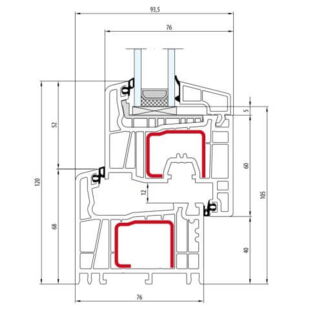
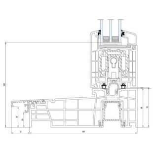
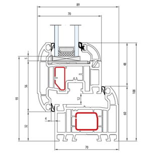
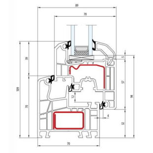
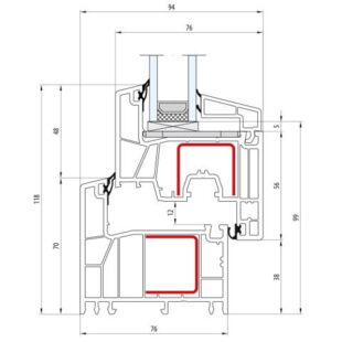
Profil Iglo Energy

Kunststoffprofil Iglo Energy Classic

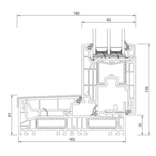
Iglo Energy Detailzeichnungen

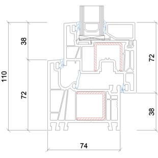
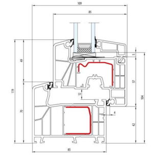
Profil Iglo Energy AluCover

Kunststoffprofil Iglo Energy AluCover

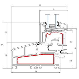
Iglo Energy AluCover Detailzeichnungen

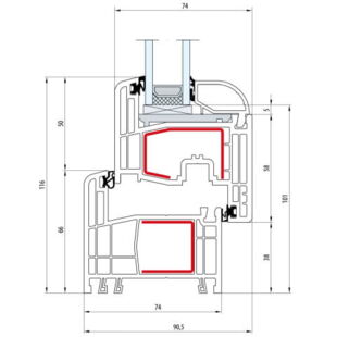
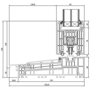
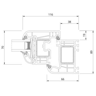
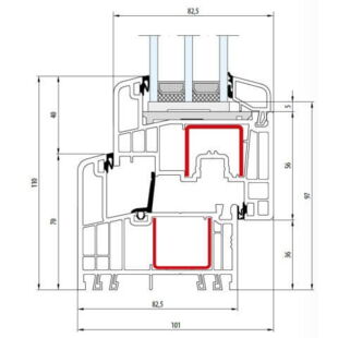
Profil Iglo Premier

Kunststoffprofil Iglo Premier

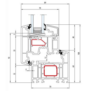
Iglo Premier Detailzeichnungen

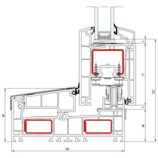
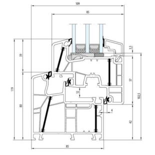
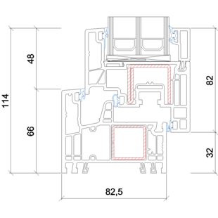
Profil Iglo Edge Slide

Drutex Iglo Edge Slide Profilschnitt

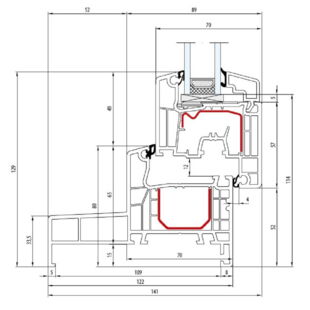
Iglo Edge Slide Detailzeichnungen

aluplast Kunststoff-Systeme

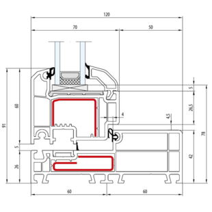
Profil energeto neo

Kunststoffprofil energeto neo

energeto neo Detailzeichnungen

Profil energeto 8000

Kunststoffprofil energeto 8000

energeto 8000 Detailzeichnungen


Profil IDEAL 4000 85mm

Kunststoffprofil IDEAL 4000 85mm

IDEAL 4000 85mm Detailzeichnungen

Profil IDEAL 4000 Casement

Kunststoffprofil IDEAL 4000 Casement

IDEAL 4000 Casement Detailzeichnungen

Profil IDEAL 4000 Monoblock

Kunststoffprofil IDEAL 4000 Monoblock

IDEAL 4000 Monoblock Detailzeichnungen

Profil IDEAL 4000 NL Blockprofil

Kunststoffprofil IDEAL 4000 NL Blockprofil

IDEAL 4000 NL Detailzeichnungen

Profil IDEAL 70 Casement

Kunststoffprofil IDEAL 70 Casement

IDEAL 70 Casement Detailzeichnungen

Profil IDEAL 7000 NL Blockprofil

Kunststoffprofil IDEAL 7000 NL Blockprofil

IDEAL 7000 NL Detailzeichnungen

Profil IDEAL Nordline

Kunststoffprofil IDEAL Nordline

IDEAL Nordline Detailzeichnungen


Gealan Kunststoff-Systeme

Profil Gealan S 8000

Kunststoffprofil Gealan S 8000

Gealan S 8000 Detailzeichnungen

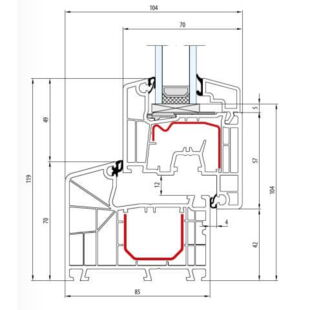
Profil Gealan S 9000

Kunststoffprofil Gealan S 9000

Gealan S 9000 Detailzeichnungen

Profil Gealan Lumaxx

Kunststoffprofil Gealan Lumaxx S 9000

Gealan Lumaxx Detailzeichnungen

Profil Gealan Linear

Kunststoffprofil Gealan Linear

Gealan Linear Detailzeichnungen

Profil Gealan Kontur

Kunststoffprofil Gealan Kontur

Gealan Kontur Detailzeichnungen

Profil Gealan Kubus

Kunststoffprofil Gealan Kubus

Gealan Kubus Detailzeichnungen

SALAMANDER Kunststoff-Systeme

Profil greenEvolution 76

Kunststoffprofil greenEvolution 76

greenEvolution 76 Detailzeichnungen

Profil bluEvolution 82

Kunststoffprofil bluEvolution 82

bluEvolution 82 Detailzeichnungen

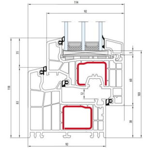
Profil bluEvolution 92

Kunststoffprofil bluEvolution 92

bluEvolution 92 Detailzeichnungen

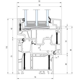
Profil Streamline 76

Kunststoffprofil Streamline 76

Streamline 76 Detailzeichnungen

SCHÜCO Kunststofffenster

Profil Schüco CT-70

Kunststoffprofil Schüco CT-70

Schüco CT-70 Detailzeichnungen

Profil Schüco LivIng 82

Kunststoffprofil Schüco LivIng 82

Schüco LivIng 82 Detailzeichnungen

Profil Schüco LivIng Alu Inside

Kunststoffprofil Schüco LivIng Alu Inside

Schüco LivIng Alu Inside Detailzeichnungen

Profilschnitte für Holz-Systeme

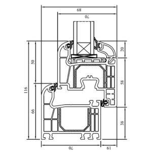
Profil Softline-68

Holzprofil Softline 68 Rahmen mit Flügel

Softline 68 Detailzeichnungen

Profil Softline-78

Holzprofil Softline 78 Rahmen mit Flügel

Softline 78 Detailzeichnungen

Profil Softline-88

Holzprofil Softline 88 Rahmen mit Flügel

Softline 88 Detailzeichnungen

Profilschnitte für Aluminium-Systeme

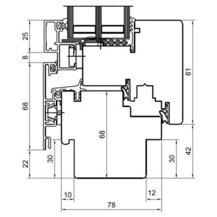
Aluprof Aluminium-Systeme

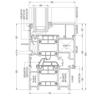
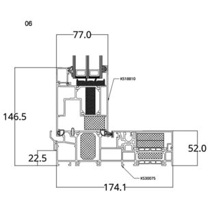
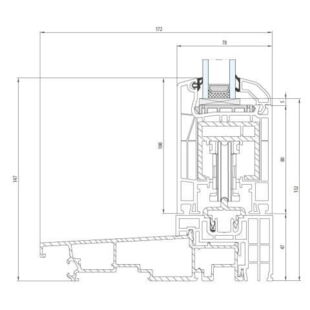
Profil MB-77 HI HST

Hebeschiebetür Profil MB-77 HI HST

MB-77 HI HST Detailzeichnungen

Aliplast Aluminium-Systeme

Profilschnitte für Holz-Aluminium-Systeme

Profilschnitte für Aluminium-Stahl-Systeme (FM Türen)

Profilschnitte für Rollladen und Raffstore

DRUTEX Rollladen-Systeme

Premium-Line Rollladen-Systeme

Aluprof Rollladen-Systeme

Vorbaurollladen SP-E

Detailzeichnungen Vorbaurollladen Aluprof SP-E

Detailzeichnungen Aluprof SP-E

Vorbaurollladen SK

Detailzeichnungen Vorbaurollladen Aluprof SK

Detailzeichnungen Aluprof SK

Vorbaurollladen SKP

Detailzeichnungen Vorbaurollladen Aluprof SKP

Detailzeichnungen Aluprof SKP

Vorbaurollladen SKO-P

Detailzeichnungen Vorbaurollladen Aluprof SKO-P

Detailzeichnungen Aluprof SKO-P

BeClever Aufsatzrollladen Profilschnitte

Aufsatzrollladen BeClever CleverBox

Detailzeichnungen Aufsatzrollladen BeClever CleverBox

Detailzeichnungen BeClever CleverBox

Decco Aufsatzrollladen Profilschnitte

Aufsatzrollladen Decco Thermo Box

Detailzeichnungen Aufsatzrollladen Decco Thermo Box

Detailzeichnungen Decco Thermo Box

Exte Aufsatzrollladen Profilschnitte

Aufsatzrollladen Exte Elite XT

Detailzeichnungen Aufsatzrollladen Exte Elite XT

Detailzeichnungen Exte Elite XT

Aufsatzrollladen Exte Expert XT

Detailzeichnungen Aufsatzrollladen Exte Expert XT

Detailzeichnungen Exte Expert XT

Aufsatzrollladen Exte Exakt

Detailzeichnungen Aufsatzrollladen Exte Exakt

Detailzeichnungen Exte Exakt

Profilschnitte für Raffstore und Fassadenjalousie

Profilschnitte für Rolltore und Rollgitter

Rolltor BGR SK

Rolltor BGR SK 250

Rolltor PST

Rolltor PST eckig 45°

Mit genauer Planung und Beratung zum Ziel

Online Konfigurator Maßangabe
Maßen-Einstellung im Fensterkonfigurator

Überlassen Sie nichts dem Zufall! Bei einem Bauprojekt können tausend Sachen schiefgehen und häufig muss man spontan um planen oder improvisieren. Mit einer gründlichen Vorbereitung lassen sich jedoch meist Fehler verhindern.

Für maßgeschneiderte Produkte wie die vielseitigen und individuell produzierten Fenster von fensterblick.de ist es besonders ärgerlich wenn etwas nicht passt, da nachträgliche Änderungen oft schwierig sind. Mit den Profilschnitten können Sie während der Planung dem vorbeugen.

Die genauen Detailzeichnungen der Profile samt ihrer verschiedenen Zusatzsysteme helfen Ihnen im Vorfeld zu planen und die vielen Details zu berücksichtigen. Im praktischen Online Konfigurator können Sie dann einfach und bequem alle Maße und Ausstattungen passgenau nach Ihren Anforderungen einstellen. Sollten dennoch einzelne Fragen offen bleiben oder gewisse Details unklar sein, kontaktieren Sie uns per E-Mail oder rufen Sie uns an. Unser freundliches Team von fachkundigen Beratern hilft Ihnen gerne weiter Ihre Detail-Fragen zu klären um Ihr Bauprojekt zum Erfolg zu machen!

Fenster Details und technische Zeichnungen

Oft sieht man nur im Detail-Schnitt des Fensters, wo die Qualitätsunterschiede eines Profils liegen oder welche Mechanismen wirken. Damit auch wirklich jedes Fenster-Detail Ihren Vorstellungen entspricht, stellt Ihnen Fensterblick.de sämtliche Fenster-Zeichnungen und Profil-Querschnitte für alle Fenster-Profilsysteme zur Verfügung.

Im Mittelpunkt der Fenstergestaltung steht immer Ihr persönlicher Anspruch. Nur wenn Form und Farbe mit Ihrem Haustyp harmonisieren, entsteht ein stilvolles Erscheinungsbild. Je nach Baustil und Ihrem persönlichen Geschmack können Sie sich bei der Wahl Ihrer neuen Fenster und Türen zwischen verschiedenen Profilgeometrien, Profilformen sowie Geometrielinien entscheiden.

Ob Kunststoff, Holz, Holz-Alu oder reines Aluminium – die exakten Abmessungen sind für jedes Modell einsehbar. So können Sie unbesorgt und auf den Millimeter genau die Montage planen.

Die technischen Zeichnungen enthalten weiterhin auch Informationen und Maße zu Fensterbankanschlussprofilen, Kopplungen, Rahmenverbreiterungen, Glas- und Abdeckleisten und weiteren Zusätzen. Selbst Rollläden sind bis ins kleinste Detail beschrieben. Außerdem steht für jedes Material eine PDF-Datei zum Download zur Verfügung. Kontaktieren Sie uns gerne für Rückfragen oder weitere Details und sichern Sie sich starke Planungssicherheit für Ihr Bauprojekt!

Kostenlose Lieferung

Ab einer Bestellung von 10 Fenstern deutschlandweit!

Jetzt Angebot für Fenster anfordern